Mieszkanie na sprzedaż
571 200 zł
84 m2





















1 / 21
Szczegóły ogłoszenia
- Symbol oferty TWJ-MS-2339
- Typ oferty mieszkanie na sprzedaż
- Cena 571 200 zł
- Charakterystyka mieszkania 84 m2, 3 pokoje
- Budynek szeregowiec; rok budowy: 2024
- Rozkład mieszkania parter piętro
- Media Ogrzewanie: C.O. GAZOWE; Woda: ciepła - miejska; Gaz: tak - miejski
- Balkon jest
- Instalacje nowe
- Okna PCV
- Stan lokalu deweloperski
- Technologia budowlana beton, płyta
- Umeblowanie brak
Lokalizacja
- Adres świętokrzyskie, Miedziana Góra, Kostomłoty Drugie
Opis nieruchomości
Biuro Nieruchomości
TWOJE M
prezentuje Ofertę SPRZEDAŻY
Idealne mieszkania dla rodziny.
0% prowizji !!!
Prezentujemy Państwu na sprzedaż mieszkania w nowej inwestycji zlokalizowanej w zaledwie 10 minut od centrum Kielc, gmina Miedziana Góra!TWOJE M
prezentuje Ofertę SPRZEDAŻY
Idealne mieszkania dla rodziny.
0% prowizji !!!
Inwestycja składa się z trzech bezczynszowych, kameralnych budynków ( 30 apartamentów ) 76m2 i 84m2 z pięknymi ogródkami bądź przestronnymi tarasami, które mają funkcjonalną przestrzeń, dobre światło.
Do każdego Apartamentu przynależy BEZPŁATNE miejsce postojowe i komórka lokatorska.
Bryły budynku charakteryzują się wyważonymi proporcjami z elementami kontrastowych elementów w formie prostokątów, które nadają budynkom silnego, nowoczesnego i zarazem ekskluzywnego charakteru architektonicznego, jednocześnie podkreślając jego indywidualność na tle innych obiektów. Elementy takie jak bardzo duże tarasy na kondygnacji pierwszej, czy przestronne ogródki znajdujące się na parterze tworzą urokliwe, prywatne miejsca do odpoczynku i relaksu oraz dodają obiektom dodatkowo eleganckiego wyglądu i tworzą przytulną aurę. Ciepły wizerunek osiedla jest zasługą odpowiedniego doboru materiałów elewacyjnych i ich kolorów. Na elewacjach dominują biele i brązy tynków.
Mieszkania w stanie deweloperskim z bardzo korzystnymi układami pomieszczeń, które pozwalają doskonale zaaranżować przestrzeń tak, aby była funkcjonalna. Głównym pomieszczeniem jest duży salon z aneksem kuchennym oraz wyjściem na taras lub ogród. W salonie duże solidne przeszklenia. Trzy lub cztery niezależne oraz nieprzechodnie ustawne sypialnie. Łazienka wraz z WC bardzo przestronna.
Mieszkania posiadają Świadectwo Charakterystyki Energetycznej .
Atuty mieszkań:
- cicha, malownicza okolica
- blisko Kielc - około 10 minut
- parter z tarasem oraz ogrodem
- pierwsze piętro z tarasem
- przestronne, ustawne pokoje
- miejsca parkingowe bezpośrednio przy inwestycji
- świetnie doświetlone
- indywidualna klatka schodowa
Dostępne Apartamenty :
Szereg A
PARTER
M1 84 m2 WOLNE
M3 84 m2 WOLNE
M5 84 m2 WOLNE
M7 84 m2 WOLNE
PIĘTRO
M2 84 m2 WOLNE
M4 84 m2 SPRZEDANE
M6 84 m2 WOLNE
M8 84 m2 WOLNE
Szereg B
PARTER
M9 84m2 WOLNE
M11 84m2 WOLNE
M13 84m2 WOLNE
M15 84m2 WOLNE
PIĘTRO
M10 76m2 WOLNE
M12 76 m2 SPRZEDANE
M14 76m2 WOLNE
M16 76m2 WOLNE
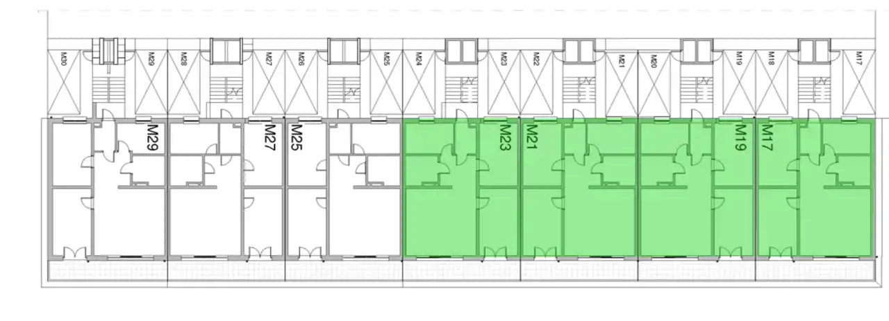
SZEREG C
PARTER
M17 84m2 WOLNE
M19 84m2 WOLNE
M21 84m2 WOLNE
M23 84m2 WOLNE
M25 84m2 WOLNE
M27 84m2 WOLNE
M29 84m2 WOLNE
PIĘTRO
M18 76m2 SPRZEDANE
M20 76m2 WOLNE
M22 76m2 WOLNE
M24 76m2 SPRZEDANE
M26 76m2 WOLNE
M28 76m2 WOLNE
M30 76m2 WOLNE
Jeżeli chcesz bezpiecznie przeprowadzić transakcję kupna, koniecznie skorzystaj z pomocy profesjonalnego biura nieruchomości, które ma doświadczenie w obrocie nieruchomościami, zna rynek i współpracuje z kancelarią notarialną. We współpracy z radcą prawnym przygotowujemy umowę przedwstępną, uczestniczymy w negocjacjach, pomagamy uregulować stan prawny nieruchomości, kompletujemy wszystkie dokumenty do aktu notarialnego, uczestniczymy w akcie notarialnym, wykonujemy protokół zdawczo odbiorczy. Tę kompleksową usługę wykonamy na preferencyjnych warunkach.
Współpracujemy z najlepszymi ekspertami finansowymi w Kielcach, którzy znajdą dla Państwa najtańszy kredyt hipoteczny i przeprowadzą sprawnie całą procedurę kredytową. Dzięki współpracy ekspertów proces kredytowy jest przeprowadzony skutecznie, a Państwa zaangażowanie co do formalności jest ograniczone do minimum.
Ceny od : 571 200 zł
Zapraszam do kontaktu w celu uzyskania dodatkowych informacji oraz umówienia się na prezentację
Katarzyna Zatorska
Licencjonowany Pośrednik Nieruchomości
Numer licencji PFRN 31218
Nota prawna
Opis oferty zawarty na stronie internetowej sporządzany jest na podstawie oględzin nieruchomości oraz informacji uzyskanych od właściciela, może podlegać aktualizacji i nie stanowi oferty określonej w art. 66 i następnych K.C.
Kalkulator kredytowy
Formularz kontaktowy