Mieszkanie na sprzedaż
425 719 zł
47 m2





1 / 5
Szczegóły ogłoszenia
- Symbol oferty NHM-MS-36671
- Typ oferty mieszkanie na sprzedaż
- Cena 425 719 zł
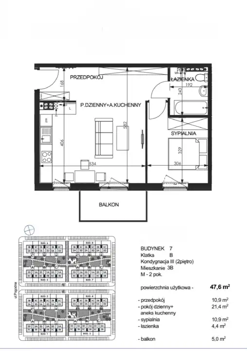
- Charakterystyka mieszkania 47.34 m2, 2 pokoje
- Budynek nowe budownictwo; rok budowy: 2025
- Rozkład mieszkania 2p piętro
- Media Ogrzewanie: C.O. GAZOWE; Woda: ciepła - miejska; Gaz: jest
- Balkon jest
- Dojazd ASFALTOWA
- Instalacje nowe
- Okna PCV
- Otoczenie las
- Plac zabaw Tak
- Stan lokalu deweloperski
- Technologia budowlana silikat
- Umeblowanie brak
Lokalizacja
- Adres dolnośląskie, średzki, Miękinia
Opis nieruchomości
Na sprzedaż komfortowe mieszkanie 2-pokojowe o powierzchni 47,38 m² z balkonem, położone w spokojnej części Lutyni – zaledwie kilka minut od Wrocławia. To idealna propozycja dla osób szukających nowego mieszkania w cichej okolicy.
Atuty nieruchomości:
-
2 pokoje – salon z aneksem kuchennym (21,14m2) + sypialnia (10,8m2)
-
balkon ok. 5 m² – idealny na poranną kawę
-
stan deweloperski – możliwość wykończenia według własnego stylu
-
nowoczesny budynek z windą, miejscami postojowymi oraz udogodnieniami dla rowerów
-
przestrzeń dla mieszkańców: zieleń, place zabaw, mała architektura
Lokalizacja:
-
Lutynia – spokojna, zielona okolica
-
tuż obok las Ratyński – świetne miejsce na spacery i rekreację
-
w pobliżu szkoła, przedszkole, sklepy i punkty usługowe
-
szybki dojazd do centrum Wrocławia samochodem, autobusem lub koleją
Dlaczego warto?
To mieszkanie to idealne rozwiązanie dla:
-
par szukających pierwszego własnego M
-
singli ceniących spokój i komfort
- inwestorów – doskonała opcja pod wynajem, bliskość strefy ekonomicznej Wróblowice/Błonie
W ofercie posiadam również inne mieszkania i domy na rynku pierwotnym i wtórnym.
Zapraszam do kontaktu
Michał Cepuch
tel. 884 707 778
Przy zakupie oferujemy wsparcie przy uzyskaniu finansowania na zakup nieruchomości z opcją dodatkowych korzyści! Szczegóły u Doradcy Finansowego.
Oferujemy szereg innych usług związanych z rynkiem nieruchomości. Zapraszamy do współpracy z naszym biurem.
*Prezentowana oferta nie stanowi oferty handlowej w rozumieniu Art. 66 par. 1 Kodeksu Cywilnego, a dane w niej zawarte mają charakter jedynie informacyjny i mogą ulec zmianie
Nota prawna
Opis oferty zawarty na stronie internetowej sporządzany jest na podstawie oględzin nieruchomości oraz informacji uzyskanych od właściciela, może podlegać aktualizacji i nie stanowi oferty określonej w art. 66 i następnych K.C.
Kalkulator kredytowy
Formularz kontaktowy