Mieszkanie na sprzedaż





Szczegóły ogłoszenia
- Symbol oferty NHM-MS-36634
- Typ oferty mieszkanie na sprzedaż
- Cena 431 733 zł
- Charakterystyka mieszkania 47.68 m2, 2 pokoje
- Budynek dom wielorodzinny; rok budowy: 2025
- Rozkład mieszkania 1p piętro
- Media Ogrzewanie: centralne; Woda: jest
- Balkon jest
- Dojazd asfalt
- Garaż miejsce parkingowe przy budynku
- Ilość sypialni 1
- Instalacje nowe
- Okna PCV
- Otoczenie osiedle
- Stan lokalu deweloperski
- Technologia budowlana prefabrykat, pustak
- Winda Tak
Lokalizacja
- Adres dolnośląskie, średzki, Miękinia
Opis nieruchomości
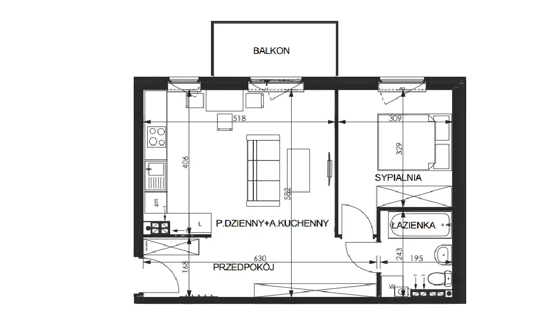
2-pokojowe mieszkanie (46,9 m²) – z balkonem (5,0 m²)
BEZ PROWIZJI I PCC!
Przedstawiam atrakcyjne 2-pokojowe mieszkanie z balkonem, usytuowane na 1. piętrze nowoczesnego budynku. To idealna propozycja zarówno dla singla, pary, jak i młodej rodziny. Inwestycja została zakończona – mieszkanie dostępne od zaraz.
Układ mieszkania:
-
Przedpokój – 10,6 m²
Przestronna strefa wejściowa z możliwością zabudowy szafą. -
Pokój dzienny z aneksem kuchennym – 20,8 m²
Jasna i ustawna przestrzeń dzienna, z miejscem na kuchnię, jadalnię oraz wygodną strefę wypoczynku. -
Sypialnia – 11,0 m²
Ustawne pomieszczenie, idealne na sypialnię lub domowe biuro. -
Łazienka – 4,5 m²
Funkcjonalna, z możliwością aranżacji zarówno w wersji z wanną, jak i prysznicem. -
Balkon – 5,0 m²
Miejsce na poranną kawę czy popołudniowy relaks.
Atuty inwestycji i lokalizacji:
-
nowoczesne osiedle z pełną infrastrukturą,
-
blisko sklepy, szkoła, przystanki komunikacji miejskiej,
-
szybki dojazd do centrum,
-
spokojna, zielona okolica sprzyjająca aktywnemu wypoczynkowi.
Cena: 431 733 zł
Cena za m²: 9 248 zł
Powierzchnia: 46,9 m²
Liczba pokoi: 2
Piętro: 1
Status: wolne, inwestycja ukończona
Kontakt:
Justyna – N-Home Nieruchomości
tel. 884 707 192
e-mail: justyna@n-home.pl
Kupując z nami, otrzymujesz również bezpłatne wsparcie w uzyskaniu finansowania. Nasz Specjalista ds. Kredytowych pomoże znaleźć najlepsze rozwiązanie.
Dodatkowo oferujemy:
– zniżki u partnerów (wykończenia wnętrz, notariusz, doradztwo),
– kompleksowe wsparcie w całym procesie zakupu,
– indywidualne podejście do każdego klienta.
Prezentowana oferta nie stanowi oferty handlowej w rozumieniu art. 66 § 1 Kodeksu cywilnego, a dane w niej zawarte mają charakter wyłącznie informacyjny i mogą ulec zmianie.