Mieszkanie na sprzedaż














Szczegóły ogłoszenia
- Symbol oferty FRMN-MS-4243
- Typ oferty mieszkanie na sprzedaż
- Cena 572 690 zł
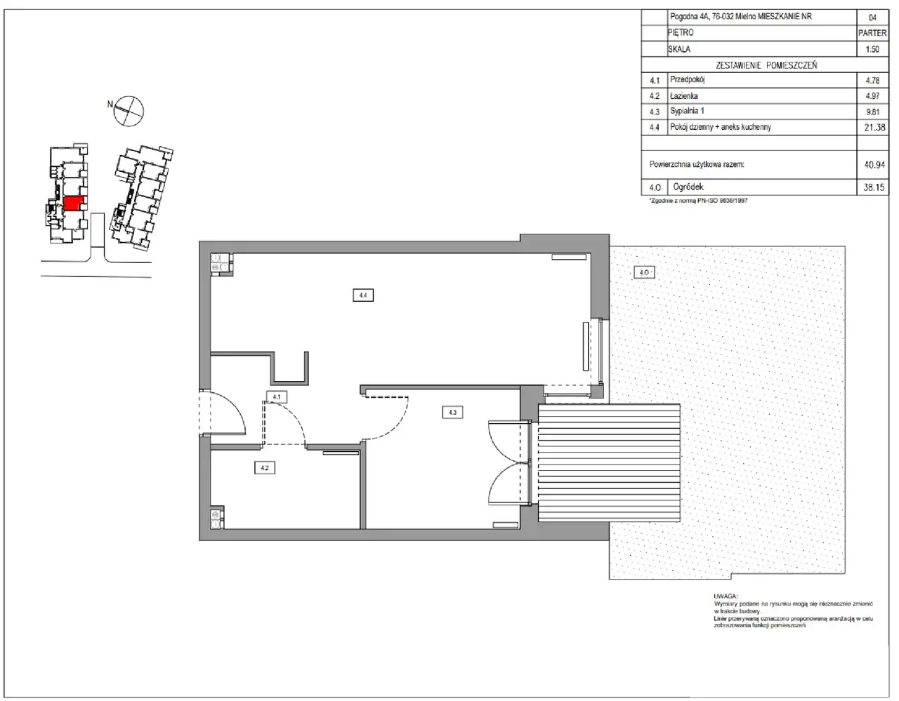
- Charakterystyka mieszkania 40.94 m2, 2 pokoje
- Budynek apartamentowiec; rok budowy: 2023
- Rozkład mieszkania parter piętro
- Media Ogrzewanie: C.O. miejskie; Woda: ciepła - miejska
- Czynsz Czynsz letni: 410 zł
- Dojazd ASFALTOWA
- Ilość sypialni 1
- Instalacje nowe
- Okna PCV 3 szyby, ciepły montaż
- Otoczenie tereny rekreacyjne
- Stan lokalu deweloperski
- Taras taras
- Technologia budowlana beton, suporeks
- Winda Tak
Lokalizacja
- Adres zachodniopomorskie, Mielno
Opis nieruchomości
Villa Verona Mielno
Twoje miejsce nad Bałtykiem!
Z przyjemnością prezentujemy Villa Verona – wyjątkową inwestycję apartamentową w sercu Mielna, zaledwie 250 metrów od szerokiej, piaszczystej plaży. To propozycja dla osób, które szukają miejsca na wakacyjny wypoczynek, inwestycji pod wynajem lub drugiego domu nad morzem.
PROWIZJA 0%
BRAK PODATKU PCC
MIESZKANIE W STANIE DEWELOPERSKIM
O inwestycji:
Villa Verona to dwa nowoczesne budynki wielorodzinne:
Budynek A – 4 piętra
Budynek B – 3 piętra
Mieszkanie o powierzchni 40,94 m2 składa się z:
- pokoju dziennego z aneksem kuchennym - 24,43 m2
- sypialni - 15,33 m2
- przedpokoju - 5,54 m2
- łazienki - 5,16 m2
Dodatkowe udogodnienie:
Miejsce postojowe w hali garażowej – 50 000 zł
Komórka lokatorska – 20 000 zł
Inwestycja zapewnia Tobie:
- komfortowe apartamenty / lokale mieszkalne o różnych metrażach
- 2 lokale usługowe przeznaczone na strefę SPA oraz siłownię
- podziemna hala garażowa z miejscami postojowymi
- strefa SPA z saunami dla mieszkańców
- komórki lokatorskie
- zagospodarowany teren z altaną, idealny na chwilę relaksu
Budynki są wybudowane, oddane do użytkowania. Lokale są samodzielne i gotowe do odbioru – można od razu odbierać klucze!
Standard wykończenia:
Naszym klientom oferujemy możliwość wykończenia apartamentów pod klucz w pakiecie STANDARD w cenie 3 000 zł/m² brutto – dzięki temu możesz wprowadzić się od razu lub szybko rozpocząć wynajem.
Zdjęcia w ofercie ukazują realne ukończenie mieszkań pod klucz, naszych wykonawców !
Sprzedaż apartamentów objęta jest 8% podatkiem VAT – idealne rozwiązanie dla inwestorów planujących wynajem.
Dlaczego Villa Verona?
- nowoczesna architektura
- wyjątkowa lokalizacja – tylko 250 m od morza
- strefa SPA i siłownia na terenie inwestycji
- doskonały potencjał inwestycyjny pod wynajem krótkoterminowy
- wysoki standard wykończenia
- możliwość zakupu apartamentu wykończonego pod klucz
- pełna infrastruktura w najbliższej okolicy – sklepy, restauracje, atrakcje turystyczne, tereny rekreacyjne
Lokalizacja:
Villa Verona znajduje się w jednej z najatrakcyjniejszych lokalizacji Mielna a w zasięgu spaceru:
- plaża - 250 m
- sklepy spożywcze - 150 m
- restauracje i kawiarnie – ok. 100 m
- jezioro Jamno – ok. 400 m
- basen i atrakcje wodne w Koszalinie – ok. 12 km
- liczne ścieżki rowerowe i tereny spacerowe
To miejsce, które tętni życiem przez cały rok – zarówno w sezonie letnim, jak i poza nim.
Chcesz poznać więcej szczegółów? Zapraszam do kontaktu.