Mieszkanie na wynajem
1 700 zł
38 m2












1 / 12
Szczegóły ogłoszenia
- Symbol oferty DRN-MW-5087
- Typ oferty mieszkanie na wynajem
- Czynsz wynajmu 1 700 zł / miesiąc
- Charakterystyka mieszkania 38.03 m2, 1 pokój
- Budynek blok; rok budowy: 2010
- Rozkład mieszkania 2p piętro
- Media Ogrzewanie: C.O. miejskie; Woda: ciepła - miejska; Gaz: brak
- Czynsz Czynsz letni: 800 zł
- Dojazd asfaltowa/kostka
- Garaż brak
- Ilość sypialni 1
- Instalacje dobre
- Kaucja jednomiesięczna, 1750 zł
- Okna PCV
- Otoczenie centrum miasta
- Stan lokalu bardzo dobry
- Technologia budowlana beton, cegła
Lokalizacja
- Adres wielkopolskie, Murowana Goślina
Opis nieruchomości
PREFEROWANY NAJEM OKAZJONY
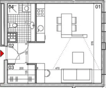
Kawalerka o powierzchni 38,03 m2, znajdująca się na 2 piętrze w budynku 3 piętrowym.
Lokalizacja Murowana Goślina, Zielone Wzgórza, ul. Lenartowskiego.
W skład mieszkania wchodzi duży jasny salon z aneksem kuchennym,
łazienka wyposażona w kabinę prysznicową oraz z Wc oraz garderoba.
Do mieszkanie przynależy komórka lokatorska o powierzchni 1,22 m2.
Mieszkanie zadbane, bardzo jasne w pełni wyposażone.
Aneks kuchenny zabudowany szafkami na wymiar, wyposażony w sprzęt AGD.
Na podłodze w salonie panele podłogowe, w łazience płytki.
Okna PCV.
Do mieszkania przynależy miejsce parkingowe na zamkniętym szlabanem parkingu.
Media: szybki Internet, TV kablowa, prąd, woda, kanalizacja, ogrzewanie z cieplika miejskiego.
Miesięczny czynsz zawierający zaliczki za wodę i ciepło około 800 zł.
W pobliżu Nowy Rynek, sklepy, apteka, punkty usługowe, gastronomiczne.
Dogodny dojazd do Poznania, komunikacja autobusowa, szynobus.
W pobliżu tereny wypoczynkowe, trasy rowerowe, Puszcza Zielonka.
Pytania proszę kierować do agenta prowadzącego :
Leszek Szóstak tel. 732 250 999
Kawalerka o powierzchni 38,03 m2, znajdująca się na 2 piętrze w budynku 3 piętrowym.
Lokalizacja Murowana Goślina, Zielone Wzgórza, ul. Lenartowskiego.
W skład mieszkania wchodzi duży jasny salon z aneksem kuchennym,
łazienka wyposażona w kabinę prysznicową oraz z Wc oraz garderoba.
Do mieszkanie przynależy komórka lokatorska o powierzchni 1,22 m2.
Mieszkanie zadbane, bardzo jasne w pełni wyposażone.
Aneks kuchenny zabudowany szafkami na wymiar, wyposażony w sprzęt AGD.
Na podłodze w salonie panele podłogowe, w łazience płytki.
Okna PCV.
Do mieszkania przynależy miejsce parkingowe na zamkniętym szlabanem parkingu.
Media: szybki Internet, TV kablowa, prąd, woda, kanalizacja, ogrzewanie z cieplika miejskiego.
Miesięczny czynsz zawierający zaliczki za wodę i ciepło około 800 zł.
W pobliżu Nowy Rynek, sklepy, apteka, punkty usługowe, gastronomiczne.
Dogodny dojazd do Poznania, komunikacja autobusowa, szynobus.
W pobliżu tereny wypoczynkowe, trasy rowerowe, Puszcza Zielonka.
Pytania proszę kierować do agenta prowadzącego :
Leszek Szóstak tel. 732 250 999
Nota prawna
Opis oferty zawarty na stronie internetowej sporządzany jest na podstawie oględzin nieruchomości oraz informacji uzyskanych od właściciela, może podlegać aktualizacji i nie stanowi oferty określonej w art. 66 i następnych K.C.
Formularz kontaktowy