Mieszkanie na sprzedaż
461 933 zł
41 m2













1 / 13
Szczegóły ogłoszenia
- Symbol oferty BS2-MS-305788
- Typ oferty mieszkanie na sprzedaż
- Cena 461 933 zł
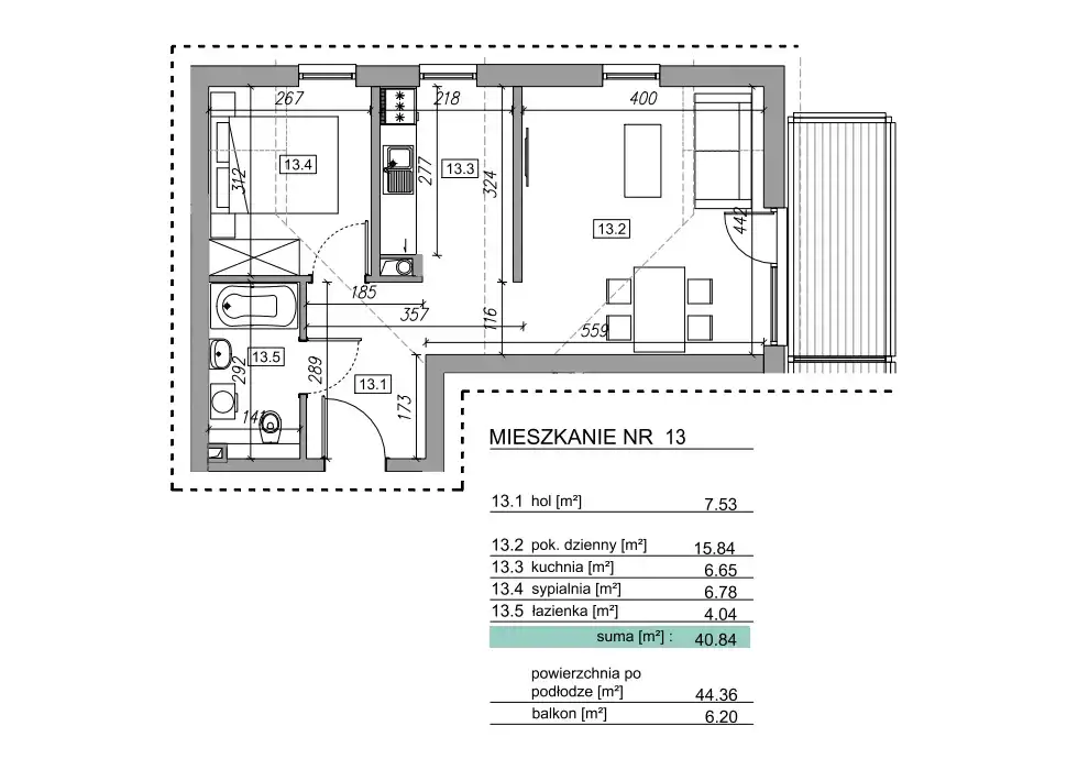
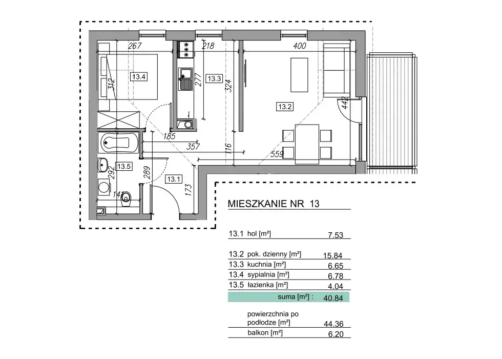
- Charakterystyka mieszkania 40.84 m2, 2 pokoje
- Budynek blok; rok budowy: 2024
- Rozkład mieszkania 2p piętro
- Media Ogrzewanie: pompa ciepła; Woda: tak - miejska; Gaz: brak
- Balkon jest
- Dojazd ASFALTOWA
- Garaż miejsce postojowe przed budynkiem
- Ilość sypialni 1
- Instalacje nowe
- Okna PCV 3 komorowe
- Otoczenie jezioro i las
- Plac zabaw Tak
- Stan lokalu deweloperski
- Technologia budowlana kon. szkieletowa
- Winda Tak
Lokalizacja
- Adres małopolskie, Myślenice (gw), Zawada
Opis nieruchomości
NOWA INWESTYCJA DEWELOPERSKA – GOTOWA DO ZAMIESZKANIA!
ATRAKCYJNE CENY – FUNKCJONALNE MIESZKANIA W SPOKOJNEJ OKOLICY
Oferujemy:
Funkcjonalne układy mieszkań od 25 m² do 57 m² – idealne dla singli, par i rodzin.
Widok na góry – codzienny kontakt z naturą.
Ogrzewanie podłogowe, które zwiększa komfort życia.
Pompy ciepła i wentylacja z rekuperacją, gwarantujące oszczędność i ekologiczne rozwiązania.
Panele fotowoltaiczne, wspomagające niższe koszty utrzymania.
Niskie opłaty eksploatacyjne dzięki nowoczesnym technologiom budowlanym.
Miejsca parkingowe zewnętrzne, dostępne dla mieszkańców.
Część mieszkań wykończonych „pod klucz”, gotowych do zamieszkania od zaraz.
Prywatny bus osiedlowy – darmowy transport dla mieszkańców.
Możliwość wykupienia miejsca postojowego: 25 000zł!!
Doskonała lokalizacja:
Osiedle znajduje się na wzgórzu, w zacisznej okolicy, z dala od zgiełku i ruchliwych ulic.
W sąsiedztwie malownicze trasy rowerowe i spacerowe – idealne dla rodzin, właścicieli psów i osób dbających o zdrowy tryb życia.
Prywatny kort tenisowy.
Park i jeziorko na terenie inwestycji.
Ścieżki biegowe i spacerowe.
Zadaszona wiata grillowa – idealna na spotkania z rodziną i przyjaciółmi.
Inwestycja przyjazna środowisku:
Dzięki zastosowaniu nowoczesnych i ekologicznych rozwiązań budowlanych mieszkańcy osiedla zaoszczędzą na rachunkach za ogrzewanie, ciepłą wodę i oświetlenie.
Zamieszkaj w miejscu, które łączy komfort, nowoczesność i bliskość natury!
W celu uzyskania więcej informacji zapraszam do kontaktu:
Arkadiusz Zemła
Telefon: +48 518 706 552
E-mail: arek@sadurscy.pl
ATRAKCYJNE CENY – FUNKCJONALNE MIESZKANIA W SPOKOJNEJ OKOLICY
Oferujemy:
Funkcjonalne układy mieszkań od 25 m² do 57 m² – idealne dla singli, par i rodzin.
Widok na góry – codzienny kontakt z naturą.
Ogrzewanie podłogowe, które zwiększa komfort życia.
Pompy ciepła i wentylacja z rekuperacją, gwarantujące oszczędność i ekologiczne rozwiązania.
Panele fotowoltaiczne, wspomagające niższe koszty utrzymania.
Niskie opłaty eksploatacyjne dzięki nowoczesnym technologiom budowlanym.
Miejsca parkingowe zewnętrzne, dostępne dla mieszkańców.
Część mieszkań wykończonych „pod klucz”, gotowych do zamieszkania od zaraz.
Prywatny bus osiedlowy – darmowy transport dla mieszkańców.
Możliwość wykupienia miejsca postojowego: 25 000zł!!
Doskonała lokalizacja:
Osiedle znajduje się na wzgórzu, w zacisznej okolicy, z dala od zgiełku i ruchliwych ulic.
W sąsiedztwie malownicze trasy rowerowe i spacerowe – idealne dla rodzin, właścicieli psów i osób dbających o zdrowy tryb życia.
- Odległości:
- Kraków – 18 km
- Myślenice – 5 km
- Jezioro Dobczyckie – 8 km
- Sport Arena Myślenice – 10 km
- Lotnisko Balice – 36 km
- Zakopane – 84 km
Prywatny kort tenisowy.
Park i jeziorko na terenie inwestycji.
Ścieżki biegowe i spacerowe.
Zadaszona wiata grillowa – idealna na spotkania z rodziną i przyjaciółmi.
Inwestycja przyjazna środowisku:
Dzięki zastosowaniu nowoczesnych i ekologicznych rozwiązań budowlanych mieszkańcy osiedla zaoszczędzą na rachunkach za ogrzewanie, ciepłą wodę i oświetlenie.
Zamieszkaj w miejscu, które łączy komfort, nowoczesność i bliskość natury!
W celu uzyskania więcej informacji zapraszam do kontaktu:
Arkadiusz Zemła
Telefon: +48 518 706 552
E-mail: arek@sadurscy.pl
Nota prawna
Opis oferty zawarty na stronie internetowej sporządzany jest na podstawie oględzin nieruchomości oraz informacji uzyskanych od właściciela, może podlegać aktualizacji i nie stanowi oferty określonej w art. 66 i następnych K.C.
Kalkulator kredytowy
Formularz kontaktowy