Działka na sprzedaż









Szczegóły ogłoszenia
- Symbol oferty PLN-GS-8530
- Typ oferty działka na sprzedaż
- Cena 545 000 zł
- Charakterystyka mieszkania 948 m2
- Media Woda: w drodze; Kanalizacja: własna oczyszczalnia; Prąd: jest; Gaz: brak
- Bezpieczeństwo ogrodzenie działki: częściowo ogrodzona
- Dojazd droga gruntowa
- Działka częściowo zagospodarowana, płaska, trapez
- Otoczenie działki zabudowane
Lokalizacja
- Adres śląskie, Mysłowice m., Mysłowice
Opis nieruchomości
Biuro Plutecki Nieruchomości ma przyjemność zaprezentować atrakcyjną działkę o powierzchni 948 m², położoną w Mysłowicach przy bocznej, kameralnej ul. Jaworowej, z dala od miejskiego zgiełku.
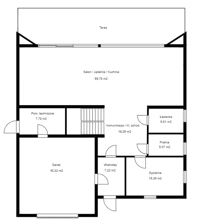
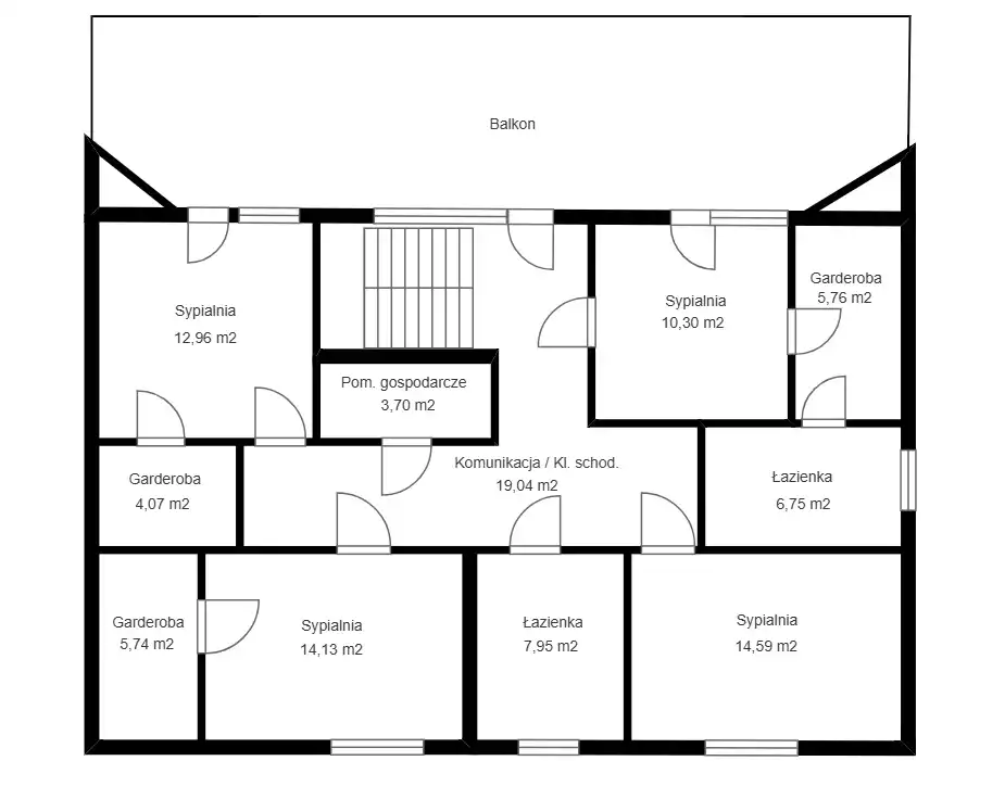
Nieruchomość posiada rozpoczętą budowę nowoczesnego domu jednorodzinnego z prawomocnym pozwoleniem na budowę oraz kompletnym projektem architektonicznym. Prace są już na etapie postawionych ścian parteru, co pozwala przyszłemu właścicielowi zaoszczędzić czas i kontynuować inwestycję. Projekt zakłada dom wolnostojący, dwukondygnacyjny, niepodpiwniczony, o powierzchni zabudowy 219,2 m². Na parterze przewidziano 99,24 m² powierzchni mieszkalnej, na piętrze 85,95 m², a w bryle budynku zaplanowano przestronny garaż dwustanowiskowy o powierzchni 40,32 m². Układ funkcjonalny gwarantuje wygodę i przestrzeń – pięć sypialni, trzy łazienki oraz trzy garderoby czynią ten projekt idealnym dla większej rodziny poszukującej komfortu i odrobiny luksusu.
Działka jest płaska, o regularnym kształcie trapezu, z dostępem do mediów takich jak prąd na działce, woda w drodze, a w projekcie planowana przydomowa oczyszczalnia ścieków.
Okolica to spokojna i kameralna część Mysłowic z przewagą zabudowy jednorodzinnej. W odległości zaledwie 200 metrów znajduje się sklep i przystanek autobusowy, a szkoła i przedszkole oddalone są o około 1 km. Do centrum miasta można dotrzeć w kilkanaście minut, natomiast zjazd na autostradę A4, zlokalizowany 4 km od działki, zapewnia szybkie połączenie z Katowicami oraz pozostałymi miastami aglomeracji. Dodatkowym atutem jest bliskość lasów, które sprzyjają rekreacji i aktywnemu wypoczynkowi.
Jeśli marzysz o własnym, przestronnym i nowoczesnym domu w spokojnym otoczeniu – ta oferta jest właśnie dla Ciebie!
Nie zwlekaj i umów się na prezentację.