Mieszkanie na sprzedaż












Szczegóły ogłoszenia
- Symbol oferty KOS-MS-4839
- Typ oferty mieszkanie na sprzedaż
- Cena 490 000 zł
- Charakterystyka mieszkania 70 m2, 3 pokoje
- Budynek blok
- Rozkład mieszkania 3p piętro
- Media Ogrzewanie: piec dwufunkcyjny; Gaz: jest
- Balkon jest
- Czynsz Czynsz letni: 318 zł
- Dojazd asfalt
- Garaż możliwość wykupu
- Instalacje nowe
- Stan lokalu do wprowadzenia
- Winda Tak
Lokalizacja
- Adres opolskie, Namysłów
Opis nieruchomości
Na sprzedaż atrakcyjny, nowoczesny apartament w nowym budownictwie, oddany w stanie wykończonym przez dewelopera. Mieszkanie jest świeżo przygotowane do zamieszkania – nie wymaga żadnego remontu. Wystarczy je umeblować i można od razu się wprowadzić.
To doskonała propozycja dla osób szukających nowego, estetycznego lokum bez konieczności dodatkowych prac wykończeniowych.
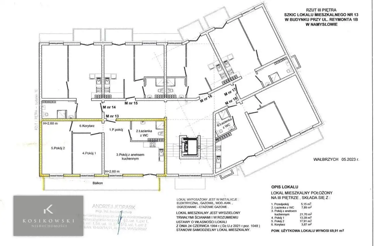
Przestronny apartament o powierzchni 69,91 m², położony na 3 piętrze w nowym budownictwie, w bloku z windą.
Najważniejsze atuty nieruchomości:
- Nowe mieszkanie od dewelopera – brak podatku PCC!
- Duży metraż 69,91 m², doskonały układ pomieszczeń.
- W cenie komórka lokatorska (piwnica).
- Możliwość dokupienia garażu w przyziemiu.
- Mieszkanie częściowo wykończone – po zakończeniu inwestycji nie musisz remontować, tylko umeblować.
- Wykończone elementy obejmują:
- nowoczesną łazienkę,
- drzwi wewnętrzne,
- podłogi,
- meble kuchenne,
- klimatyzację w cenie!
Układ pomieszczeń:
- Salon z aneksem kuchennym – jasna, otwarta przestrzeń z wyjściem na duży balkon
- Dwie ustawne sypialnie, idealne na pokój dziecięcy, biuro lub sypialnię główną
- Duży przedpokój z miejscem na obszerną zabudowę garderobianą
- Łazienka gotowa do użytkowania
Lokalizacja:
Mieszkanie znajduje się w jednym z najbardziej pożądanych miejsc w okolicy – Pasaż Słoneczny przy ul. Reymonta.
W zasięgu dostępne są:
- sklepy spożywcze,
- piekarnia,
- apteka,
- salony fryzjerskie i inne usługi,
- szkoła podstawowa.
To miejsce idealne dla rodzin oraz osób ceniących wygodę i szybki dostęp do infrastruktury.
Ostatnie mieszkanie w tej inwestycji!
Bardzo atrakcyjna oferta – nie wymaga remontu, jedynie wyposażenia i drobnej dekoracji. Wprowadź się od razu!
Zapraszamy na prezentację nieruchomości !
Kliencie nic nam nie zapłacisz, a otrzymasz:
- kilkaset ofert w jednym miejscu,
- pomoc przy załatwieniu kredytu na zakup nieruchomości,
- rzetelną informacje o każdej ofercie,
- sprawdzony stan prawny nieruchomości,
- możliwość obejrzenia każdej oferty w uzgodnionym wspólnie terminie,
- uzgodnione warunki i dokumentację do zawarcia umowy przedwstępnej,
- pełną dokumentację i koordynację aktu notarialnego,
- protokoły przekazania nieruchomości i liczników,
- zapłatą dla nas ma być Twój uśmiech.
Oferujemy skuteczną, nieodpłatną pomoc w uzyskaniu kredytu na zakup nieruchomości. Zapraszamy do naszego biura w celu omówienia szczegółów oferty oraz ustalenia dogodnego dla Państwa terminu prezentacji.
Nota prawna: Informacje dotyczące opisu nieruchomości podane są przez właściciela, mają charakter wyłącznie informacyjny i mogą podlegać aktualizacji. Oferta dotycząca nieruchomości stanowi zaproszenie do rokowań zgodnie z art. 71 Kodeksu Cywilnego i nie stanowi oferty określonej w art. 66 i następnych KC.
Odnośnik do oferty na stronie biura: https://www.kosikowski.com.pl/ad/4910
OSOBA PROWADZĄCA
Martyna Osyp Kierownik Zespołu Sprzedaży
tel. (+48) 667 80 50 60
tel. (+48) 77 410 50 60
www.kosikowski.com.pl
m.osyp@kosikowski.com.pl
Pod nadzorem pośrednika - licencja 11884