Mieszkanie na sprzedaż




Szczegóły ogłoszenia
- Symbol oferty PFT-MS-4361
- Typ oferty mieszkanie na sprzedaż
- Cena 125 000 zł
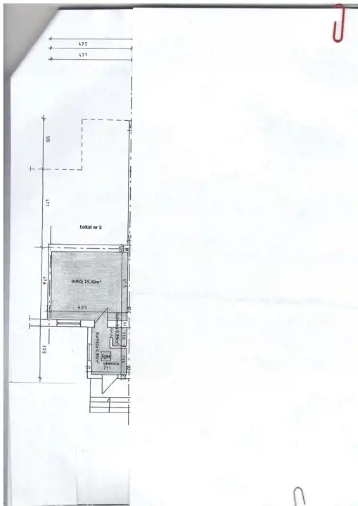
- Charakterystyka mieszkania 30.96 m2, 1 pokój
- Budynek budynek wielorodzinny
- Rozkład mieszkania parter piętro
- Ilość sypialni 1
- Okna DREWNIANE STARY TYP
- Stan lokalu do remontu
- Technologia budowlana cegła
Lokalizacja
- Adres łódzkie, Nieborów, Bełchów
Opis nieruchomości
Zapraszam do zapoznania się z ofertą sprzedaży lokalu mieszkalnego znajdującego się we wsi Bełchów w gminie Nieborów w województwie łódzkim.
Bełchów jest to miejscowość położona między Łowiczem a Skierniewicami.
We wsi znajdują się sklepy, piekarnia, kościół, market Dino, punkty usługowe, przedszkole, szkoła podstawowa.
W sąsiedztwie znajdują się tereny leśne m.in. Bolimowski Park Krajobrazowy.
Do Nieborowa jest około 8km.
Do drogi krajowej nr 70 jest około 1,5km,
Do wjazdu na autostradę (węzeł Łowicz/Skierniewice) są tylko 4km, 10 minut zajmie nam spacer na dworzec kolejowy (trasa Kutno-Skierniewice).
Do centrum Łodzi mamy 54 kilometry a do centrum Warszawy 70 kilometrów.
Mieszkanie o powierzchni 30.96 m2 składa się z pokoju, kuchni, toalety oraz piwnicy.
Jest to budynek w zabudowie szeregowej, wybudowany z cegły posiadający bezpośrednie wejście z ulicy.
Jeśli jesteś z okolic, a szukasz mieszkania taniego w utrzymaniu to ta oferta jest idealna (płaci się tylko za zużyte media, brak opłat stałych). Z uwagi na bardzo dobrą lokalizację nadaje się również na prowadzenie działalności gospodarczej typu gabinet stomatologiczny / fryzjerstwo/ kosmetyka/ biuro. W otoczeniu przedmiotowej nieruchomości przeważają budynki mieszkalne jednorodzinne.
Opis pomieszczeń:
-pokoju o powierzchni 19,30m2 (wysokość 270cm) - na podłodze są deski, na ścianach tynki wapienne.
-kuchni/przedpokoju o powierzchni 4,86m2 (wysokość pomieszczenia 240cm) - na podłodze są deski, na ścianach również są tynki wapienne.
-toalety o powierzchni 0,96 m2 (wysokość pomieszczenia 240cm)- na podłodze są deski, na ścianach tynki wapienne.
-piwnicy o powierzchni 5,96 m2 do której wejście znajduje się w kuchni.
Lokal posiada przyłącze wody wraz z wodomierzem, elektryczności, własne szambo. Lokal nie posiada centralnego ogrzewania. Dotychczas ogrzewany był tzw. "kozą".