Mieszkanie na sprzedaż
412 125 zł
56 m2








1 / 8
Szczegóły ogłoszenia
- Symbol oferty LAT-MS-692
- Typ oferty mieszkanie na sprzedaż
- Cena 412 125 zł
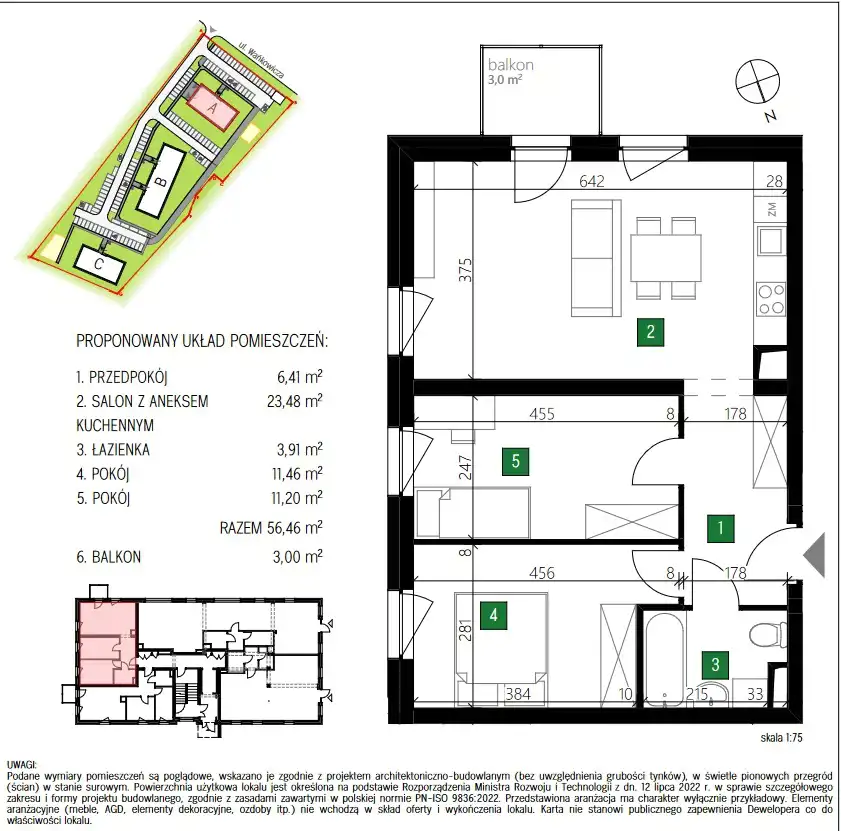
- Charakterystyka mieszkania 56.46 m2, 3 pokoje
- Budynek blok
- Rozkład mieszkania parter piętro
- Balkon jest
- Instalacje nowe
- Okna PCV
- Stan lokalu deweloperski
- Technologia budowlana mieszana
- Winda Tak
Lokalizacja
- Adres podkarpackie, niżański, Nisko
Opis nieruchomości
Do sprzedaży lokal mieszkalny o powierzchni 56,46m2 położony na parterze w nowo powstałym bloku przy ul. Wańkowicza w Nisku.
TECHNOLOGIA WYKONANIA
Płyta fundamentowa: żelbetowa, monolityczna,
Ściany fundamentowe zewnętrzne: żelbetowe, monolityczne
Ściany zewnętrzne konstrukcyjne: pustaki ceramiczne,
Ściany wewnętrzne nośne: żelbetowe lub z pustaków ceramicznych,
Ściany wewnętrzne działowe w mieszkaniach: wielkowymiarowe panele z betonu komórkowego
(nieotynkowane), lub równorzędne,
Ściany wewnętrzne działowe w lokalach usługowych: karton-gips,
Słupy/rdzenie w ścianach: żelbetowe, monolityczne,
Stropy: gęstożebrowe,
Wieńce, belki, nadproża: żelbetowe monolityczne lub prefabrykowane,
Balkony: prefabrykowane, lub równoważne,
Szachty wentylacyjne: bloczki z betonu komórkowego,
Schody wewnętrzne: żelbetowe, monolityczne lub prefabrykowane,
Dach: płaski, strop gęstożebrowy,
STANDARD WYKOŃCZENIA CZĘŚCI WSPÓLNYCH BUDYNKU
Drzwi do mieszkań: płytowe, antywłamaniowe,
Drzwi wiatrołap-komunikacja/klatka schodowa: aluminiowe przeszklone,
Drzwi do komórek lokatorskich: ażurowe, stalowe, ocynkowane,
Pozostałe drzwi: stalowe techniczne,
Balustrada klatki schodowej: malowana proszkowo lub ze stali nierdzewnej,
Klatka schodowa, korytarz: posadzka i biegi schodów wykończone płytkami, ściany oraz sufit
tynkowane i malowane farbą,
Wiatrołap: wyposażony w skrzynki na listy,
Obróbki blacharskie: blacha powlekana lub równoważna,
Tynki zewnętrzne: mineralne lub silikonowe, w miejscach wykonane z tynku dekoracyjnego
Pokrycie dachu: papa dwuwarstwowa,
Drogi wewnętrzne, ciągi piesze: kostka brukowa betonowa, układ i kolorystyka według projektu,
Miejsca parkingowe: kostka brukowa,
Śmietnik: wiata śmietnikowa,
Mała architektura i plac zabaw: ławki i urządzenia zabawowe zgodnie z projektem
zagospodarowania terenu,
Winda: elektryczna, obsługująca wszystkie kondygnacje,
STANDARD WYKOŃCZENIA LOKALU MIESZKALNEGO
Wysokość pomieszczeń: minimalna to 2,5 m
Ściany konstrukcyjne i sufity: wykończone tynkiem gipsowym,
Ściany działowe: wykonane z wielowymiarowych paneli z betonu komórkowego (nieotynkowane),
Posadzki – wylewka przygotowana pod warstwy wykończeniowe np. panele, płytki czy wykładziny,
Stolarka okienna zewnętrzna – PCV z nawiewnikami okiennymi w mieszkaniach,
Parapety wewnętrzne – brak,
Posadzka balkonów - zatarta warstwa betonu,
Balustrady balkonów – wypełnione szkłem hartowanym,
Wentylacja – mechaniczna z podejściem pod wentylację okapu,
Instalacje wewnętrzne sanitarne – z tworzywa sztucznego lub PCV,
Centralne ogrzewanie MPEC i centralna woda ciepła – z rur wielowarstwowych, zamontowane
natynkowo grzejniki panelowe oraz drabinkowe w łazience,
Instalacja elektryczne – podejścia elektryczne wykonane wraz z osprzętem, wypusty oświetleniowe
sufitowe, wypust 3-fazowy dla kuchni elektrycznej, rozdzielnia elektryczna usytuowana w
przedpokoju,
Instalacja domofonowa – wraz z osprzętem,
Instalacja dzwonkowa – z osprzętem,
Standard wykończenia komórki lokatorskiej – ściany murowane z bloczka betonowego, częściowo
ażurowe, drzwi stalowe ażurowe.
Inwestor zastrzega sobie prawo zmian technicznych i wykonawczych na etapie budowy wynikających
TECHNOLOGIA WYKONANIA
Płyta fundamentowa: żelbetowa, monolityczna,
Ściany fundamentowe zewnętrzne: żelbetowe, monolityczne
Ściany zewnętrzne konstrukcyjne: pustaki ceramiczne,
Ściany wewnętrzne nośne: żelbetowe lub z pustaków ceramicznych,
Ściany wewnętrzne działowe w mieszkaniach: wielkowymiarowe panele z betonu komórkowego
(nieotynkowane), lub równorzędne,
Ściany wewnętrzne działowe w lokalach usługowych: karton-gips,
Słupy/rdzenie w ścianach: żelbetowe, monolityczne,
Stropy: gęstożebrowe,
Wieńce, belki, nadproża: żelbetowe monolityczne lub prefabrykowane,
Balkony: prefabrykowane, lub równoważne,
Szachty wentylacyjne: bloczki z betonu komórkowego,
Schody wewnętrzne: żelbetowe, monolityczne lub prefabrykowane,
Dach: płaski, strop gęstożebrowy,
STANDARD WYKOŃCZENIA CZĘŚCI WSPÓLNYCH BUDYNKU
Drzwi do mieszkań: płytowe, antywłamaniowe,
Drzwi wiatrołap-komunikacja/klatka schodowa: aluminiowe przeszklone,
Drzwi do komórek lokatorskich: ażurowe, stalowe, ocynkowane,
Pozostałe drzwi: stalowe techniczne,
Balustrada klatki schodowej: malowana proszkowo lub ze stali nierdzewnej,
Klatka schodowa, korytarz: posadzka i biegi schodów wykończone płytkami, ściany oraz sufit
tynkowane i malowane farbą,
Wiatrołap: wyposażony w skrzynki na listy,
Obróbki blacharskie: blacha powlekana lub równoważna,
Tynki zewnętrzne: mineralne lub silikonowe, w miejscach wykonane z tynku dekoracyjnego
Pokrycie dachu: papa dwuwarstwowa,
Drogi wewnętrzne, ciągi piesze: kostka brukowa betonowa, układ i kolorystyka według projektu,
Miejsca parkingowe: kostka brukowa,
Śmietnik: wiata śmietnikowa,
Mała architektura i plac zabaw: ławki i urządzenia zabawowe zgodnie z projektem
zagospodarowania terenu,
Winda: elektryczna, obsługująca wszystkie kondygnacje,
STANDARD WYKOŃCZENIA LOKALU MIESZKALNEGO
Wysokość pomieszczeń: minimalna to 2,5 m
Ściany konstrukcyjne i sufity: wykończone tynkiem gipsowym,
Ściany działowe: wykonane z wielowymiarowych paneli z betonu komórkowego (nieotynkowane),
Posadzki – wylewka przygotowana pod warstwy wykończeniowe np. panele, płytki czy wykładziny,
Stolarka okienna zewnętrzna – PCV z nawiewnikami okiennymi w mieszkaniach,
Parapety wewnętrzne – brak,
Posadzka balkonów - zatarta warstwa betonu,
Balustrady balkonów – wypełnione szkłem hartowanym,
Wentylacja – mechaniczna z podejściem pod wentylację okapu,
Instalacje wewnętrzne sanitarne – z tworzywa sztucznego lub PCV,
Centralne ogrzewanie MPEC i centralna woda ciepła – z rur wielowarstwowych, zamontowane
natynkowo grzejniki panelowe oraz drabinkowe w łazience,
Instalacja elektryczne – podejścia elektryczne wykonane wraz z osprzętem, wypusty oświetleniowe
sufitowe, wypust 3-fazowy dla kuchni elektrycznej, rozdzielnia elektryczna usytuowana w
przedpokoju,
Instalacja domofonowa – wraz z osprzętem,
Instalacja dzwonkowa – z osprzętem,
Standard wykończenia komórki lokatorskiej – ściany murowane z bloczka betonowego, częściowo
ażurowe, drzwi stalowe ażurowe.
Inwestor zastrzega sobie prawo zmian technicznych i wykonawczych na etapie budowy wynikających
z przepisów prawa budowlanego, przy czym o zmianach tych powiadomi nabywców.
Więcej informacji w biurze agencji Latawiec Nieruchomości oraz na stronie https://www.zieloneosiedle-nisko.pl/
Więcej informacji w biurze agencji Latawiec Nieruchomości oraz na stronie https://www.zieloneosiedle-nisko.pl/
Nota prawna
Opis oferty zawarty na stronie internetowej sporządzany jest na podstawie oględzin nieruchomości oraz informacji uzyskanych od właściciela, może podlegać aktualizacji i nie stanowi oferty określonej w art. 66 i następnych K.C.
Kalkulator kredytowy
Formularz kontaktowy