Mieszkanie na sprzedaż
















Szczegóły ogłoszenia
- Symbol oferty MAK-MS-28084
- Typ oferty mieszkanie na sprzedaż
- Cena 499 000 zł
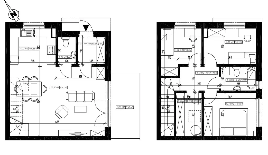
- Charakterystyka mieszkania 87.78 m2, 4 pokoje
- Budynek bliźniak; rok budowy: 2025
- Rozkład mieszkania parter piętro
- Media Ogrzewanie: pompa ciepła
- Balkon taras
- Ilość sypialni 3
- Okna nowe PCV
- Otoczenie las
- Technologia budowlana cegła
Lokalizacja
- Adres kujawsko-pomorskie, Nowa Wieś Wielka, Brzoza
Opis nieruchomości
Zamień mieszkanie na dom – w cenie mieszkania!
Tylko Treraz cena 499.000zł stan deweloperski !!!
Na sprzedaż dom w malowniczej Brzozie k. Bydgoszczy – Osiedle Brzozowy Zakątek
Zapraszamy do zapoznania się z ofertą nowoczesnego domu o powierzchni 87,78 m², położonego w urokliwej okolicy, w sąsiedztwie Kanału Noteckiego. To idealne miejsce dla osób ceniących spokój i bliskość natury, a jednocześnie dogodny dostęp do niezbędnej infrastruktury. Dom znajduje się w spokojnej części Brzozy, a zarazem w jej centrum, co zapewnia szybki dostęp do szkoły, przedszkola, sklepów, przychodni i innych punktów usługowych.
Opis nieruchomości:
-
Parter: przestronny salon z aneksem kuchennym oraz wyjściem na duży taras, przedsionek, łazienka.
-
Piętro: trzy komfortowe sypialnie, łazienka oraz praktyczna garderoba.
-
Dwa miejsca postojowe przed budynkiem.
-
Standard wykończenia: stan deweloperski, ogrzewanie podłogowe, elewacja zewnętrzna wykończona, ogrodzenie oraz kostka brukowa na podjeździe.
-
Okna trzyszybowe zapewniające doskonałą izolację termiczną i akustyczną.
-
Drzwi wejściowe antywłamaniowe zwiększające bezpieczeństwo mieszkańców.
Osiedle Brzozowy Zakątek:
-
Osiedle ogrodzone, z bramą wjazdową.
-
Drogi dojazdowe wykostkowane.
-
Całość wyposażona w nowoczesne oświetlenie osiedlowe.
Dom położony jest w otoczeniu zieleni, co zapewnia relaksującą atmosferę i doskonałe warunki do odpoczynku. To doskonała propozycja dla rodzin, które szukają nowoczesnego i funkcjonalnego domu w spokojnej, a jednocześnie dobrze skomunikowanej okolicy.
Zapraszamy do kontaktu i obejrzenia nieruchomości!