Działka na sprzedaż
109 000 zł
1 010 m2





















1 / 21
Szczegóły ogłoszenia
- Symbol oferty GUT-GS-42
- Typ oferty działka na sprzedaż
- Cena 109 000 zł
- Charakterystyka mieszkania 1010 m2
- Media Woda: brak; Kanalizacja: brak; Prąd: brak; Gaz: brak
- Bezpieczeństwo ogrodzenie działki: brak
- Dojazd droga gruntowa
- Działka Niezagospodarowana, płaska, prostokąt
- Otoczenie jezioro i las
Lokalizacja
- Adres warmińsko-mazurskie, nowomiejski, Nowe Miasto Lubawskie (gw)
Opis nieruchomości
Działka letniskowa k./ jeziora Studa w Jamielniku w gminie Nowe Miasto Lub. na Mazurach Zach.
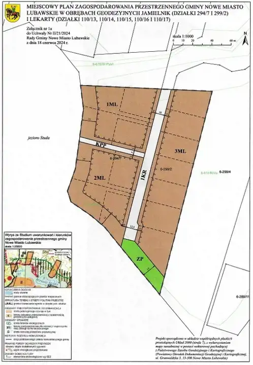
MPZP - teren pod zabudowę letniskową i rekreacji ind.
- Działka o pow. 1010 m2 z dostępem do pobliskiego jeziora. W kameralnym kompleksie letniskowym.
- Okoliczne media: energia elektr. + wodociąg.
- Okolice o walorach rekreacyjno - krajobrazowo - przyrodniczych.
- Położenie na pograniczu bogatych w jeziora i lasy atrakcyjnych Pojezierzy Iławskiego i Brodnickiego. Jest to teren tzw. Zielonych Płuc Polski.
- Zaciszna lokalizacja na skraju dużej wsi. Z ładnymi widokami na okolicę.
- Atrakcyjnie ukształtowane tereny z licznymi jeziorami, rezerwatami przyrody i dużym kompleksem leśnym.
- Kwadrans autem do okolicznych powiatowych miast Iławy oraz Nowego Miasta Lubawskiego.
- Pobliska Iława położona jest nad najdłuższym w kraju 27 km jeziorem Jeziorak. Ten duży akwen ulubiony jest m.in. przez Pasjonatów żeglarstwa. Czeka tu na Nich nowoczesny port jachtowy.
- W okolicy rekomendujemy Państwu: luksusowy Hotel SPA Wzgórza Dylewskie Dr Ireny Eris; Kurzą Górę m.in. z największą w płn. Polsce stacją narciarską, restauracją, rodzinnym parkiem rozrywki z kompleksem tubingowym, okazałą wieżą widokową z 2 km drewnianym traktem; Kanał Ostródzko - Elbląski z pochylniami gdzie statki "płyną po trawie"...
- Stacja PKP Jamielnik leży na linii ... Olsztyn - Toruń ... W okolicy biegną drogi krajowe Nr 15 i 16 w kierunku Olsztyna, Torunia i Grudziądza. W gminie Ostróda biegnie droga ekspresowa S-7 w kierunku Warszawy, Gdańska i Krakowa.
- Pobliska Iława jest ważnym węzłem PKP z wieloma połączeniami z największymi ośrodkami w kraju. Kursuje tu regularnie m.in. komfortowe Pendolino. Dojazd: Warszawa ~2 godz. / Gdańsk ~1 godz. / Kraków ~4,5 godz.
Cena do negocjacji.
Jesteśmy dla Państwa od ubiegłego wieku. Tysiące transakcji i 100% bezszkodowość..
Obsługujemy nieruch w całym kraju. Specjalizacja powiaty: Nowomiejski - Iławski - Brodnicki - Ostródzki - Działdowski - Grudziądzki - Kwidzyński - Sztumski oraz zarządzanie najmem.
Nasi Klienci pochodzą głównie z poleceń - poleć nas Znajomym
Odpowiedzialny zawod. za realizację umowy mgr Wojciech Gutkowski - Licencja PFRN Nr 1385. Przedmiotowa prezentacja ma charakter poglądowy i nie stanowi oferty w rozumieniu Kodeksu Cywilnego.
MPZP - teren pod zabudowę letniskową i rekreacji ind.
- Działka o pow. 1010 m2 z dostępem do pobliskiego jeziora. W kameralnym kompleksie letniskowym.
- Okoliczne media: energia elektr. + wodociąg.
- Okolice o walorach rekreacyjno - krajobrazowo - przyrodniczych.
- Położenie na pograniczu bogatych w jeziora i lasy atrakcyjnych Pojezierzy Iławskiego i Brodnickiego. Jest to teren tzw. Zielonych Płuc Polski.
- Zaciszna lokalizacja na skraju dużej wsi. Z ładnymi widokami na okolicę.
- Atrakcyjnie ukształtowane tereny z licznymi jeziorami, rezerwatami przyrody i dużym kompleksem leśnym.
- Kwadrans autem do okolicznych powiatowych miast Iławy oraz Nowego Miasta Lubawskiego.
- Pobliska Iława położona jest nad najdłuższym w kraju 27 km jeziorem Jeziorak. Ten duży akwen ulubiony jest m.in. przez Pasjonatów żeglarstwa. Czeka tu na Nich nowoczesny port jachtowy.
- W okolicy rekomendujemy Państwu: luksusowy Hotel SPA Wzgórza Dylewskie Dr Ireny Eris; Kurzą Górę m.in. z największą w płn. Polsce stacją narciarską, restauracją, rodzinnym parkiem rozrywki z kompleksem tubingowym, okazałą wieżą widokową z 2 km drewnianym traktem; Kanał Ostródzko - Elbląski z pochylniami gdzie statki "płyną po trawie"...
- Stacja PKP Jamielnik leży na linii ... Olsztyn - Toruń ... W okolicy biegną drogi krajowe Nr 15 i 16 w kierunku Olsztyna, Torunia i Grudziądza. W gminie Ostróda biegnie droga ekspresowa S-7 w kierunku Warszawy, Gdańska i Krakowa.
- Pobliska Iława jest ważnym węzłem PKP z wieloma połączeniami z największymi ośrodkami w kraju. Kursuje tu regularnie m.in. komfortowe Pendolino. Dojazd: Warszawa ~2 godz. / Gdańsk ~1 godz. / Kraków ~4,5 godz.
Cena do negocjacji.
Jesteśmy dla Państwa od ubiegłego wieku. Tysiące transakcji i 100% bezszkodowość..
Obsługujemy nieruch w całym kraju. Specjalizacja powiaty: Nowomiejski - Iławski - Brodnicki - Ostródzki - Działdowski - Grudziądzki - Kwidzyński - Sztumski oraz zarządzanie najmem.
Nasi Klienci pochodzą głównie z poleceń - poleć nas Znajomym
Odpowiedzialny zawod. za realizację umowy mgr Wojciech Gutkowski - Licencja PFRN Nr 1385. Przedmiotowa prezentacja ma charakter poglądowy i nie stanowi oferty w rozumieniu Kodeksu Cywilnego.
Nota prawna
Opis oferty zawarty na stronie internetowej sporządzany jest na podstawie oględzin nieruchomości oraz informacji uzyskanych od właściciela, może podlegać aktualizacji i nie stanowi oferty określonej w art. 66 i następnych K.C.
Kalkulator kredytowy
Formularz kontaktowy