Działka na sprzedaż
11 200 000 zł
70 000 m2





1 / 5
Szczegóły ogłoszenia
- Symbol oferty AHO-GS-261
- Typ oferty działka na sprzedaż
- Cena 11 200 000 zł
- Charakterystyka mieszkania 70000 m2
- Media Prąd: jest
- Bezpieczeństwo ogrodzenie działki: brak
- Dojazd ASFALTOWA
- Działka częściowo zagospodarowana, płaska, nieregularny
- Otoczenie zakład produkcyjny
Lokalizacja
- Adres zachodniopomorskie, Nowogard
Opis nieruchomości
Na sprzedaż atrakcyjna działka o powierzchni 7 ha (70 000 m²), położona w Nowogardzie , w rejonie ul. 3-go Maja. Cena: 160 zł/m² + VAT
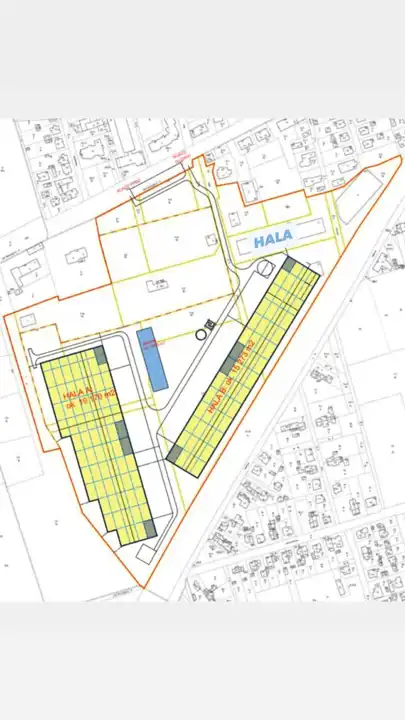
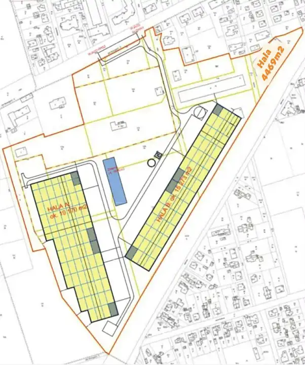
Nieruchomość oferowana jest wraz z gotową koncepcją budowy dwóch hal mogących posłużyć do celów logistycznych/produkcyjnych/magazynowych, co czyni ją idealną propozycją pod kompleks przemysłowy.
Potencjał inwestycyjny
Działka doskonale sprawdzi się jako:
• zaplecze produkcyjne,
• centrum magazynowe,
• baza logistyczna,
• kompleks przemysłowy z możliwością dalszej rozbudowy.
Duża powierzchnia terenu pozwala na elastyczne zagospodarowanie według potrzeb przyszłego właściciela.
Istniejąca infrastruktura
W bezpośrednim sąsiedztwie znajduje się hala o powierzchni ok. 2 000 m², zaprojektowana w sposób umożliwiający elastyczne wykorzystanie przestrzeni.
Obiekt posiada pełne uzbrojenie techniczne - dostępne są wszystkie niezbędne media.
Teren wokół hali został przystosowany do obsługi transportu ciężkiego:
• szeroki wjazd,
• utwardzony plac manewrowy dla samochodów typu TIR,
• bezpośrednia bliskość bocznicy kolejowej- znacząco zwiększająca potencjał logistyczny.
Działka położona jest w dobrze skomunikowanej części miasta, z szybkim dojazdem do głównych tras, co zapewnia sprawną organizację transportu krajowego i międzynarodowego.
Nieruchomość oferowana jest wraz z gotową koncepcją budowy dwóch hal mogących posłużyć do celów logistycznych/produkcyjnych/magazynowych, co czyni ją idealną propozycją pod kompleks przemysłowy.
Potencjał inwestycyjny
Działka doskonale sprawdzi się jako:
• zaplecze produkcyjne,
• centrum magazynowe,
• baza logistyczna,
• kompleks przemysłowy z możliwością dalszej rozbudowy.
Duża powierzchnia terenu pozwala na elastyczne zagospodarowanie według potrzeb przyszłego właściciela.
Istniejąca infrastruktura
W bezpośrednim sąsiedztwie znajduje się hala o powierzchni ok. 2 000 m², zaprojektowana w sposób umożliwiający elastyczne wykorzystanie przestrzeni.
Obiekt posiada pełne uzbrojenie techniczne - dostępne są wszystkie niezbędne media.
Teren wokół hali został przystosowany do obsługi transportu ciężkiego:
• szeroki wjazd,
• utwardzony plac manewrowy dla samochodów typu TIR,
• bezpośrednia bliskość bocznicy kolejowej- znacząco zwiększająca potencjał logistyczny.
Działka położona jest w dobrze skomunikowanej części miasta, z szybkim dojazdem do głównych tras, co zapewnia sprawną organizację transportu krajowego i międzynarodowego.
Nota prawna
Opis oferty zawarty na stronie internetowej sporządzany jest na podstawie oględzin nieruchomości oraz informacji uzyskanych od właściciela, może podlegać aktualizacji i nie stanowi oferty określonej w art. 66 i następnych K.C.
Kalkulator kredytowy
Formularz kontaktowy