Hala na sprzedaż
1 230 000 zł
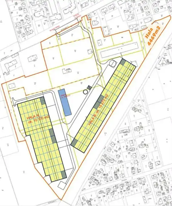
4 469 m2




1 / 4
Szczegóły ogłoszenia
- Symbol oferty AHO-HS-255
- Typ oferty hala na sprzedaż
- Cena 1 230 000 zł
- Charakterystyka mieszkania 4469 m2
- Dojazd ASFALTOWA
- Działka Zagospodarowana, płaska, prostokąt
- Liczba kondygnacji 1
- Otoczenie zakład produkcyjny
- Przeznaczenie hali magazynowy
Lokalizacja
- Adres zachodniopomorskie, Nowogard
Opis nieruchomości
Na sprzedaż hala przemysłowa położona w Nowogardzie, usytuowana na działce o powierzchni
4469 m². Nieruchomość idealnie sprawdzi się jako zaplecze produkcyjne, magazynowe lub logistyczne. Hala ok 2tys m2 zaprojektowana w sposób umożliwiający elastyczne wykorzystanie przestrzeni. Obiekt posiada pełne uzbrojenie techniczne – dostępne są wszystkie niezbędne media. Teren wokół hali został przystosowany do obsługi transportu ciężkiego. Szeroki wjazd oraz utwardzony plac manewrowy pozwalają na swobodne poruszanie się samochodów typu TIR. Dodatkowym atutem jest bezpośrednia bliskość bocznicy kolejowej, co znacząco zwiększa potencjał logistyczny nieruchomości. Lokalizacja zapewnia sprawną komunikację oraz szybki dojazd do głównych tras, a duża powierzchnia działki daje możliwość dalszej rozbudowy lub zagospodarowania według potrzeb przyszłego właściciela.
4469 m². Nieruchomość idealnie sprawdzi się jako zaplecze produkcyjne, magazynowe lub logistyczne. Hala ok 2tys m2 zaprojektowana w sposób umożliwiający elastyczne wykorzystanie przestrzeni. Obiekt posiada pełne uzbrojenie techniczne – dostępne są wszystkie niezbędne media. Teren wokół hali został przystosowany do obsługi transportu ciężkiego. Szeroki wjazd oraz utwardzony plac manewrowy pozwalają na swobodne poruszanie się samochodów typu TIR. Dodatkowym atutem jest bezpośrednia bliskość bocznicy kolejowej, co znacząco zwiększa potencjał logistyczny nieruchomości. Lokalizacja zapewnia sprawną komunikację oraz szybki dojazd do głównych tras, a duża powierzchnia działki daje możliwość dalszej rozbudowy lub zagospodarowania według potrzeb przyszłego właściciela.
Nota prawna
Opis oferty zawarty na stronie internetowej sporządzany jest na podstawie oględzin nieruchomości oraz informacji uzyskanych od właściciela, może podlegać aktualizacji i nie stanowi oferty określonej w art. 66 i następnych K.C.
Kalkulator kredytowy
Formularz kontaktowy