Działka na sprzedaż






Szczegóły ogłoszenia
- Symbol oferty PTY-GS-780
- Typ oferty działka na sprzedaż
- Cena 2 200 000 zł
- Charakterystyka mieszkania 9674 m2
- Media Woda: brak; Kanalizacja: brak; Prąd: jest; Gaz: brak
- Bezpieczeństwo ogrodzenie działki: brak
- Dojazd droga nieutwardzona
- Działka Niezagospodarowana, płaska, trapez
- Otoczenie działki niezabudowane
Lokalizacja
- Adres małopolskie, Nowy Sącz, Święta Helena
Opis nieruchomości
Wyjątkowa działka inwestycyjna – 96,74 ar w Nowym Sączu!
Tylko 3 km od Rynku Starego Miasta!
Szukasz przestrzeni pod inwestycję w świetnej lokalizacji? Ta działka może spełnić twoje oczekiwania
Na sprzedaż duża działka budowlano-usługowa o powierzchni 9674 m², położona w spokojnej okolicy, zaledwie 3 km od centrum Nowego Sącza.
Lokalizacja:
• Dojazd od ul. Teodora Axentowicza
• W planach: nowa droga z rondem od ul. Marcinkowickiej (zgodnie z MPZP)
• Bliskość estakady – szybki dostęp do głównych arterii miasta
• Spokojna okolica z dużym potencjałem rozwoju
Parametry działki:
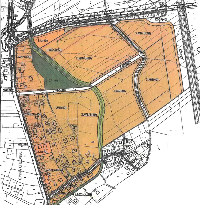
• MPZP: 2.MN/U(40) – tereny zabudowy mieszkaniowo-usługowej, w tym bliźniaczej
• Teren płaski, idealny pod zabudowę mieszkaniową, bliźniaczą lub działalność usługową
• Możliwość podziału na mniejsze działki
Media:
• Prąd – ok. 80 m od granicy działki
• Gaz, wodociąg, kanalizacja – dostępne przy ul. Marcinkowickiej
Idealna dla:
• Dewelopera szukającego gruntu pod osiedle
• Inwestora planującego działalność usługową
• Osoby prywatnej z wizją dużej rezydencji z przestrzenią usługową
Cena do negocjacji – zapraszam do kontaktu!