Mieszkanie na sprzedaż
980 000 zł
65 m2













1 / 13
Szczegóły ogłoszenia
- Symbol oferty NVM-MS-762
- Typ oferty mieszkanie na sprzedaż
- Cena 980 000 zł
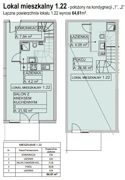
- Charakterystyka mieszkania 64.94 m2, 3 pokoje
- Budynek apartamentowiec; rok budowy: 2022
- Rozkład mieszkania 1p piętro
- Media Ogrzewanie: C.O. Z SIECI MIEJSKIEJ; Woda: ciepła - miejska
- Balkon jest
- Dojazd asfalt
- Garaż garaż pod budynkiem
- Ilość sypialni 2
- Otoczenie centrum miasta
- Stan lokalu deweloperski
- Technologia budowlana ceramika
- Winda Tak
Lokalizacja
- Adres małopolskie, nowotarski, Nowy Targ
Opis nieruchomości
Zamieszkaj w sercu Nowego Targu! Nowe, dwupoziomowe mieszkanie z klimatyzacją – gotowe do wprowadzenia!
Szukasz idealnego miejsca do życia w centrum Nowego Targu? Odkryj to nowe, trzypokojowe mieszkanie o powierzchni 64,94 m², zlokalizowane na pierwszym piętrze i poddaszu nowoczesnego budynku przy ulicy Orkana. Zaledwie 250 metrów od Rynku, to doskonała propozycja dla tych, którzy cenią sobie wygodę i bliskość miejskich atrakcji.
Co Sprawia, że To Mieszkanie Jest Wyjątkowe?
- Gotowe do wprowadzenia od zaraz: Zapomnij o uciążliwych remontach! Mieszkanie jest kompletnie wykończone, umeblowane i wyposażone w klimatyzację. Po prostu się wprowadź i zacznij cieszyć się nowym domem.
- Praktyczny dwupoziomowy układ: Na pierwszym poziomie znajdziesz przestronny salon z aneksem kuchennym i łazienkę, idealne do codziennego życia i spotkań z bliskimi. Na drugim poziomie czekają na Ciebie dwie komfortowe sypialnie, zapewniające prywatność i spokój.
- Balkon z widokiem na wschód: Z salonu prowadzi wyjście na balkon, gdzie możesz delektować się poranną kawą i wschodzącym słońcem.
- Doskonała lokalizacja: Mieszkanie znajduje się w centrum Nowego Targu, co oznacza, że wszystkie udogodnienia masz na wyciągnięcie ręki – sklepy, restauracje, kawiarnie, a także przystanki komunikacji miejskiej.
- Nowoczesny budynek z zapleczem usługowym: Mieszczące się w nim kilkadziesiąt mieszkań oraz lokale usługowe na parterze sprawiają, że wszystko, czego potrzebujesz, jest w zasięgu kilku kroków. Budynek posiada pozwolenie na użytkowanie, co gwarantuje bezpieczeństwo i wysoką jakość.
- Komfortowe ogrzewanie i niskie koszty: Ogrzewanie z sieci miejskiej to pewność ciepła i ekonomicznego użytkowania.
- Przejrzysta cena: W cenę lokalu wliczony jest 8% podatek VAT.
- Możliwość zakupu miejsca parkingowego: Dla Twojej wygody istnieje możliwość dokupienia miejsca w garażu podziemnym za 75 000 zł brutto (również z 8% VAT), co jest nieocenionym atutem w centrum miasta.
Nie przegap tej wyjątkowej szansy na zamieszkanie w prestiżowej lokalizacji w Nowym Targu!
Chcesz zobaczyć to mieszkanie na żywo? Skontaktuj się z nami już dziś, aby umówić się na prezentację!
Nota prawna
Opis oferty zawarty na stronie internetowej sporządzany jest na podstawie oględzin nieruchomości oraz informacji uzyskanych od właściciela, może podlegać aktualizacji i nie stanowi oferty określonej w art. 66 i następnych K.C.
Kalkulator kredytowy
Formularz kontaktowy