Działka na sprzedaż
126 000 zł
2 800 m2















1 / 15
Szczegóły ogłoszenia
- Symbol oferty PRF-GS-7311
- Typ oferty działka na sprzedaż
- Cena 126 000 zł
- Charakterystyka mieszkania 2800 m2
- Media Woda: brak; Kanalizacja: brak; Prąd: w ulicy; Gaz: brak
- Bezpieczeństwo ogrodzenie działki: brak
- Dojazd asfalt
- Działka Niezagospodarowana, płaska, prostokąt
- Otoczenie działki zabudowane
Lokalizacja
- Adres wielkopolskie, Nowy Tomyśl (gw), Nowa Róża
Opis nieruchomości
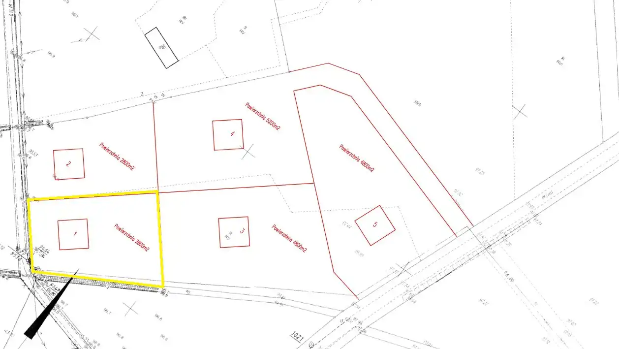
Na sprzedaż działka o powierzchni 2800 m2 w trakcie wydzielania. Podział zakłada powstanie 5 działek rezydencjalnych o powierzchni 2800m2 (2), 4800m2 (2) i 5200m2. Działki zlokalizowane przy drodze asfaltowej Sątopy- Róża pod Nowym Tomyślem.
Możliwość zakupu sąsiednich wydzielanych działek.
W drodze prąd. W sąsiedztwie gospodarstwa indywidualne i siedliska całoroczne osób ceniących sobie obcowanie z naturą. Okolica znana z hodowli koni i gospodarstw hippicznych. Świetna lokalizacja pod gospodarstwo agroturystyczne. Działka zlokalizowana kilkanaście kilometrów od folwarku i pałacu w Wąsowie. Dzięki dobremu nasłonecznieniu i przebiegającej w granicy działki linii średniego napięcia z pobliskiego GPZ Buk działka nadaje się pod farmę fotowoltaiczną.
Zaprojektuj swój wymarzony, zeroenergetyczny dom naturalny z architektem Adamem Dudko z Pracowni Proporcji.
Możliwość zakupu sąsiednich wydzielanych działek.
W drodze prąd. W sąsiedztwie gospodarstwa indywidualne i siedliska całoroczne osób ceniących sobie obcowanie z naturą. Okolica znana z hodowli koni i gospodarstw hippicznych. Świetna lokalizacja pod gospodarstwo agroturystyczne. Działka zlokalizowana kilkanaście kilometrów od folwarku i pałacu w Wąsowie. Dzięki dobremu nasłonecznieniu i przebiegającej w granicy działki linii średniego napięcia z pobliskiego GPZ Buk działka nadaje się pod farmę fotowoltaiczną.
Zaprojektuj swój wymarzony, zeroenergetyczny dom naturalny z architektem Adamem Dudko z Pracowni Proporcji.
Nota prawna
Opis oferty zawarty na stronie internetowej sporządzany jest na podstawie oględzin nieruchomości oraz informacji uzyskanych od właściciela, może podlegać aktualizacji i nie stanowi oferty określonej w art. 66 i następnych K.C.
Kalkulator kredytowy
Formularz kontaktowy