Mieszkanie na sprzedaż
429 000 zł
68 m2



















1 / 19
Szczegóły ogłoszenia
- Symbol oferty MAKR-MS-127
- Typ oferty mieszkanie na sprzedaż
- Cena 429 000 zł
- Charakterystyka mieszkania 68 m2, 3 pokoje
- Budynek budynek wolnostojący; rok budowy: 2000
- Rozkład mieszkania 1p piętro
- Media Ogrzewanie: gazowe; Woda: tak; Gaz: jest
- Dojazd asfalt
- Instalacje nowe
- Okna drewniane
- Otoczenie działki zabudowane
- Stan lokalu do wprowadzenia
Lokalizacja
- Adres dolnośląskie, oławski, Oława
Opis nieruchomości
- TRÓJSTRONNE
- 7 MINUT PIESZO DO CENTRUM
- PARKING
- BUDYNEK Z 2000 ROKU GOTOWE DO ZAMIESZKANIA
OPIS BUDYNKU i MIESZKANIA:
Na sprzedaż trzy pokojowe wykończone mieszkanie o powierzchni użytkowej w KW 58,5 m² (powierzchnia po podłodze 68 m²) mieszczące się na pierwszym piętrze w budynku z 2000 r. zlokalizowanym przy ul. Strzelnej w Oławie.
Dużym atutem tego mieszkania jest jego układ. Mieszkanie trójstronne jasne i przestronne z dużym salonem oraz ustawnymi pokojami.
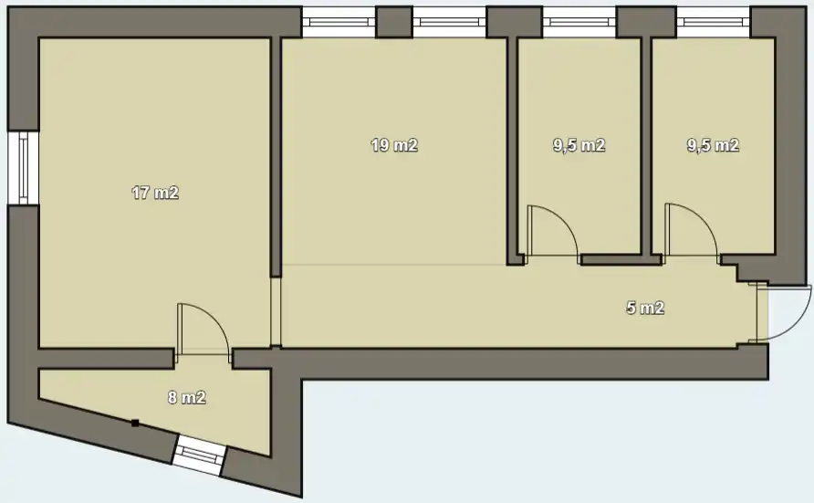
Mieszkanie składa się z (powierzchnie mierzone po podłodze):
- dużego jasnego salonu o pow. około 19 m²
- dużej kuchni z oknem o pow. około 17 m²
- pokoju o pow. około 9,5 m²
- drugiego pokoju o pow. 9,5 m²
- łazienki o pow. 8 m²
- całość dopełnia przedpokój o pow. 5 m²
LOKALIZACJA:
W okolicy w pełni rozwinięta infrastruktura m.in. sklepy: Żabka, Aldi, Kaufland, Biedronak, Galeria Handlowa Oławska, a do rynku dzieli nas zaledwie 450 m.
OPŁATY i KONTAKT:
Mieszkanie bezczynszowe opłaty według liczników: prąd, woda, gaz.
Wszystkie zainteresowane osoby serdecznie zapraszam na niezobowiązującą prezentacje oraz proszę o bezpośredni kontakt: Krzysztof Huniak tel. + 48 508 221 051, k.huniak@makronieruchomosci.pl
Szanowni Państwo, zawsze dążymy do tego, aby informacje o proponowanych przez nas ofertach były jak najbardziej dokładne i aktualne. Warto jednak mieć na uwadze fakt, iż opis oferty zawarty na stronie internetowej sporządzany jest na podstawie oględzin nieruchomości oraz informacji uzyskanych od właściciela, może podlegać aktualizacji i nie stanowi oferty określonej w art. 66 i następnych K.C.
Nota prawna
Opis oferty zawarty na stronie internetowej sporządzany jest na podstawie oględzin nieruchomości oraz informacji uzyskanych od właściciela, może podlegać aktualizacji i nie stanowi oferty określonej w art. 66 i następnych K.C.
Kalkulator kredytowy
Formularz kontaktowy