Działka na sprzedaż










Szczegóły ogłoszenia
- Symbol oferty CMW-GS-392
- Typ oferty działka na sprzedaż
- Cena 1 500 000 zł
- Charakterystyka mieszkania 8317 m2
Lokalizacja
- Adres opolskie, Opole, Czarnowąsy
Opis nieruchomości
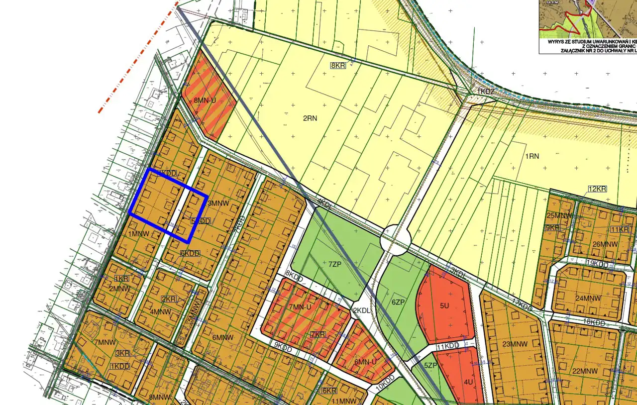
Prawie hektarowa działka z projektem podziału, zlokalizowana w Opolu-Czarnowąsach, w spokojnej części tej dzielnicy (ul. Podleśna), w której powstaje nowa zabudowa wolnostojących budynków mieszkalnych.
Projekt podziału przewiduje powstanie 9 działek o kształcie regularnych prostokątów i powierzchniach od 770 do 877m2 oraz działki stanowiącej drogę dojazdową.
Dostępne media to: prąd, woda i kanalizacja.
Dla przedmiotowego terenu został już przedstawiony projekt Miejscowego Planu Zagospodarowania Przestrzennego (rozpatrzono już wniesione uwagi), w którym określono m.in.:
przeznaczenie terenu: teren zabudowy mieszkaniowej jednorodzinnej wolnostojącej
wskaźniki wykorzystania terenu:
- nadziemna intensywność zabudowy od 0,2 do 0,4
- maksymalna intensywność zabudowy 0,5
- maksymalny udział powierzchni zabudowy 25
- minimalny udział powierzchni biologicznie czynnej 40% (do bilansowania dopuszcza się 10% udziału powierzchni biologicznie czynnej położonej na tarasach, dachach, stropodachach)
parametry zabudowy:
- maksymalna wysokość budynków z dachem stromym do 10m
- maksymalna wysokość budynków z dachem płaskim do 5
- liczba kondygnacji nadziemnych budynków do 2
dachy:
- strome dwuspadowe i wielospadowe o jednakowym kącie nachylenia połaci w przedziale 30º-45º
- dopuszcza się dachy jednospadowe lub płaskie na części budynku, jednakże nie mogą one przekraczać 50% powierzchni zabudowy
- pokrycie dachów stromych w odcieniach kolorów czerwonego, brązowego lub grafitowego
W 2020 roku wydane zostały warunki zabudowy dla inwestycji: budowa zespołu budynków mieszkalnych jednorodzinnych, budowa drogi wewnętrznej, budowa odcinków sieci kanalizacji sanitarnej, wodociągowej i elektroenergetycznej.