Mieszkanie na wynajem















 Szczegóły ogłoszenia 
- Symbol oferty MMN-MW-1494
 - Typ oferty mieszkanie na wynajem
 - Czynsz wynajmu 2 600 zł / miesiąc
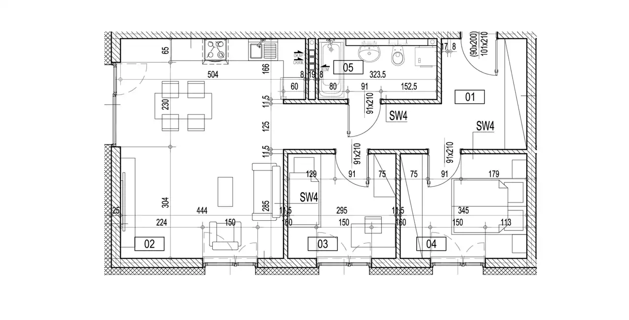
 - Charakterystyka mieszkania 63.98 m2, 3 pokoje
 - Rozkład mieszkania 2p piętro
 
 Lokalizacja 
- Adres opolskie, Opole m., Opole
 
 Opis nieruchomości 
WYNAJEM NOWOCZESNEGO APARTAMENTU Z KLIMATYZACJĄ, MIEJSCEM POSTOJOWYM I KOMÓRKĄ LOKATORSKĄ!
TYLKO U NAS! PIERWSZY NAJEM!
Mamy przyjemność zaprezentować Państwu do wynajęcia zupełnie nowy, komfortowy apartament, położony na pierwszym piętrze kameralnego apartamentowca w atrakcyjnej lokalizacji. To pierwsza okazja, by zamieszkać w tym lokalu!
Mieszkanie zostało zaprojektowane z myślą o wygodzie i funkcjonalności, oferując:
- 
	
Przestronny salon z aneksem kuchennym: Idealne miejsce do relaksu i spędzania czasu z bliskimi. Aneks kuchenny jest w pełni wyposażony w nowoczesne meble na wymiar oraz wysokiej klasy sprzęt AGD (płyta indukcyjna, piekarnik, lodówka, zmywarka).
 - 
	
2 Sypialnie: Komfortowa przestrzeń do wypoczynku.
 - 
	
Łazienkę z wanną: Nowocześnie urządzona, zapewniająca komfort użytkowania.
 - 
	
Praktyczny przedpokój
 - 
	
Duży balkon: Idealny na poranną kawę czy wieczorny relaks (wymiary ok. 230x247 cm, widoczny na rzucie).
 
Dodatkowe atuty, które wyróżniają ten apartament:
- 
	
KLIMATYZACJA: Zapewniająca komfortową temperaturę przez cały rok, niezależnie od pogody.
 - 
	
ROLETY W OKNACH: Gwarantujące prywatność i ochronę przed słońcem.
 - 
	
KOMÓRKA LOKATORSKA: Dodatkowa przestrzeń do przechowywania.
 - 
	
MIEJSCE POSTOJOWE NA OGRODZONEJ POSESJI: Bezpieczne i wygodne parkowanie samochodu.
 
Lokalizacja: Apartamentowiec znajduje się w spokojnej, a jednocześnie dobrze skomunikowanej okolicy, co zapewnia łatwy dostęp do wszelkich udogodnień miejskich. Osiedle jest ogrodzone, co zwiększa poczucie bezpieczeństwa.
Idealna propozycja dla: Singla, pary.
Cena wynajmu:2300 zł plus opłaty administracyjne
Wymagana kaucja, umowa najmu instytucjonalnego.
Nie przegap tej wyjątkowej okazji! To idealne miejsce dla osób ceniących sobie komfort, nowoczesność i wysoki standard życia.
Zapraszamy do kontaktu w celu umówienia prezentacji!