Mieszkanie na sprzedaż




















Szczegóły ogłoszenia
- Symbol oferty TWO-MS-88
- Typ oferty mieszkanie na sprzedaż
- Cena 449 000 zł
- Charakterystyka mieszkania 85.05 m2, 4 pokoje
- Budynek apartamentowiec; rok budowy: 2026
- Rozkład mieszkania 1p piętro
- Media Ogrzewanie: C.O. GAZOWE; Woda: jest; Gaz: jest
- Dojazd asfalt
- Instalacje nowe
- Okna PCV
- Otoczenie działki zabudowane
- Stan lokalu deweloperski
- Technologia budowlana beton, gazobeton
Lokalizacja
- Adres kujawsko-pomorskie, brodnicki, Osiek
Opis nieruchomości
Prezentujemy ofertę nowego mieszkania w ramach nowoczesnej inwestycji deweloperskiej zlokalizowanej w miejscowości Jeziórki (gmina Osiek) – tylko 5 minut od Brodnicy!
Osiedle obejmuje łącznie 20 mieszkań zlokalizowanych w 10 budynkach dwulokalowych w zabudowie bliźniaczej. Każdy budynek posiada jedno mieszkanie na parterze i jedno na piętrze. Lokale na parterze mają przynależne ogródki, natomiast lokale na piętrze – duże tarasy. Całość inwestycji wyróżnia się nowoczesną architekturą, starannie zaplanowanym układem komunikacyjnym oraz dużym terenem rekreacyjnym na końcu osiedla.
W ramach inwestycji powstanie również 10 garaży, które można dokupić dodatkowo. Zaplanowano wykonanie utwardzeń pomiędzy budynkami, drogi dojazdowej oraz strefy wypoczynkowej dla mieszkańców.
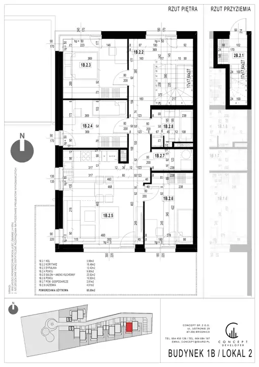
Lokal nr 2 w budynku 1B – piętro
Powierzchnia użytkowa: 85,05 m²
Rozkład pomieszczeń:
-
Hol – 3,98 m²
-
Korytarz – 16,42 m²
-
Sypialnia – 12,42 m²
-
Pokój – 9,90 m²
-
Salon z aneksem kuchennym – 23,92 m²
-
Pokój – 10,92 m²
-
Pomieszczenie gospodarcze – 2,81 m²
-
Łazienka – 4,61 m²
Do lokalu przynależy duży taras, który stanowi znakomitą przestrzeń do wypoczynku na świeżym powietrzu.
Standard wykończenia i ogrzewanie:
Lokale zostaną przekazane w standardzie deweloperskim, obejmującym wykonanie instalacji elektrycznej, wodno-kanalizacyjnej, tynków wewnętrznych, wylewek oraz montaż stolarki okiennej i drzwi wejściowych.
Ogrzewanie zapewnią indywidualne piece gazowe, co pozwala na pełną kontrolę nad temperaturą i zużyciem energii, gwarantując wygodę oraz ekonomiczne użytkowanie lokalu.
Lokalizacja: Jeziórki to spokojna miejscowość położona w sąsiedztwie terenów zielonych, z bardzo dobrym dojazdem do Brodnicy. W odległości kilku minut spacerem znajduje się zabudowa wsi Osiek, a w niej: sklep Dino, przedszkole gminne, szkoła podstawowa, punkty usługowe i handlowe. Tuż przy inwestycji biegnie ścieżka pieszo-rowerowa łącząca Osiek z Brodnicą.
To doskonałe miejsce do zamieszkania zarówno dla rodzin, jak i osób ceniących spokój, wygodę oraz szybki dostęp do miasta.
Zainteresowanych zapraszamy do kontaktu w celu uzyskania szczegółowych informacji o ofercie oraz dostępnych lokalach w tej inwestycji!
Termin rozpoczęcia budowy: wrzesień 2025 roku
Planowane oddanie do użytku: III kwartał 2026 roku
Zapraszamy do rezerwacji!
O inwestorze:
Inwestorem osiedla w Jeziórkach jest Concept Developer – dynamicznie rozwijająca się firma z ugruntowaną pozycją na lokalnym rynku nieruchomości, za którą stoją osoby z ponad 20-letnim międzynarodowym doświadczeniem w branży budowlanej. Deweloper posiada wieloletnie doświadczenie w realizacji nowoczesnych i funkcjonalnych inwestycji mieszkaniowych, które wyróżniają się wysokim standardem wykonania, dbałością o detale oraz estetyką architektoniczną.
Concept Developer dysponuje rozbudowaną bazą gruntów oraz ambitną strategią rozwoju, obejmującą kolejne etapy zabudowy mieszkaniowej w regionie. Stabilność, profesjonalizm i zaufanie, jakim firma cieszy się wśród klientów, to gwarancja jakości i bezpieczeństwa inwestycji.
Wybierając mieszkanie od Concept Developer, zyskujesz nie tylko komfortowy lokal, ale i pewność inwestycji opartej na doświadczeniu i pasji tworzenia przestrzeni do życia.
Biuro sprzedaży: Twój Dom Nieruchomości Brodnica
ul. Duży Rynek 21, 87-300 Brodnica
📞 796 398 607
📧 biuro@twojdom.edu.pl
🌐 www.twojdom.edu.pl