Działka na sprzedaż
84 160 zł
1 052 m2











1 / 11
Szczegóły ogłoszenia
- Symbol oferty WITT-GS-1775
- Typ oferty działka na sprzedaż
- Cena 84 160 zł
- Charakterystyka mieszkania 1052 m2
- Media Woda: w drodze; Kanalizacja: szambo; Prąd: jest; Gaz: brak
- Bezpieczeństwo ogrodzenie działki: brak
- Dojazd droga utwardzona
- Działka Niezagospodarowana, płaska, prostokąt
- Otoczenie zabudowa jednorodzinna
Lokalizacja
- Adres warmińsko-mazurskie, Ostróda (gw), Samborowo
Opis nieruchomości
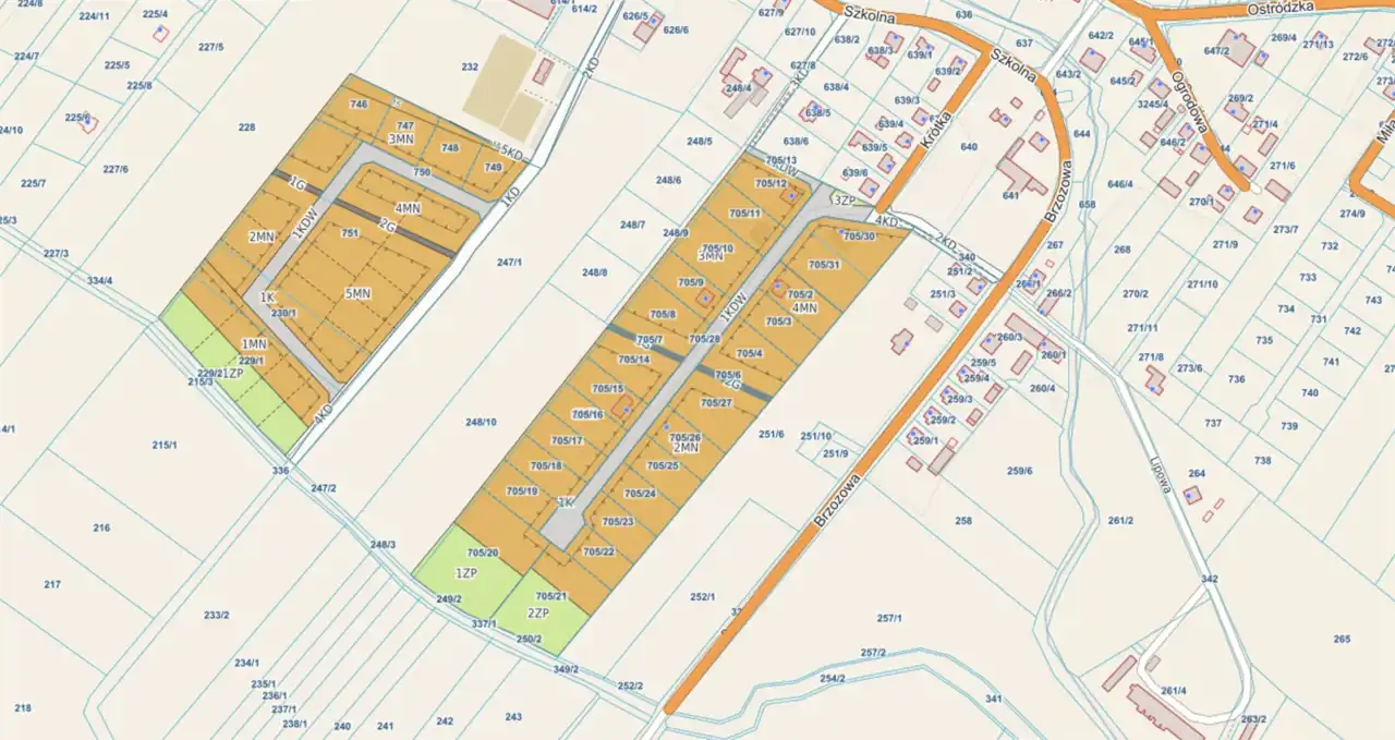
Oferta sprzedaży działek budowlanych w Samborowie
Lokalizacja i przeznaczenie: Na sprzedaż 12 atrakcyjnych działek położonych w Samborowie przy ulicy Krótkiej. Wszystkie objęte są miejscowym planem zagospodarowania przestrzennego (MPZP) i oznaczone jako MN – idealne pod zabudowę jednorodzinną. To doskonała okazja na budowę wymarzonego domu w spokojnej, rozwijającej się okolicy.
Media i uzbrojenie:
- W pobliżu dostępne są woda, prąd, co ułatwia podłączenie.
- Kanalizacja - pozwolenie na szambo,
- Gaz - jest możliwość pociągnięcia z ul. krótkiej.
Dojazd i udziały w drodze: Dojazd odbywa się drogą gminną, a następnie wewnętrzną drogą dojazdową do każdej działki. Przy zakupie każdy nabywca otrzyma gratis odpowiedni udział w drodze wewnętrznej, co zapewnia wygodny i bezproblemowy dostęp.
Dostępne działki z powierzchniami i cenami:
- Działka nr 705/4: 1986 m² – cena 148 950 zł (75 zł/m2)
- Działka nr 705/8: 1924 m² – cena 144 300 zł (75 zł/m2)
- Działka nr 705/10: 1974 m² – cena 157 920 zł (80 zł/m2)
- Działka nr 705/16: 1245 m² – cena 99 600 zł (80 zł/m2)
- Działka nr 705/17: 1248 m² – cena 99 840 zł (80 zł/m2)
- Działka nr 705/18: 1221 m² – cena 97 680 zł (80 zł/m2)
- Działka nr 705/19: 1213 m² – cena 97 040 zł (80 zł/m2)
- Działka nr 705/22: 1052 m² – cena 84 160 zł (80 zł/m2)
- Działka nr 705/23: 1253 m² – cena 100 240 zł (80 zł/m2)
- Działka nr 705/24: 1284 m² – cena 102 720 zł (80 zł/m2)
- Działka nr 705/27: 2123 m² – cena 159 225 zł (75 zł/m2)
- Działka nr 705/31: 1688 m² – cena 135 040 zł (80 zł/m2)
Okolica i otoczenie: Cicha, zielona lokalizacja z nową zabudową jednorodzinną wokół. W pobliżu płynie malownicza rzeczka, a otaczający las zapewnia kontakt z naturą – idealne miejsce na relaks i spacery.
Infrastruktura w Samborowie: Miejscowość oferuje wygodne udogodnienia: supermarket na codzienne zakupy, dworzec kolejowy dla łatwego dojazdu do większych miast, komunikację autobusową oraz szkołę podstawową dla rodzin z dziećmi.
Dodatkowe informacje: Szczegółowe warunki zabudowy według MPZP są dodane w zdjęciach ogłoszenia – sprawdź je, aby poznać wszystkie możliwości! Zapraszam do kontaktu po więcej szczegółów.
Nie zwlekaj, po sprzedaży 3 działek zakańczamy sprzedaż!
Do kwoty należy doliczyć wynagrodzenie dla biura nieruchomości w wysokości 2000 zł.
Zapraszam do kontaktu tel. 601 712 975, odbieram od poniedziałku do niedzieli w godzinach 8-21.
Do kwoty należy doliczyć wynagrodzenie dla biura nieruchomości w wysokości 2000 zł.
Zapraszam do kontaktu tel. 601 712 975, odbieram od poniedziałku do niedzieli w godzinach 8-21.
Nota prawna
Opis oferty zawarty na stronie internetowej sporządzany jest na podstawie oględzin nieruchomości oraz informacji uzyskanych od właściciela, może podlegać aktualizacji i nie stanowi oferty określonej w art. 66 i następnych K.C.
Kalkulator kredytowy
Formularz kontaktowy