Działka na sprzedaż
350 000 zł
1 200 m2














1 / 14
Szczegóły ogłoszenia
- Symbol oferty CKT-GS-1908
- Typ oferty działka na sprzedaż
- Cena 350 000 zł
- Charakterystyka mieszkania 1200 m2
- Media Woda: w drodze; Kanalizacja: brak; Prąd: w ulicy; Gaz: brak
- Bezpieczeństwo ogrodzenie działki: brak
- Działka kwadrat
- Otoczenie zabudowa jednorodzinna
Lokalizacja
- Adres wielkopolskie, Ostrów Wielkopolski (gw), Nowe Kamienice
Opis nieruchomości
Przedstawiamy ofertę sprzedaży nieruchomości atrakcyjnie zlokalizowanej w miejscowości Nowe Kamienice w bliskim sąsiedztwie Ostrowa Wielkopolskiego.
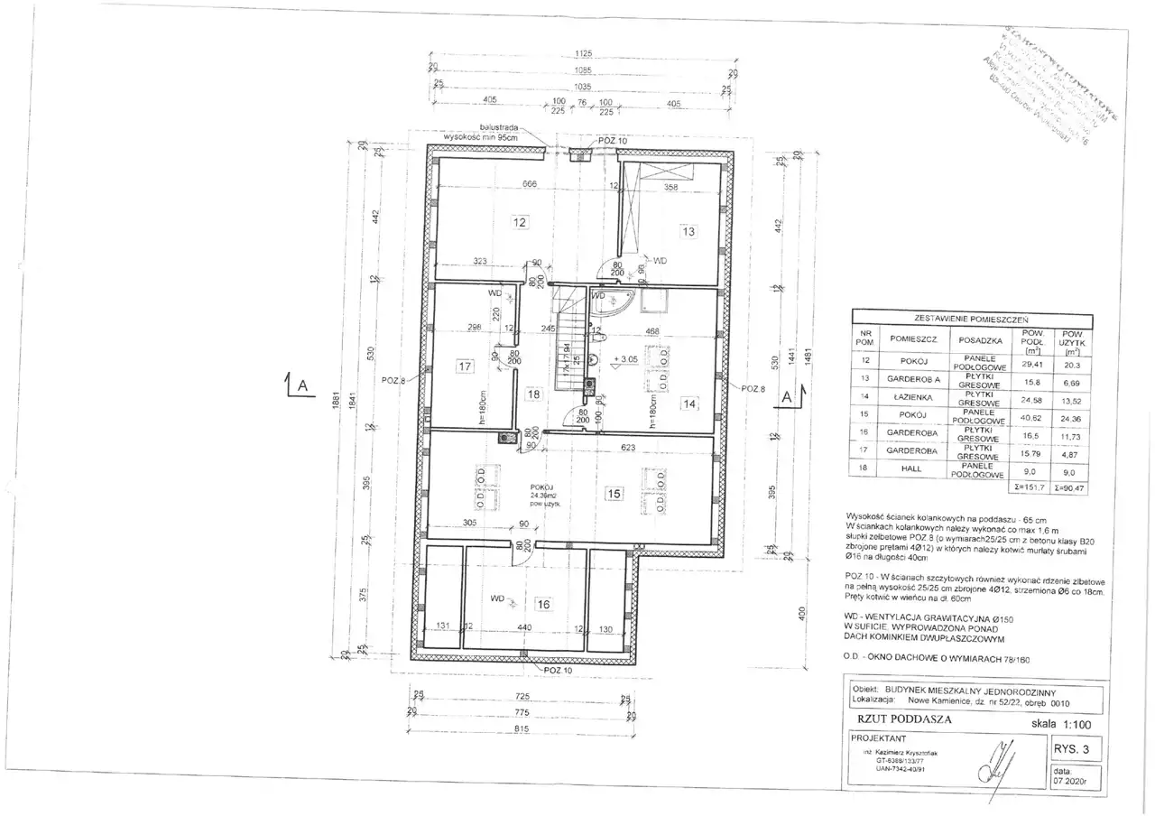
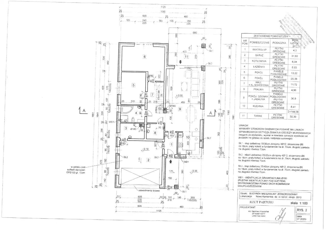
Działka o pow. 1200 m2 z rozpoczętą budową budynku mieszkalnego jednorodzinnego z poddaszem użytkowym o powierzchni 234,56 m2 i garażem dwustanowiskowym w bryle.
Bardzo funkcjonalny układ domu zawiera następujące pomieszczenia:
PARTER
Budowa została rozpoczęta w 2000 roku i wykonano mury pierwszej kondygnacji oraz strop Teriva.
Media: prąd i woda - w drodze do podłączenia (w odległości ok. 90 m).
Przewidziano instalację przydomowej ekologicznej oczyszczalni ścieków.
W sąsiedztwie znajduje się osiedle nowych domów jednorodzinnych.
Lokalizacja ta charakteryzuje się spokojną okolicą przy jednoczesnym szybkim dojazdem do centrum miasta i dostępem do obwodnicy Ostrowa Wlkp.
Zapraszamy do umawiania się na prezentację!
Działka o pow. 1200 m2 z rozpoczętą budową budynku mieszkalnego jednorodzinnego z poddaszem użytkowym o powierzchni 234,56 m2 i garażem dwustanowiskowym w bryle.
Bardzo funkcjonalny układ domu zawiera następujące pomieszczenia:
PARTER
- salon z jadalnią - 36,9 m2
- pokój - 20,38 m2
- pokój - 13,22 m2
- aneks kuchenny - 8,41 m2
- łazienka - 6,93 m2
- pralnia - 4,56 m2
- hall - 11,72 m2
- garaż - 31,63 m2
- pokój - 24,36 m2 z garderobą 6,69 m3 (pow. podł. 45,21 m2)
- pokój - 24,36 m2 z garderobą 11,73 m2 (pow. podł. 57,12 m2)
- garderoba - 4,87 m2 (pow. podł. 15,79 m2)
- łazienka - 13,52 m2 (pow. podł. 24,58 m2)
- hall - 9 m2
Budowa została rozpoczęta w 2000 roku i wykonano mury pierwszej kondygnacji oraz strop Teriva.
Media: prąd i woda - w drodze do podłączenia (w odległości ok. 90 m).
Przewidziano instalację przydomowej ekologicznej oczyszczalni ścieków.
W sąsiedztwie znajduje się osiedle nowych domów jednorodzinnych.
Lokalizacja ta charakteryzuje się spokojną okolicą przy jednoczesnym szybkim dojazdem do centrum miasta i dostępem do obwodnicy Ostrowa Wlkp.
Zapraszamy do umawiania się na prezentację!
Nota prawna
Opis oferty zawarty na stronie internetowej sporządzany jest na podstawie oględzin nieruchomości oraz informacji uzyskanych od właściciela, może podlegać aktualizacji i nie stanowi oferty określonej w art. 66 i następnych K.C.
Kalkulator kredytowy
Formularz kontaktowy