Mieszkanie na sprzedaż














Szczegóły ogłoszenia
- Symbol oferty KWD-MS-582
- Typ oferty mieszkanie na sprzedaż
- Cena 282 947 zł
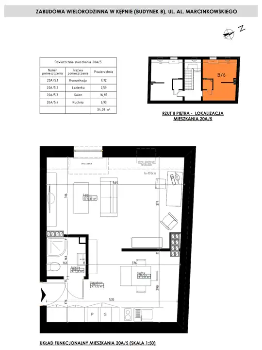
- Charakterystyka mieszkania 34.09 m2, 1 pokój
- Budynek budynek wielorodzinny; rok budowy: 2023
- Rozkład mieszkania parter piętro
- Media Ogrzewanie: C.O. GAZOWE; Woda: jest; Gaz: jest
- Dojazd ASFALTOWA
- Instalacje ELEKTRYCZNA, WODNA, GAZOWA
- Okna PCV
- Otoczenie centrum miasta
- Stan lokalu deweloperski
- Technologia budowlana beton, cegła
Lokalizacja
- Adres wielkopolskie, Ostrzeszów
Opis nieruchomości
Nowoczesne mieszkania w centrum KĘPNA !
KWADRAT prezentuje na sprzedaż nowoczesne mieszkania w nowo powstałej inwestycji w Kępnie przy Alejach Marcinkowskiego, w samym centrum miasta.
W inwestycji składającej się z dwóch budynków wielorodzinnych znajduje się łącznie 17 lokali mieszkalnych. Znajdziemy tu zarówno przestronne lokale do zamieszkania, jak i świetne kompaktowe mieszkania pod inwestycję. Powierzchnia mieszkań mieści się w przedziale od 27m2 do 49 m2. Mieszkania zostały oddane do użytkowania.
Deweloper zastosował nowoczesne technologie oraz materiały najwyższej jakości. Ogrzewanie gazowe. W mieszkaniach zamontowane są okna trzyszybowe wraz z roletami co znacznie obniża koszty ogrzewania. Dodatkowo dostępna jest instalacja internetowa oraz system domofonowy.
Prezentowany lokal położony jest na II piętrze. Powierzchnia całkowita wynosi 34,09 m². Mieszkanie posiada duży ustawny salon, oddzielną kuchnię, korytarz oraz łazienkę.
Nieruchomość położona jest w samym centrum Kępna. W pobliżu znajdują się m. in. takie obiekty jak żłobek, przedszkole, szkoła, sklepy, apteka, kino, plac zabaw, boisko i basen.
Ze względu na położenie jest to idealna propozycja dla miłośników miejskiego stylu życia i osób, które chcą zainwestować na rynku nieruchomości.
Dodatkowo oferujemy: BEZPŁATNĄ POMOC W UZYSKANIU KREDYTU!!!
Nie pobieramy prowizji od kupujących !!!
Zapraszamy na prezentację mieszkań tel: 730 908 806
Więcej szczegółów w biurze spółki: KWADRAT Sp. J. ul. Rynek 33; 63-600 Kępno
Nota prawna: Opis oferty zawarty na stronie internetowej sporządzany jest na podstawie oględzin nieruchomości oraz informacji uzyskanych od właściciela, może podlegać aktualizacji i nie stanowi oferty określonej w art. 66 i następnych K.C.