Mieszkanie na sprzedaż
531 020 zł
65 m2









1 / 9
Szczegóły ogłoszenia
- Symbol oferty BESP-MS-13411
- Typ oferty mieszkanie na sprzedaż
- Cena 531 020 zł
- Charakterystyka mieszkania 64.84 m2, 2 pokoje, idealne
- Budynek apartamentowiec; rok budowy: 2022
- Rozkład mieszkania 2p piętro
- Media Ogrzewanie: podłogowe; Woda: ciepła - miejska; Gaz: brak
- Balkon jest
- Czynsz Czynsz letni: 1306.74 zł
- Ilość sypialni 1
- Instalacje nowe
- Okna PCV
- Stan lokalu idealny
- Winda Tak
Lokalizacja
- Adres łódzkie, Pabianice
Opis nieruchomości
Nowe mieszkanie w apartamentowcu na Bugaju, kupujący nie płaci PCC 2%
Kupujący nie płaci wynagrodzenia, prowizję płaci sprzedający
Bestate Nieruchomości Pabianice oferuje do sprzedaży nowe mieszkanie o powierzchni całkowitej 68,84 m.kw ( w tym dwa balkony) w apartamentowcu na osiedlu Bugaj. Mieszkanie usytuowane jest na 2 piętrze. Budynek z windą, balustradami zapewniającymi optymalne nasłonecznienie mieszkań, nowoczesny wygląd. Mieszkanie składa się z salonu z aneksem kuchennym, sypialni, łazienki z wc oraz przedpokoju. Na podłodze płytki, ściany wykończone gładzią oraz tynkiem ozdobnym i cegłą. W całym mieszkaniu sufity podwieszane z dużą ilością punktów świetlnych. Kuchnia wyposażona w sprzęt agd (zmywarka, lodówka, okap, płyta indukcyjna, piekarnik). Łazienka wykończona glazurą i terakotą wyposażona w kabinę prysznicową, umywalkę oraz wc, podejścia przygotowane pod pralkę. Ogrzewanie miejskie, podłogowe. Okna pcv z ekspozycją na wschód oraz południe z balkonem.
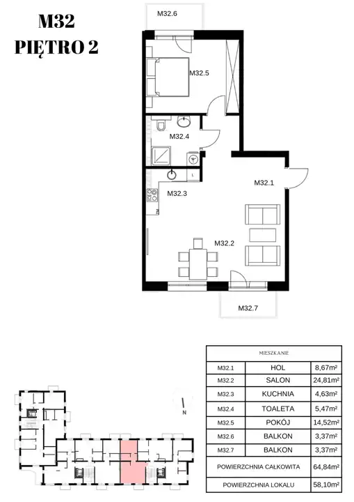
Powierzchnia:
- hol 8,67 m.kw
- salon 24,81 m.kw
- kuchnia 4,63 m.kw
- toaleta 5,47 m.kw
- pokój 14,52 m.kw
- balkon 3,37 m.kw
- balkon 3,37 m.kw
Czynsz: 1 304,74 zł (administracja, wywóz nieczystości, zaliczka na wodę, zaliczka na ogrzewanie)
Stan prawny nieruchomości: własnościowe z księgą wieczystą
Garaż: brak, miejsce postojowe przed blokiem
Posiadamy w sprzedaży mieszkania o powierzchniach od 38 m.kw do 73 m.kw.
Cena 531 020 zł
Dodatkowo płatne: prąd
Zapewniamy kompleksową obsługę, najlepsze kredyty hipoteczne, bezpieczną transakcję. Jesteśmy z Tobą na każdym etapie zakupu, od prezentacji do przekazania kluczy.
Stan prawny uregulowany, dokumenty dotyczące w/w oferty do wglądu.
Kupujący nie płaci wynagrodzenia, prowizję płaci sprzedający
Bestate Nieruchomości Pabianice oferuje do sprzedaży nowe mieszkanie o powierzchni całkowitej 68,84 m.kw ( w tym dwa balkony) w apartamentowcu na osiedlu Bugaj. Mieszkanie usytuowane jest na 2 piętrze. Budynek z windą, balustradami zapewniającymi optymalne nasłonecznienie mieszkań, nowoczesny wygląd. Mieszkanie składa się z salonu z aneksem kuchennym, sypialni, łazienki z wc oraz przedpokoju. Na podłodze płytki, ściany wykończone gładzią oraz tynkiem ozdobnym i cegłą. W całym mieszkaniu sufity podwieszane z dużą ilością punktów świetlnych. Kuchnia wyposażona w sprzęt agd (zmywarka, lodówka, okap, płyta indukcyjna, piekarnik). Łazienka wykończona glazurą i terakotą wyposażona w kabinę prysznicową, umywalkę oraz wc, podejścia przygotowane pod pralkę. Ogrzewanie miejskie, podłogowe. Okna pcv z ekspozycją na wschód oraz południe z balkonem.
Powierzchnia:
- hol 8,67 m.kw
- salon 24,81 m.kw
- kuchnia 4,63 m.kw
- toaleta 5,47 m.kw
- pokój 14,52 m.kw
- balkon 3,37 m.kw
- balkon 3,37 m.kw
Czynsz: 1 304,74 zł (administracja, wywóz nieczystości, zaliczka na wodę, zaliczka na ogrzewanie)
Stan prawny nieruchomości: własnościowe z księgą wieczystą
Garaż: brak, miejsce postojowe przed blokiem
Posiadamy w sprzedaży mieszkania o powierzchniach od 38 m.kw do 73 m.kw.
Cena 531 020 zł
Dodatkowo płatne: prąd
Zapewniamy kompleksową obsługę, najlepsze kredyty hipoteczne, bezpieczną transakcję. Jesteśmy z Tobą na każdym etapie zakupu, od prezentacji do przekazania kluczy.
Stan prawny uregulowany, dokumenty dotyczące w/w oferty do wglądu.
Nota prawna
Opis oferty zawarty na stronie internetowej sporządzany jest na podstawie oględzin nieruchomości oraz informacji uzyskanych od właściciela, może podlegać aktualizacji i nie stanowi oferty określonej w art. 66 i następnych K.C.
Kalkulator kredytowy
Formularz kontaktowy