Lokal na wynajem











Szczegóły ogłoszenia
- Symbol oferty FRP-LW-198974
- Typ oferty lokal na wynajem
- Czynsz wynajmu 4 800 zł / miesiąc
- Charakterystyka mieszkania 64.46 m2
- Budynek biurowo-usługowy
- Rozkład mieszkania parter piętro
- Media Ogrzewanie: C.O. lokalne
- Dojazd asfalt
- Instalacje dobre
- Okna PCV
- Stan lokalu deweloperski
Lokalizacja
- Adres wielkopolskie, Piła, Podlasie
Opis nieruchomości
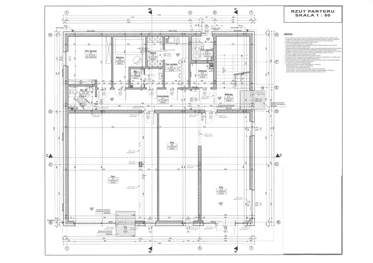
Na wynajem lokale użytkowe zlokalizowane na parterze nowego budynku przy ul. Bydgoskiej 182 w Pile.
Łączna powierzchnia oferowana do wynajęcia wynosi ok. 199 m². Do wynajęcia różne powierzchnie
Nieruchomość znajduje się w stanie deweloperskim, co daje możliwość aranżacji przestrzeni zgodnie z indywidualnymi potrzebami Najemcy. Budynek wyposażony jest w monitoring, internet światłowodowy oraz parking dla Najemców i Klientów.
Powierzchnia parteru została podzielona na dwa niezależne lokale handlowe, każdy z rozbudowanym zapleczem socjalno-biurowym. Do dyspozycji są dwie osobne łazienki oraz szatnia.
Lokale usytuowane od strony ulicy mogą zostać połączone w jedną, większą przestrzeń, co pozwala na elastyczne dopasowanie do profilu działalności. Wejście do lokali możliwe jest bezpośrednio od strony frontu budynku, a także z korytarza i klatki schodowej.
Charakterystyka obiektu:- budynek położony przy ulicy Bydgoskiej (duży ruch)
- parking przed budynkiem dla Najemców oraz Klientów
- możliwość powieszenia reklamowych pylonów
- obiekt monitorowany całodobowo
- powierzchnie typu open space
- duże przeszklenia - nowoczesny wygląd
- wentylacja, teleinformatyka, wysoki standard
- możliwość dostosowania lokalu na potrzeby najemcy