Lokal na wynajem
70 zł
199 m2







1 / 7
Szczegóły ogłoszenia
- Symbol oferty BNEA-LW-428
- Typ oferty lokal na wynajem
- Czynsz wynajmu 70 zł / miesiąc
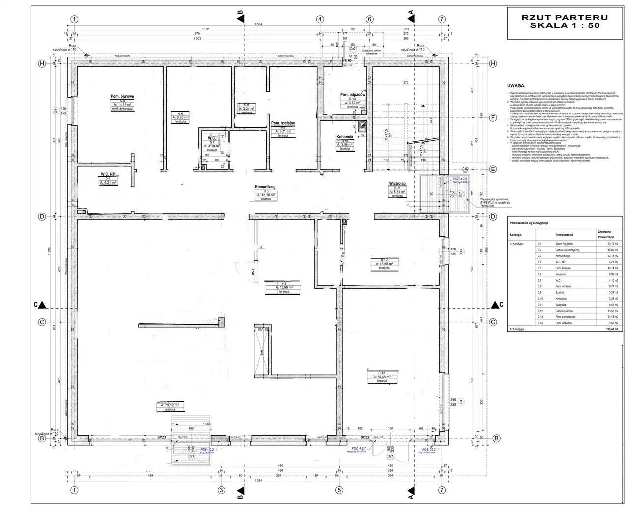
- Charakterystyka mieszkania 199 m2, 6 pokoi
- Budynek wolnostojący; rok budowy: 2023
- Rozkład mieszkania parter piętro
- Media Ogrzewanie: C.O. GAZOWE; Woda: piec gazowy dwufunkcyjny; Gaz: jest
- Dojazd asfaltowa/kostka
- Instalacje nowe
- Kaucja do uzgodnienia
- Okna PCV
- Otoczenie zabudowa jednorodzinna
- Stan lokalu do adaptacji
Lokalizacja
- Adres wielkopolskie, pilski, Piła
Opis nieruchomości
Na wynajem lokale użytkowe na parterze
nowego budynku w Pile na ul. Bydgoskiej 182.
Łączna powierzchnia do wynajęcia 199 m2.
Nieruchomość w stanie deweloperskim.
Monitoring. Internet światłowodowy. Parking.
Stan wykończenia pozwala na adaptację powierzchni pod indywidualne potrzeby przyszłego Najemcy.
Powierzchnia na parterze jest podzielona na dwa osobne lokale handlowe ze sporym zapleczem socjalno - biurowym. Dwie niezależne łazienki. Szatnia.
Lokale znajdujące się od strony ulicy mogą zostać połączone w jedną przestrzeń dla Najemcy. Wejście bezpośrednio do pomieszczeń od strony frontu budynku oraz z korytarza i klatki schodowej.
Wynajmujący dopuszcza możliwość rozliczenia części lub całości nakładów w rozliczeniu czynszu najmu.
Możliwość wynajęcia w całości pomieszczeń na parterze i pierwszym piętrze.
Rozliczenie najemców wg wynajmowanej powierzchni, stawka: 70 zł /m2+ VAT - do negocjacji w Wynajmującym. Do rozliczenia energia elektryczna wg wskazań liczników.
Zapraszam do kontaktu i na prezentację!
nowego budynku w Pile na ul. Bydgoskiej 182.
Łączna powierzchnia do wynajęcia 199 m2.
Nieruchomość w stanie deweloperskim.
Monitoring. Internet światłowodowy. Parking.
Stan wykończenia pozwala na adaptację powierzchni pod indywidualne potrzeby przyszłego Najemcy.
Powierzchnia na parterze jest podzielona na dwa osobne lokale handlowe ze sporym zapleczem socjalno - biurowym. Dwie niezależne łazienki. Szatnia.
Lokale znajdujące się od strony ulicy mogą zostać połączone w jedną przestrzeń dla Najemcy. Wejście bezpośrednio do pomieszczeń od strony frontu budynku oraz z korytarza i klatki schodowej.
Wynajmujący dopuszcza możliwość rozliczenia części lub całości nakładów w rozliczeniu czynszu najmu.
Możliwość wynajęcia w całości pomieszczeń na parterze i pierwszym piętrze.
Rozliczenie najemców wg wynajmowanej powierzchni, stawka: 70 zł /m2+ VAT - do negocjacji w Wynajmującym. Do rozliczenia energia elektryczna wg wskazań liczników.
- Lokalizacja przy ruchliwej ulicy.
- Pylon reklamowy przed budynkiem.
- Duże witryny okienne.
- Parking pod budynkiem i w pasie bezpośrednio przylegającym do granicy działki.
- Przystanek MZK w odległości 50 m.
Zapraszam do kontaktu i na prezentację!
Nota prawna
Opis oferty zawarty na stronie internetowej sporządzany jest na podstawie oględzin nieruchomości oraz informacji uzyskanych od właściciela, może podlegać aktualizacji i nie stanowi oferty określonej w art. 66 i następnych K.C.
Formularz kontaktowy