Mieszkanie na sprzedaż







Szczegóły ogłoszenia
- Symbol oferty GRU-MS-7571
- Typ oferty mieszkanie na sprzedaż
- Cena 309 972 zł
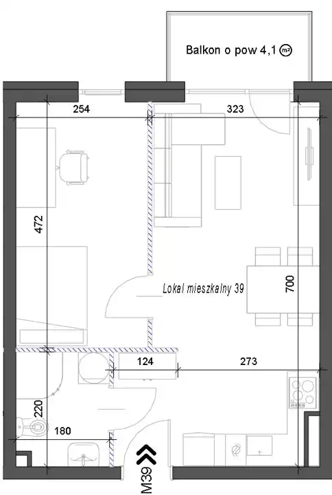
- Charakterystyka mieszkania 39.74 m2, 2 pokoje
- Budynek blok; rok budowy: 2024
- Rozkład mieszkania 1p piętro
- Dojazd asfalt
- Okna PCV 3 szyby, ciepły montaż
- Otoczenie las
- Stan lokalu deweloperski
- Winda Tak
Lokalizacja
- Adres wielkopolskie, Piła
Opis nieruchomości
NOWA INWESTYCJA DEWELOPERSKA
OSIEDLE GÓRNE - PIŁA
Mieszkanie 2 pokojowe z balkonem
Powierzchnia 39,74 m2
KUPUJĄCY NIE PŁACI PROWIZJI!
Blok usytuowany na wzniesieniu oferuje piękne widoki na miasto oraz unikalną atmosferę ze względu na swoją lokalizacje. Każde mieszkanie zostało zaprojektowane z dbałością o funkcjonalność oraz estetykę, wykorzystując wysokiej jakości materiały budowalne i nowoczesne rozwiązania architektoniczne.
Mieszkanie znajduje się w budynku trzy piętrowym. Lokal cechuje się dużymi oknami, które zapewniają dostęp do naturalnego światła, a mieszkania o wysokości 3-3,10m dają poczucie przestrzeni.
Dodatkowo jest możliwość dokupienia miejsca parkingowego oraz komórki lokatorskiej.
Mieszkanie jest idealne zarówno dla osób poszukujących wygodnego miejsca do życia, jak i jako inwestycje.
W ofercie mamy również inne mieszkania, apartamenty oraz lokale usługowe w stanie deweloperskim w tej inwestycji.
Oferujemy bezpłatną pomoc w uzyskaniu kredytu
Skontaktuj się z nami, aby dowiedzieć się więcej!
Termin oddania - pierwsza połowa 2025 roku