Mieszkanie na sprzedaż







Szczegóły ogłoszenia
- Symbol oferty BORK-MS-18
- Typ oferty mieszkanie na sprzedaż
- Cena 499 328 zł
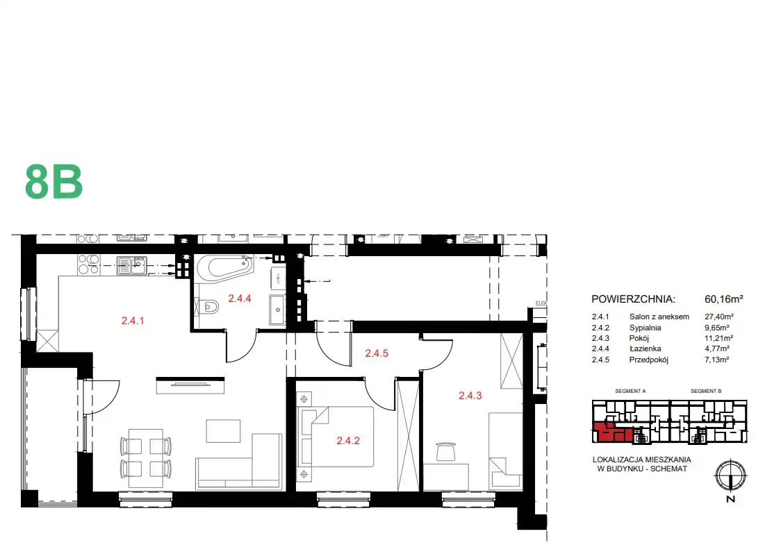
- Charakterystyka mieszkania 60.16 m2, 3 pokoje
- Budynek blok; rok budowy: 2025
- Rozkład mieszkania 1p piętro
- Media Ogrzewanie: C.O. miejskie; Woda: ciepła - miejska; Gaz: brak
- Balkon jest
- Dojazd asfalt
- Ilość sypialni 1
- Instalacje nowe
- Okna PCV
- Otoczenie działki zabudowane
- Stan lokalu deweloperski
- Umeblowanie brak
- Winda Tak
Lokalizacja
- Adres wielkopolskie, Piła, Górne
Opis nieruchomości
Nowoczesne mieszkanie 3-pokojowe na sprzedaż – Osiedle Górne, Piła
Termin realizacji: czerwiec 2025 r.
BEZPŁATNA POMOC W UZYSKANIU KREDYTU PRZY WSPÓŁPRACY Z PONAD DWUDZIESTOMA BANKAMI
W JEDNYM MIEJSCU WIELE OFERT
WYBIERZESZ NAJLEPSZĄ OFERTĘ DLA SIEBIE
Na sprzedaż komfortowe mieszkanie 3-pokojowe w nowej inwestycji deweloperskiej zlokalizowanej na Osiedlu Górnym w Pile. To doskonała propozycja dla osób poszukujących nowoczesnego, funkcjonalnego wnętrza w spokojnej i dobrze skomunikowanej okolicy.
Układ pomieszczeń:
-
Przestronny salon z aneksem kuchennym o pow. 27,4 m²
-
Pokój dzienny o pow. 11,21 m²
-
Sypialnia o pow. 9,65 m²
-
Łazienka o pow. 4,77 m²
-
Korytarz o pow. 7,13 m²
W ofercie dostępne są również inne mieszkania 3- i 4-pokojowe, dostosowane do różnych potrzeb przyszłych mieszkańców.
Atuty mieszkań deweloperskich:
✔ Nowoczesne budownictwo zapewniające wysoką jakość wykonania
✔ Funkcjonalne i przestronne układy pomieszczeń
✔ Możliwość własnej aranżacji wnętrza
✔ Cicha i spokojna okolica z dobrą infrastrukturą
Dodatkowe korzyści dla kupujących:
✅ Gwarancja ceny dewelopera
✅ Kupujący nie płaci prowizji
✅ Pomoc w uzyskaniu kredytu
Zainteresowanych zapraszam do kontaktu w celu uzyskania szczegółowych informacji oraz rezerwacji mieszkań!