Obiekt na wynajem
34 zł
580 m2


1 / 2
Szczegóły ogłoszenia
- Symbol oferty ATR-BW-2702
- Typ oferty obiekt na wynajem
- Czynsz wynajmu 34 zł / miesiąc
- Charakterystyka mieszkania 580 m2
- Kaucja do uzgodnienia
Lokalizacja
- Adres łódzkie, Piotrków Trybunalski
Opis nieruchomości
DO WYNAJMU OBIEKT(580 m2) W CENTRUM MIASTA PIOTRKOWA TRYBUNALSKIEGO(Śródmieście).Idealnie nadaje się na działalność hotelarską ,biurową ,usługi .
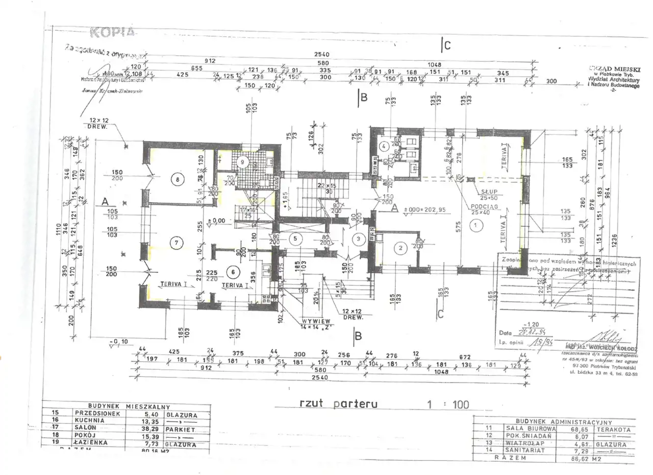
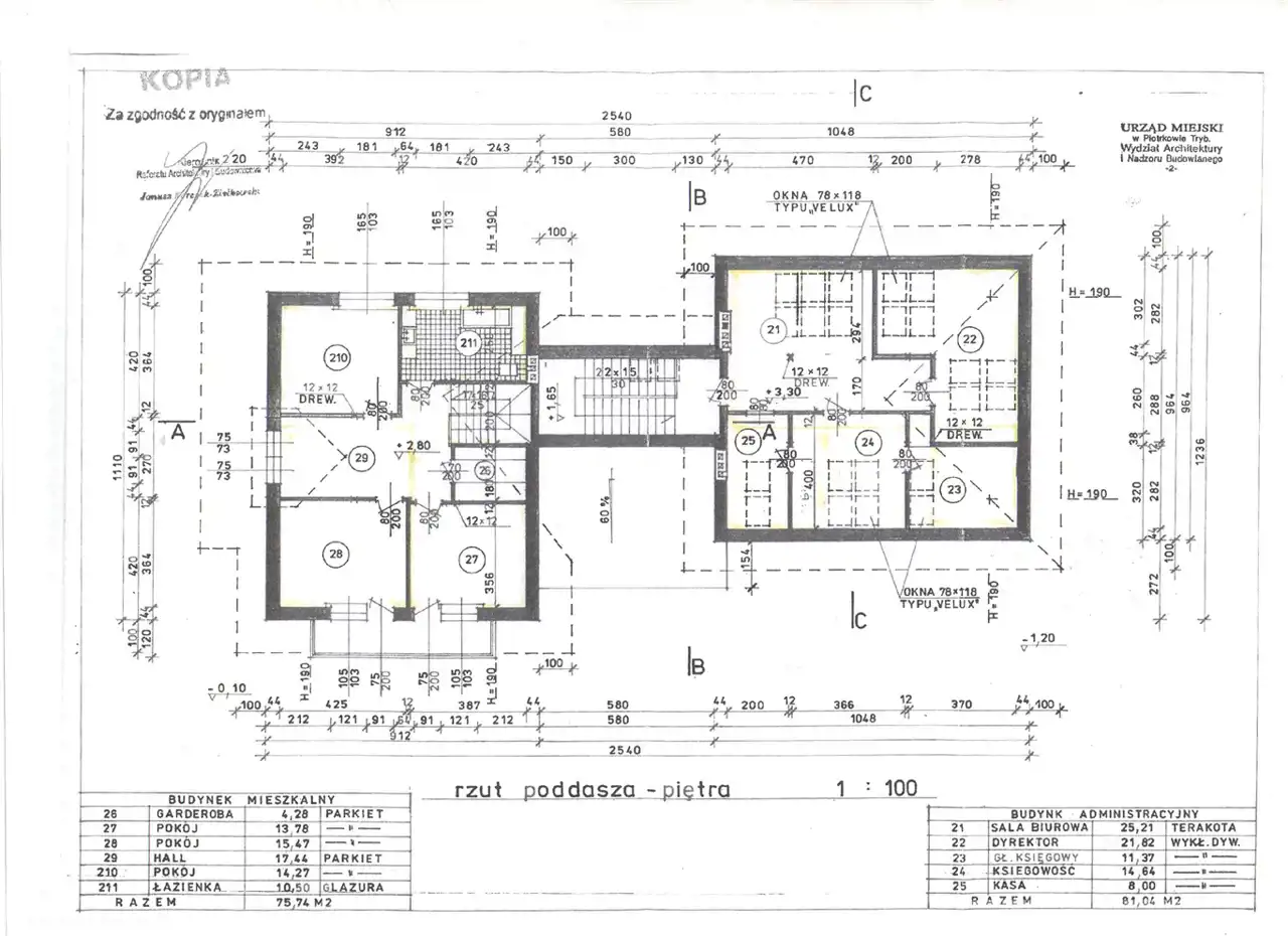
Cała nieruchomość składa się z :
Budynek murowany I biurowy --ok.350 m2(parter +poddasze użytkowe )podpiwniczony .
Pokoje biurowe +łazienki+2 garaże.
Budynek murowany II biurowy - ok.150 m2 (parter pomieszczenie socjalno-biurowe i 3 garaże,piętro 4 pokoje )
Budynek murowany III biurowo-socjalny -ok.80 m2 (parterowy 3 pomieszczenia).
Plac parkingowy przy budynkach.Cała działka ok.1900 m2.
Cała nieruchomość stan b.dobry.Nie wymaga remontów.
Opłata miesięczna czynszu w wysokości netto:20 tys.zł plus media .Ogrzewanie centralne z wykorzystaniem energii słonecznej.
W załączeniu rzut budynku głównego.
Dostępność obiektu do uzgodnienia.Informacje szczegółowe biuro Atrium RN Piotrków Trybunalski ul.Młynarska 2
tel.44 645 15 06 /605 828 633
Dostępność oferty wymaga potwierdzenia.
Cała nieruchomość składa się z :
Budynek murowany I biurowy --ok.350 m2(parter +poddasze użytkowe )podpiwniczony .
Pokoje biurowe +łazienki+2 garaże.
Budynek murowany II biurowy - ok.150 m2 (parter pomieszczenie socjalno-biurowe i 3 garaże,piętro 4 pokoje )
Budynek murowany III biurowo-socjalny -ok.80 m2 (parterowy 3 pomieszczenia).
Plac parkingowy przy budynkach.Cała działka ok.1900 m2.
Cała nieruchomość stan b.dobry.Nie wymaga remontów.
Opłata miesięczna czynszu w wysokości netto:20 tys.zł plus media .Ogrzewanie centralne z wykorzystaniem energii słonecznej.
W załączeniu rzut budynku głównego.
Dostępność obiektu do uzgodnienia.Informacje szczegółowe biuro Atrium RN Piotrków Trybunalski ul.Młynarska 2
tel.44 645 15 06 /605 828 633
Dostępność oferty wymaga potwierdzenia.
Nota prawna
Opis oferty zawarty na stronie internetowej sporządzany jest na podstawie oględzin nieruchomości oraz informacji uzyskanych od właściciela, może podlegać aktualizacji i nie stanowi oferty określonej w art. 66 i następnych K.C.
Formularz kontaktowy