Lokal na wynajem
5 000 zł
140 m2






1 / 6
Szczegóły ogłoszenia
- Symbol oferty MERC-LW-5041
- Typ oferty lokal na wynajem
- Czynsz wynajmu 5 000 zł / miesiąc
- Charakterystyka mieszkania 140 m2, 6 pokoi
- Budynek biurowo-usługowy
- Rozkład mieszkania 2p piętro
- Media Ogrzewanie: centralne; Woda: ciepła - miejska; Gaz: brak
- Czynsz Czynsz letni: 2500 zł
- Dojazd ASFALTOWA
- Instalacje INTERNETOWA
- Kaucja do uzgodnienia
- Okna PCV
- Otoczenie centrum miasta
- Stan lokalu dobry
Lokalizacja
- Adres mazowieckie, Płock
Opis nieruchomości
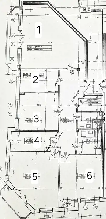
BIURO NIERUCHOMOŚCI Mercado przedstawia Państwu lokal biurowo-usługowy na wynajem, idealnie przystosowany pod prowadzenie działalności typu: biuro rachunkowe, agencja reklamowa, ubezpieczeniowa, biuro architektoniczne, kancelaria.
Łączna powierzchnia 140m2, na którą składa się 6 oddzielnych sal oraz części wspólne: kuchnia, łazienka, pom. gospodarcze, korytarz.
Z metrażu 140m2 istnieje możliwość wydzielenia mniejszych powierzchni np. 90m2 + 50m2 dla odrębnych Najemców.
Pomieszczenia w dobrym stanie technicznym, częściowo umeblowane, dwa największe lokale posiadają własne balkony.
LOKALIZACJA
Lokal mieści się w Centrum miasta, przy bardzo ruchliwej ulicy, na 2 piętrze w budynku z licznymi firmami z różnych branż. W bezpośrednim sąsiedztwie znajduje się wiele sklepów i punktów usługowych. Bezproblemowy i dogodny dojazd, miejsca parkingowe przed budynkiem.
Cena najmu bardzo atrakcyjna przy tak dużym metrażu: 2500 zł czynsz + 2500 opłaty stałe eksploatacyjne
Rozliczenie - rachunek uproszczony
KONTAKT DO AGENTA
W razie dodatkowych pytań zapraszam do kontaktu pod nr tel. 730 022 344
Łączna powierzchnia 140m2, na którą składa się 6 oddzielnych sal oraz części wspólne: kuchnia, łazienka, pom. gospodarcze, korytarz.
Z metrażu 140m2 istnieje możliwość wydzielenia mniejszych powierzchni np. 90m2 + 50m2 dla odrębnych Najemców.
Pomieszczenia w dobrym stanie technicznym, częściowo umeblowane, dwa największe lokale posiadają własne balkony.
LOKALIZACJA
Lokal mieści się w Centrum miasta, przy bardzo ruchliwej ulicy, na 2 piętrze w budynku z licznymi firmami z różnych branż. W bezpośrednim sąsiedztwie znajduje się wiele sklepów i punktów usługowych. Bezproblemowy i dogodny dojazd, miejsca parkingowe przed budynkiem.
Cena najmu bardzo atrakcyjna przy tak dużym metrażu: 2500 zł czynsz + 2500 opłaty stałe eksploatacyjne
Rozliczenie - rachunek uproszczony
KONTAKT DO AGENTA
W razie dodatkowych pytań zapraszam do kontaktu pod nr tel. 730 022 344
Nota prawna
Opis oferty zawarty na stronie internetowej sporządzany jest na podstawie oględzin nieruchomości oraz informacji uzyskanych od właściciela, może podlegać aktualizacji i nie stanowi oferty określonej w art. 66 i następnych K.C.
Formularz kontaktowy