Obiekt na sprzedaż
3 499 000 zł
375 m2




















1 / 20
Szczegóły ogłoszenia
- Symbol oferty YNK-BS-2648
- Typ oferty obiekt na sprzedaż
- Cena 3 499 000 zł
- Charakterystyka mieszkania 375 m2
- Media Ogrzewanie: kominkowe; Woda: tak - miejska; Kanalizacja: miejska; Prąd: jest
- Miejsce parkingowe Tak
- Dojazd płyty betonowe
- Otoczenie tereny rekreacyjne
Lokalizacja
- Adres zachodniopomorskie, Postomino, Jarosławiec
Opis nieruchomości
OFERTA SPRZEDAŻY – OŚRODEK WYPOCZYNKOWY W JAROSŁAWCU
1. Opis nieruchomości
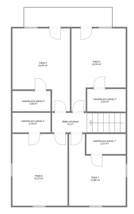
Na sprzedaż oferujemy w pełni funkcjonujący, doskonale oceniany ośrodek wypoczynkowy w nadmorskiej miejscowości Jarosławiec, położony jedynie 1 km od plaży. Kompleks zlokalizowany jest na zadbanej działce o powierzchni 830 m², na której znajdują się:
A. Budynek apartamentowy
Powierzchnia użytkowa: 189,23 m²
W obiekcie znajduje się:
Na działce zlokalizowane są również:
Ośrodek jest sprzedawany z pełnym wyposażeniem, umożliwiającym natychmiastowe kontynuowanie działalności.
Dodatkowe atuty:
3 499 000 zł
(cena obejmuje całość wyposażenia oraz pełną infrastrukturę ośrodka)
Adres: ul. Kempingowa 26, Jarosławiec
Zadzwoń i umów się na prezentację:
Tomek – 535 630 680
Gwarantujemy bezpieczeństwo transakcji – posiadamy stosowne ubezpieczenie.
Ogłoszenie ma charakter informacyjny i nie stanowi oferty w rozumieniu Kodeksu Cywilnego.
1. Opis nieruchomości
Na sprzedaż oferujemy w pełni funkcjonujący, doskonale oceniany ośrodek wypoczynkowy w nadmorskiej miejscowości Jarosławiec, położony jedynie 1 km od plaży. Kompleks zlokalizowany jest na zadbanej działce o powierzchni 830 m², na której znajdują się:
A. Budynek apartamentowy
Powierzchnia użytkowa: 189,23 m²
W obiekcie znajduje się:
- 7 komfortowych apartamentów – każdy z prywatną łazienką oraz częścią kuchenną
- Przestronny wspólny salon z aneksem kuchennym
- Strefa odpoczynku z kominkiem z płaszczem wodnym
- Pomieszczenie gospodarcze
Na działce zlokalizowane są również:
- 4 drewniane domki wypoczynkowe o powierzchni 46m² każdy
w pełni wyposażone, gotowe do wynajmu.
Ośrodek jest sprzedawany z pełnym wyposażeniem, umożliwiającym natychmiastowe kontynuowanie działalności.
Dodatkowe atuty:
- Instalacja solarna
- Panele fotowoltaiczne o mocy 8,4 kW – znacząca redukcja kosztów eksploatacyjnych
- Klimatyzacja
- System alarmowy
- Balia ogólnodostępna – z podgrzewaną wodą i hydromasażem
- 10 miejsc parkingowych dla gości
- Zadbana, funkcjonalnie zaprojektowana przestrzeń rekreacyjna
- Idealna lokalizacja w znanej, cenionej miejscowości nadmorskiej
- W pełni funkcjonujący biznes z możliwością rozpoczęcia działalności od pierwszego dnia
- Nowoczesne instalacje (PV, solary, klimatyzacja) zwiększające rentowność
- Wysoki standard wykończenia apartamentów i domków
- Możliwość generowania dochodu przez cały sezon letni oraz w sezonach dodatkowych
3 499 000 zł
(cena obejmuje całość wyposażenia oraz pełną infrastrukturę ośrodka)
Adres: ul. Kempingowa 26, Jarosławiec
Zadzwoń i umów się na prezentację:
Tomek – 535 630 680
Gwarantujemy bezpieczeństwo transakcji – posiadamy stosowne ubezpieczenie.
Ogłoszenie ma charakter informacyjny i nie stanowi oferty w rozumieniu Kodeksu Cywilnego.
Nota prawna
Opis oferty zawarty na stronie internetowej sporządzany jest na podstawie oględzin nieruchomości oraz informacji uzyskanych od właściciela, może podlegać aktualizacji i nie stanowi oferty określonej w art. 66 i następnych K.C.
Kalkulator kredytowy
Formularz kontaktowy