Lokal na wynajem


















Szczegóły ogłoszenia
- Symbol oferty LLN-LW-502
- Typ oferty lokal na wynajem
- Czynsz wynajmu 20 000 zł / miesiąc
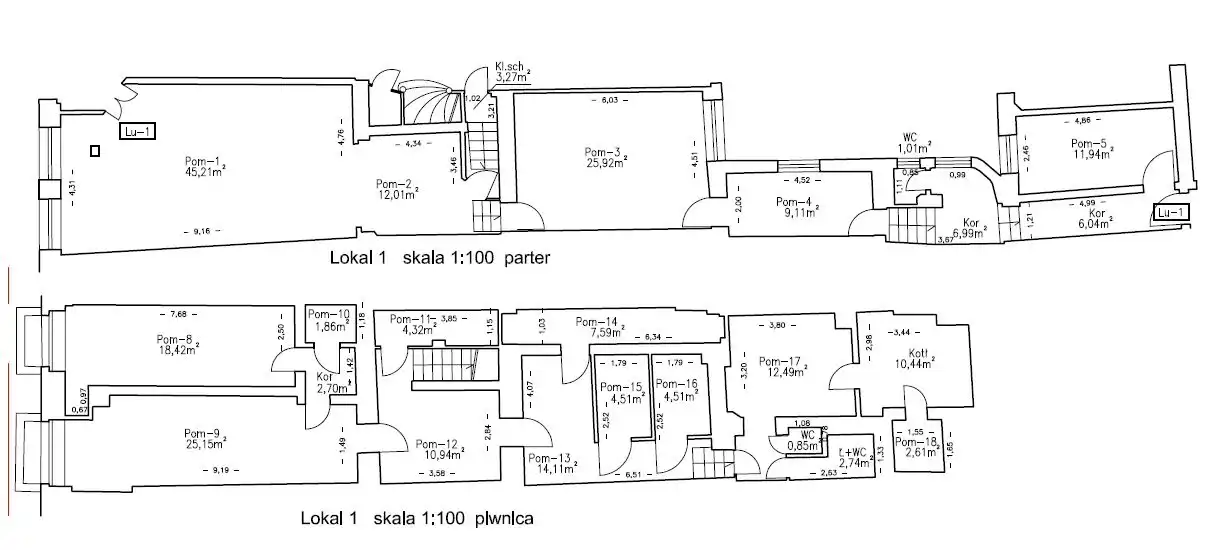
- Charakterystyka mieszkania 244.74 m2, 3 pokoje
- Rozkład mieszkania parter piętro
- Media Woda: jest; Gaz: jest
Lokalizacja
- Adres wielkopolskie, Poznań, Stary Rynek
Opis nieruchomości
Lokal użytkowy na wynajem – Stary Rynek 75
Do wynajęcia przestronny lokal użytkowy o powierzchni 244,74 m², zlokalizowany w zabytkowej kamienicy na płycie Starego Rynku. Budynek mieści się w zachodniej pierzei rynku, pomiędzy ulicami Franciszkańską i Paderewskiego, i uchodzi za najlepiej zachowaną kamienicę w tej części miasta. To obiekt o wyjątkowej wartości historycznej — jako jeden z nielicznych przetrwał II wojnę światową w nieuszkodzonym stanie.
Charakterystyka lokalu
-
ekspozycja okien bezpośrednio na płytę Starego Rynku,
-
dostęp do pełnej infrastruktury mediów,
-
funkcjonalny układ obejmujący:
-
salę sprzedaży,
-
zaplecze socjalno-biurowe,
-
toaletę,
-
podpiwniczenie.
-
Atut lokalizacji
Kamienica odznacza się niepowtarzalnym klimatem oraz znaczeniem historycznym. W oferowanym lokalu od 1804 roku działa apteka, co podkreśla ciągłość użytkowania i unikatowy charakter miejsca.
Opłaty:
Miesięczny koszt najmu: 20 000,00 zł netto. Dodatkowo płatne media (prąd, woda, opłata za odpady komunalne) oraz opłaty administracyjne razem ok. 1700zł płatne bezpośrednio do wspólnoty.
Kaucja
Prowizja dla biura
Niniejsza prezentacja oferty nie jest ofertą w rozumieniu Kodeksu Cywilnego i ma charakter wyłącznie informacyjny.
KONTAKT W SPRAWIE OFERTY:
Malwina First
790-326-100