Obiekt na sprzedaż


















Szczegóły ogłoszenia
- Symbol oferty WWD-BS-114
- Typ oferty obiekt na sprzedaż
- Cena 24 900 000 zł
- Charakterystyka mieszkania 9100 m2
- Budynek rok budowy: 1902
Lokalizacja
- Adres śląskie, Pszczyna (gw)
Opis nieruchomości
Zabytkowy Gmach Dyrekcji w sercu Pszczyny
Unikalna okazja inwestycyjna dla deweloperów i inwestorów instytucjonalnych. Obiekt o prestiżowej lokalizacji i ogromnym potencjale adaptacyjnym, sprzedawany wyłącznie w całości.
Lokalizacja:
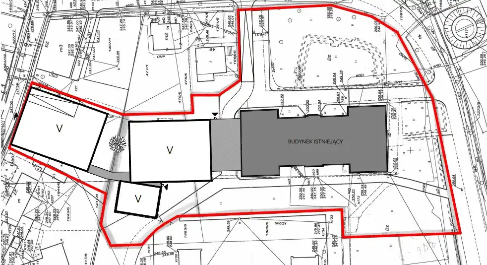
Nieruchomość zlokalizowana jest w ścisłym centrum Pszczyny (woj. śląskie), na pograniczu zabytkowej starówki, na terenie dawnego książęcego folwarku Siedlice. Jest to jedna z ostatnich tak dużych (blisko 1 ha) i prestiżowych parceli inwestycyjnych w tej części miasta, gwarantująca elitarny charakter każdej przyszłej inwestycji.
Opis Nieruchomości:
Inwestycja obejmuje zabytkowy gmach wzniesiony w 1902 r. w stylu neogotyku północnego oraz działki budowlane o łącznej powierzchni 9 042 m². Główny budynek to monumentalna, reprezentacyjna konstrukcja o łącznej powierzchni użytkowej 3 933,8 m² (trzy kondygnacje nadziemne + podpiwniczenie), charakteryzująca się doskonałą konstrukcją (fundamenty kamienne, mury ceglane licowane) oraz bogatą, prestiżową architekturą.
Kluczowe Atuty Inwestycyjne:
-
Ogromny Potencjał Adaptacyjny: Obiekt, po kompleksowym remoncie, można zaadaptować na:
-
Ekskluzywny apartamentowiec / rezydencja (z możliwością podziału na apartamenty o pow. 50-900 m²).
-
Butikowy hotel lub biznesowe centrum konferencyjne.
-
Ekskluzywna klinika medyczna lub dom opieki seniora.
-
Reprezentacyjna siedziba firmy lub ośrodek kulturalny.
-
-
Dodatkowe Tereny pod Zabudowę: W skład oferty wchodzi działka o pow. 1 559 m² z pozwoleniem na budowę nowego budynku mieszkalnego z usługami, co stanowi dodatkową, natychmiastową szansę na generowanie przychodów i zwiększa skalę całej inwestycji.
-
Atrakcyjne Ulgi Podatkowe: Budynek wpisany jest do rejestru zabytków, co otwiera przed inwestorem możliwość skorzystania z potężnych ulg w podatku dochodowym (PIT/CIT) od poniesionych nakładów remontowych.
-
Dodatkowa Przestrzeń: Obiekt posiada trzypoziomowy strych o znacznym potencjale adaptacyjnym, nieuwzględniony w obecnej powierzchni użytkowej, co pozwala na zwiększenie metrażu końcowego.
Stan Techniczny & Wyzwania:
Budynek wymaga gruntownego remontu kapitalnego, w tym wymiany wszystkich instalacji, pokrycia dachowego, remontu elewacji i wnętrz. Konstrukcja nośna (ściany, stropy, więźba dachowa) jest w bardzo dobrym stanie. Prace zabezpieczające są na bieżąco prowadzone.
Podsumowanie Inwestycji:
To niepowtarzalna okazja do nabycia ikonicznego obiektu o historycznym znaczeniu. Łączy w sobie prestiž lokalizacji, monumentalną architekturę, klarowny potencjał deweloperski oraz realne korzyści finansowe wynikające z ulg podatkowych. Jest to projekt na miarę wymagającego inwestora, który docenia wartość unikalnych aktywów i potrafi dostrzec ich długoterminowy potencjał.
Zachęcamy do kontaktu w celu otrzymania szczegółowych dokumentów oraz omówienia indywidualnych scenariuszy inwestycyjnych.