Obiekt na wynajem
















Szczegóły ogłoszenia
- Symbol oferty PNB-BW-13429
- Typ oferty obiekt na wynajem
- Czynsz wynajmu 0 zł / miesiąc
- Charakterystyka mieszkania 1101 m2
- Budynek rok budowy: 1930
- Media Ogrzewanie: C.O. GAZOWE; Woda: ciepła - piecyk; Kanalizacja: miejska; Prąd: jest; Gaz: jest
- Miejsce parkingowe Tak
- Dojazd asfalt
- Otoczenie tereny rekreacyjne
- Plac zabaw Tak
Lokalizacja
- Adres małopolskie, nowotarski, Rabka-Zdrój
Opis nieruchomości
Szanowni Państwo,
Tylko u nas.
Oferta wynajmu budynku dawnego pensjonat LIMBA położony w cichej i zielonej części Rabki Zdrój.
Obiekt zlokalizowany jest w bliskiej odległości od Parku Zdrojowego oraz obiektów rekreacyjno - leczniczych uzdrowiska w niedalekiej odległości od głównych szlaków turystycznych na Maciejową , Stare Wierchy, Turbacz.
Nieopodal znajduje się stadnina koni oraz letni odkryty basen.
Obiekt dysponuje 50 miejsc w pokojach 1, 2, 3, 4 osobowych oraz studia i apartamenty. Wszystkie pokoje wyposażone są w łazienkę.
Budynek pochodzi z lat 30-tych XX wieku znajduje się na działce o powierzchni blisko 21 arów.
Na działce m.in. plac zabaw oraz sporo miejsc parkingowych.
Powierzchnia całkowita budynku to blisko 1100 m2 a powierzchnia użytkowa to blisko 850 m2.
Pokoje oraz pensjonat w roku 2017 przeszły remont i modernizację. We wszystkich pokojach mamy nowe łazienki.
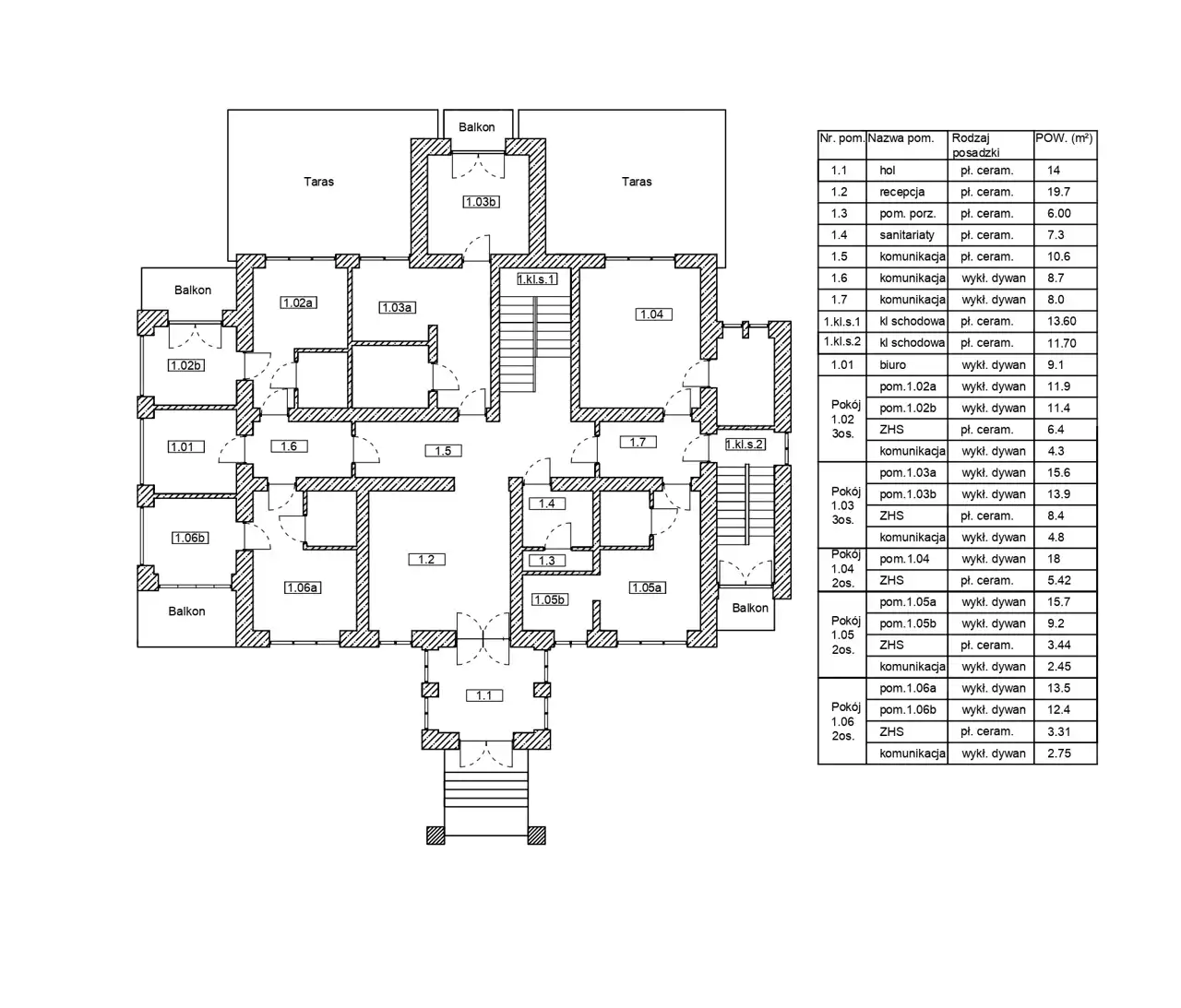
Budynek składa się z 4 kondygnacji oraz powierzchnia całkowitej 1100 m2 ( powierzchnia użytkowa to blisko 850 m2 ):
- Przyziemie 302,97 m2 ( na tej kondygnacji znajduje się kuchnia oraz stołówka )
- Parter 271,57 m2
- Pierwsze Piętro 269,56 m2
- Drugie Piętro 257,76 m2
Budynek posiada 2 klatki schodowe oraz stołówkę, oraz dużą i dobrze wyposażoną kuchnie.
Idealny obiekt pod działalność turystyczną, dom opieki, hotel pracowniczy, klinikę.
W razie pytań zapraszam do kontaktu i oraz na prezentację obiektu.