Mieszkanie na sprzedaż
425 468 zł
67 m2


























1 / 26
Szczegóły ogłoszenia
- Symbol oferty TWM-MS-1029
- Typ oferty mieszkanie na sprzedaż
- Cena 425 468 zł
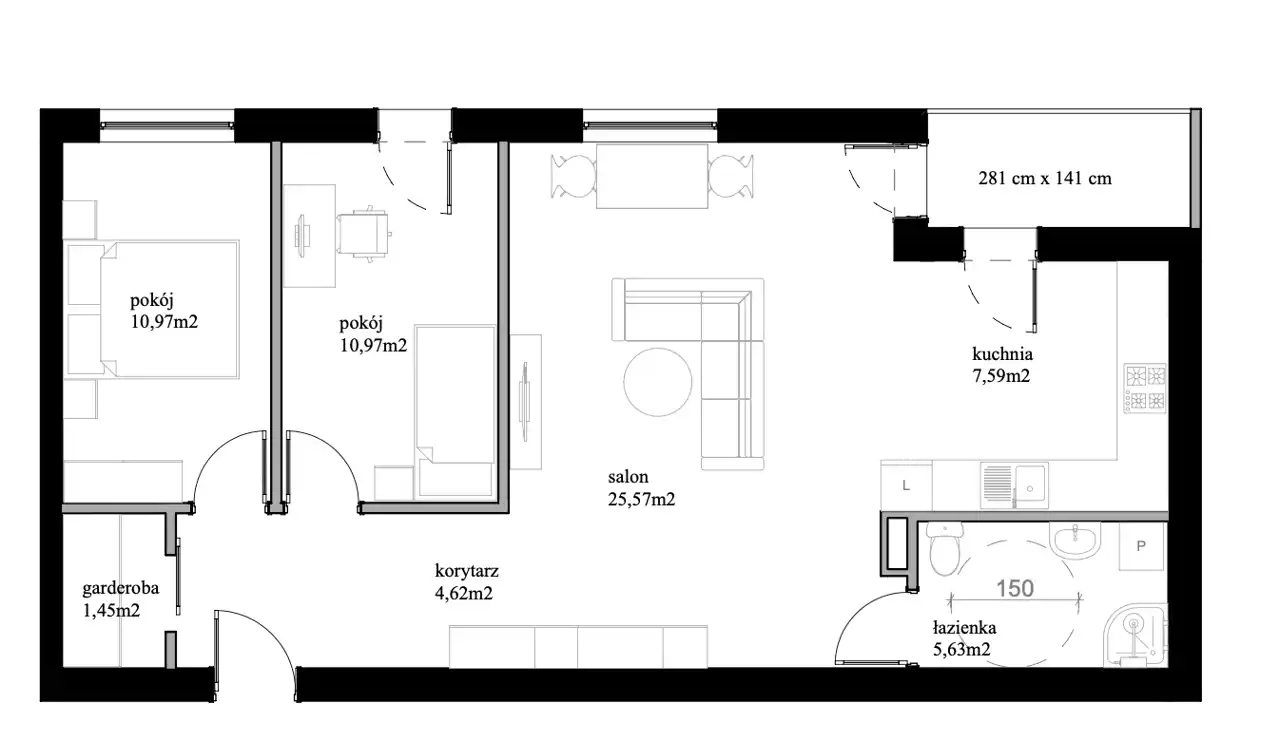
- Charakterystyka mieszkania 66.8 m2, 3 pokoje
- Budynek apartamentowiec; rok budowy: 2023
- Rozkład mieszkania parter piętro
- Media Ogrzewanie: C.O. GAZOWE; Woda: jest; Gaz: jest
- Balkon jest
- Dojazd ASFALTOWA
- Garaż możliwość kupna
- Ilość sypialni 2
- Instalacje nowe
- Okna PCV
- Otoczenie osiedle
- Stan lokalu deweloperski
- Technologia budowlana pustak ceramiczny
- Winda Tak
Lokalizacja
- Adres kujawsko-pomorskie, radziejowski, Radziejów
Opis nieruchomości
Piękne i nowoczesne mieszkanie w Radziejowie! Zamknięte osiedle łączące piękny design z funkcjonalnością.
Krótko:
Twoje Metry Biuro Nieruchomości ma przyjemność zaprezentować innowacyjne mieszkanie na prestiżowym osiedlu zamkniętym, znajdującym się w najlepszej dzielnicy miasta. Jest to apartament w nowoczesnym budynku, który zachwyca swoją funkcjonalnością oraz gwarantuje najwyższe zabezpieczenia ochrony. Lokalizacja: ul. 1 Maja, Radziejów, woj. kujawsko-pomorskie.
Wprowadź się do mieszkania, w którym fantazja spotyka się z funkcjonalnością, tworząc idealną symfonię dla Ciebie i Twoich marzeń.
Opis nieruchomości:
Salon z aneksem kuchennym i wyjściem na balkon, dwie sypialnie, łazienka z WC, garderoba i przedpokój.
Stan deweloperski z wykonaniem instalacji wodno-kanalizacyjnych, elektrycznych w tym napięcie 380V oraz systemu centralnego ogrzewania, wyposażony w drzwi wejściowe, okna 3-szybowe, grzejniki, gniazdka, włączniki, parapety wewnętrzne itp.
Pozostałe dane:
Powierzchnia mieszkania: 66,80 mkw + balkon 3,96 mkw
Cena: 425 468,00 zł
Zakończona budowa - mieszkanie dostępne od ręki!
Informacje dodatkowe:
Atuty mieszkania:
Radziejów, położony w malowniczym województwie kujawsko-pomorskim, to urokliwe miasto, które wita swoich mieszkańców ciepłem i spokojem. Znane z bogatej historii i zabytkowego centrum. Oferuje unikalny klimat, idealny dla tych, którzy pragną łączyć tradycję z nowoczesnością. Zróżnicowana infrastruktura, liczne tereny zielone i przyjazna atmosfera sprawiają, że życie tu staje się przyjemnym doświadczeniem dla wszystkich poszukujących spokoju i warto tu zatrzymać się na stałe.
Województwo kujawsko-pomorskie to fascynujący region, gdzie tradycja splata się z nowoczesnością. Znajdujące się tutaj urokliwe miasta, takie jak Bydgoszcz czy Toruń, zachwycają zarówno zabytkową architekturą, jak i nowoczesnymi inwestycjami. Dla miłośników przyrody oferuje malownicze krajobrazy, liczne jeziora i tereny rekreacyjne, tworząc doskonałe warunki dla aktywnego trybu życia. Kujawsko-pomorskie to miejsce, gdzie każdy znajdzie coś dla siebie, łączącą różnorodność z wysokim standardem życia. Odkryj unikalne piękno tego województwa, które staje się inspiracją do zakochania się w Polskim krajobrazie.
Dlaczego warto inwestować w Radziejowie?
Przykładowe odległości:
plac zabaw 180 m., kościół 350 m., restauracja 500 m., sklep 550 m., fryzjer 550 m., szkoła 600 m., apteka 650 m., bank 650 m., jezioro 900 m.
Odległości do miast:
Kruszwica 18 km., Piotrków Kujawski 9 km., Włocławek 40 km., Konin 55 km., Bydgoszcz 75 km., Łódź 160 km., Gdańsk 217 km., Warszawa 224 km.,
Jak z miejscem parkingowym?
Dostępna jest opcja zakupu miejsc parkingowych oraz garaży, na terenie zamkniętym i monitorowanym.
Kontakt bezpośredni do agenta prowadzącego:
Barbara Jetz-Greger
☎️nr tel. 665 335 138
☎️nr biurowy: 54 426 90 10
Nasi eksperci kredytowi pomagają bezpłatnie w uzyskaniu kredytu hipotecznego na zakup tej nieruchomości. Posiadamy oferty wszystkich banków.
Przed każdą prezentacją niezbędne jest uzyskanie w naszym biurze statusu klienta poszukującego, które odbywa się poprzez zawarcie niezobowiązującej umowy pośrednictwa. Rejestrowane dane osobowe będą wykorzystywane wyłącznie w ramach świadczonych usług. Dane dotyczące nieruchomości zostały podane przez właściciela nieruchomości lub zostały wpisane na podstawie dokumentacji przedstawionej przez właściciela. Jednocześnie nie bierzemy odpowiedzialności za ich prawidłowość, kompletność i aktualność. Pośrednik odpowiedzialny zawodowo za wykonanie umowy pośrednictwa: Barbara Jetz-Greger licencja nr 24539
Krótko:
Twoje Metry Biuro Nieruchomości ma przyjemność zaprezentować innowacyjne mieszkanie na prestiżowym osiedlu zamkniętym, znajdującym się w najlepszej dzielnicy miasta. Jest to apartament w nowoczesnym budynku, który zachwyca swoją funkcjonalnością oraz gwarantuje najwyższe zabezpieczenia ochrony. Lokalizacja: ul. 1 Maja, Radziejów, woj. kujawsko-pomorskie.
Wprowadź się do mieszkania, w którym fantazja spotyka się z funkcjonalnością, tworząc idealną symfonię dla Ciebie i Twoich marzeń.
Opis nieruchomości:
Salon z aneksem kuchennym i wyjściem na balkon, dwie sypialnie, łazienka z WC, garderoba i przedpokój.
Stan deweloperski z wykonaniem instalacji wodno-kanalizacyjnych, elektrycznych w tym napięcie 380V oraz systemu centralnego ogrzewania, wyposażony w drzwi wejściowe, okna 3-szybowe, grzejniki, gniazdka, włączniki, parapety wewnętrzne itp.
Pozostałe dane:
Powierzchnia mieszkania: 66,80 mkw + balkon 3,96 mkw
Cena: 425 468,00 zł
Zakończona budowa - mieszkanie dostępne od ręki!
Informacje dodatkowe:
- Mieszkanie w stanie deweloperskim w jednym z dwóch budynków, które tworzą doskonały kompleks mieszkaniowy w samym sercu Kujaw.
- Całość stanowią dwa budynki wielorodzinne o pięciu kondygnacjach nadziemnych oraz podziemnej (hali garażowej). W każdym z budynków znalazły się mieszkania o zróżnicowanej powierzchni od 35 mkw do 67 mkw.
- Każdy budynek składa się z dwóch osobnych klatek schodowych wyposażonych w cichobieżne windy.
- Całość nieruchomości zasilana własną kotłownią gazową.
- Teren osiedla w pełni zagospodarowany kostką brukową, nasadzenia typu trawy, drzewka.
- Całość posesji ogrodzona z dwoma bramami wjazdowymi.
- Miejscowość Radziejów gwarantuje nie tylko doskonałą lokalizację pod względem komunikacyjnym z innymi miastami, ale również zapewnia wyciszenie i ukojenie.
- Wysoki standard budownictwa, tworzywa najwyższej jakości oraz tereny rekreacyjne, to wszystko znajduje się w obszarze bezpiecznego osiedla Fantazja, w Radziejowie.
Atuty mieszkania:
- Duży komfort i nieograniczone możliwości: stan deweloperski pozwala na dostosowanie przestrzeni do własnych preferencji i gustów. Nieograniczona możliwość wyboru projektu wnętrz i przeznaczeń danych pomieszczeń otwiera drzwi do stworzenia swojego azylu, który idealnie odzwierciedli duszę właściciela.
- Najwyższe standardy: mieszkanie spełnia najnowsze standardy techniczne i energetyczne. Nowoczesne rozwiązania zastosowane w budownictwie czy możliwość założenia w przyszłości instalacji programowej typu inteligentny dom, jest tutaj potencjałem i inwestycją w przyszłość. Gwarantuje tym samym zwiększenie komfortu życia i sprawia, że koszty eksploatacji staną się świadome i ekonomiczne.
- Gwarancja jakości: Osiedle Fantazja budowane jest zgodnie z panującymi standardami oraz normami budowy, które uwzględniają ergonomiczne rozwiązania przy zachowaniu jakości i wytrzymałości budynku. Miejsce to jest gwarancją starannie dobranych rozwiązań i materiałów.
- Bezpieczeństwo i stabilizacja finansowa: inwestowanie w mieszkanie jest najpewniejszym rozwiązaniem dostępnym obecnie na rynku, ponieważ potencjał gospodarowania dodatkową nieruchomością jest nieograniczony. Nowoczesne budownictwo jest również proste w aranżacji oraz z łatwością przystosowuje się do zmian potrzeb w dzisiejszych czasach.
- Łatwość i przejrzystość procesu kupna: przez cały proces rozważania, oglądania i podjęcia decyzji o kupnie, wszystkie potrzebne informacje są na wyciągnięcie ręki, a stały kontakt zapewnia rozwianie najmniejszych wątpliwości. To sprawia, że cały proces jest klarowny i przystępny, a kupujący może liczyć na wsparcie w załatwianiu formalności związanych z zakupem nieruchomości na każdym etapie czy kredytowaniem.
- Młodych par: Nowo wybudowane mieszkanie jest idealnie otwartą furtką do rozpoczęcia wspólnego życia. Zdolność do dostosowania wnętrza do własnych potrzeb, nowoczesne rozwiązania techniczne oraz gwarancja jakości to są jedne z aspektów, dlaczego to mieszkanie jest pod tym względem idealne. Piękne okolice, bliskość do sklepów oraz wiele placów zabaw sprawia, że młode rodziny będą miały wszystko w najbliższej okolicy, co ułatwia i usprawnia codzienne obowiązki.
- Osób poszukujących ciszy i komfortu: Budynek, mały park oraz inne dodatkowe elementy znajdujące się wewnątrz ogrodzonego terenu sprawiają, że poczucie estetyki przeplata się ze spokojem. To gwarancja spacerów w okolicy, aktywnego spędzania czasu czy też leniwie spędzonych niedziel na pikniku czy piciu porannej kawy z widokiem na harmonijną zieleń.
- Opcja dla każdej grupy wiekowej: Nieruchomość ta ze względu na swój potencjał, komfortowe rozwiązania np. windy, dogodną lokalizację będzie idealnym wyborem zarówno dla par i rodzin z dziećmi. Charakter tego zamkniętego osiedla pozwala odetchnąć od przepełnionych metropolii i odnaleźć szczęście w spokoju i bliskości z naturą.
- Dla inwestorów: posiadanie mieszkania w obecnych realiach jest zdecydowanie inwestycją, która dobrze poprowadzona może przynieść nieograniczone możliwości finansowe w przyszłości. Kupno tego mieszkania teraz jest gwarancją pasywnego przychodu w przyszłości.
- Opłacalność: W mniejszych miastach takich jak Radziejów często koszty utrzymania są niższe niż w metropoliach. Nieruchomość dzięki atrakcyjnej cenie i wysokim standardzie wykończenia gwarantuje komfortowe życie i pozwala budować plany na przyszłość.
- Poczucie wspólnoty: Radziejów charakteryzuje się bardzo zżytą społecznością, w której każdy jest mile widziany, a kontakty z mieszkańcami są przyjacielskie i swobodne. Wyjątkowo proste nawiązywanie relacji z sąsiadami i uczestnictwo w lokalnych wydarzeniach, pozytywnie wpływa na poziom życia i poczucie przynależności.
- Bezkonkurencyjna lokalizacja: Jest to idealne miejsce dla osób chcących mieszkać w spokojnym i cichym miejscu, które jednocześnie posiada wszystkie punkty pierwszej potrzeby. W pobliżu znajdują się obiekty użyteczności publicznej, tj.: szkoła podstawowa, przedszkole, przychodnie lekarskie, sklepy i lokale usługowe. Okoliczna cisza i nieśpieszny rytm miasteczka, dodaje harmonii w ciągu dnia, dzięki której życie staje się bardziej satysfakcjonujące.
- Niezwykła i unikalna okolica: Bliskość natury daje poczucie spokoju i wyciszenia, a także energię do rozwijania domowego ogniska, podążając za swoimi marzeniami. Odległość do centrum miasta to niecałe 350 m, a z kolei do jeziora około 900 m.
Radziejów, położony w malowniczym województwie kujawsko-pomorskim, to urokliwe miasto, które wita swoich mieszkańców ciepłem i spokojem. Znane z bogatej historii i zabytkowego centrum. Oferuje unikalny klimat, idealny dla tych, którzy pragną łączyć tradycję z nowoczesnością. Zróżnicowana infrastruktura, liczne tereny zielone i przyjazna atmosfera sprawiają, że życie tu staje się przyjemnym doświadczeniem dla wszystkich poszukujących spokoju i warto tu zatrzymać się na stałe.
Województwo kujawsko-pomorskie to fascynujący region, gdzie tradycja splata się z nowoczesnością. Znajdujące się tutaj urokliwe miasta, takie jak Bydgoszcz czy Toruń, zachwycają zarówno zabytkową architekturą, jak i nowoczesnymi inwestycjami. Dla miłośników przyrody oferuje malownicze krajobrazy, liczne jeziora i tereny rekreacyjne, tworząc doskonałe warunki dla aktywnego trybu życia. Kujawsko-pomorskie to miejsce, gdzie każdy znajdzie coś dla siebie, łączącą różnorodność z wysokim standardem życia. Odkryj unikalne piękno tego województwa, które staje się inspiracją do zakochania się w Polskim krajobrazie.
Dlaczego warto inwestować w Radziejowie?
- Inwestowanie w mieszkanie w Radziejowie to krok w stronę stabilnego wzrostu kapitału, biorąc pod uwagę dynamiczny rozwój tego miasta.
- Znaczące inwestycje infrastrukturalne w Radziejowie sprawiają, że zakup nieruchomości staje się atrakcyjną perspektywą dla osób poszukujących opłacalnych biznesowych decyzji.
- Rozwój sektora usługowego oraz handlowego w mieście tworzy sprzyjające warunki dla inwestorów zainteresowanych rynkiem nieruchomości.
- Znajdujące się w okolicy atrakcje turystyczne i kulturowe przyciągają uwagę, dodając wartość inwestycji w mieszkanie w Radziejowie.
- Perspektywa dalszego wzrostu cen nieruchomości oraz stabilność lokalnego rynku sprawiają, że Radziejów jest obiecującym miejscem dla inwestycji.
- Zrównoważony rozwój miasta oraz plany urbanistyczne stanowią solidną podstawę dla przyszłych zysków z inwestycji w mieszkania.
- Lokalna społeczność oraz przyjazna atmosfera miasta to dodatkowe atuty, które przyciągają inwestorów, poszukujących rentownych i perspektywicznych inwestycji na rynku nieruchomości.
Przykładowe odległości:
plac zabaw 180 m., kościół 350 m., restauracja 500 m., sklep 550 m., fryzjer 550 m., szkoła 600 m., apteka 650 m., bank 650 m., jezioro 900 m.
Odległości do miast:
Kruszwica 18 km., Piotrków Kujawski 9 km., Włocławek 40 km., Konin 55 km., Bydgoszcz 75 km., Łódź 160 km., Gdańsk 217 km., Warszawa 224 km.,
Jak z miejscem parkingowym?
Dostępna jest opcja zakupu miejsc parkingowych oraz garaży, na terenie zamkniętym i monitorowanym.
Kontakt bezpośredni do agenta prowadzącego:
Barbara Jetz-Greger
☎️nr tel. 665 335 138
☎️nr biurowy: 54 426 90 10
Nasi eksperci kredytowi pomagają bezpłatnie w uzyskaniu kredytu hipotecznego na zakup tej nieruchomości. Posiadamy oferty wszystkich banków.
Przed każdą prezentacją niezbędne jest uzyskanie w naszym biurze statusu klienta poszukującego, które odbywa się poprzez zawarcie niezobowiązującej umowy pośrednictwa. Rejestrowane dane osobowe będą wykorzystywane wyłącznie w ramach świadczonych usług. Dane dotyczące nieruchomości zostały podane przez właściciela nieruchomości lub zostały wpisane na podstawie dokumentacji przedstawionej przez właściciela. Jednocześnie nie bierzemy odpowiedzialności za ich prawidłowość, kompletność i aktualność. Pośrednik odpowiedzialny zawodowo za wykonanie umowy pośrednictwa: Barbara Jetz-Greger licencja nr 24539
Nota prawna
Opis oferty zawarty na stronie internetowej sporządzany jest na podstawie oględzin nieruchomości oraz informacji uzyskanych od właściciela, może podlegać aktualizacji i nie stanowi oferty określonej w art. 66 i następnych K.C.
Kalkulator kredytowy
Formularz kontaktowy