Mieszkanie na sprzedaż
















Szczegóły ogłoszenia
- Symbol oferty PLK-MS-1257
- Typ oferty mieszkanie na sprzedaż
- Cena 749 000 zł
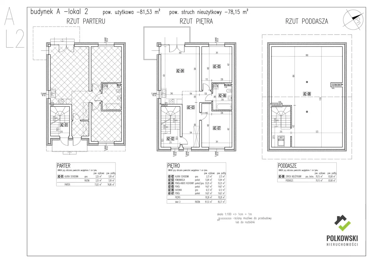
- Charakterystyka mieszkania 159.68 m2, 4 pokoje
- Budynek nowe budownictwo; rok budowy: 2025
- Rozkład mieszkania 1p piętro
- Garaż miejsce parkingowe przy budynku
- Ilość sypialni 2
- Okna PCV
- Stan lokalu deweloperski
- Technologia budowlana cegła + styropian
Lokalizacja
- Adres mazowieckie, Radzymin
Opis nieruchomości
Pozostały ostatnie dwa mieszkania.
Inwestycja oddana do użytkowania
Nowoczesne osiedle mieszkaniowe – 20 lokali w Radzyminie, ul. Słowackiego 5
Na sprzedaż mieszkania w kameralnym osiedlu mieszkaniowym zlokalizowane przy ul. Słowackiego 5 w Radzyminie, tuż obok stadionu miejskiego.
Inwestycja obejmuje 20 lokali mieszkalnych rozmieszczonych w 6 budynkach jednorodzinnych dwulokalowych w zabudowie bliźniaczej – idealne dla rodzin, par oraz inwestorów.
Charakterystyka inwestycji:
- 10 lokali parterowych (69,77 m²) – 3-pokojowe mieszkania z przestronnymi ogródkami,
- 10 lokali dwupoziomowych (81,53 m² + nieużytkowe poddasze 78,15 m²) – z balkonem i możliwością adaptacji poddasza na dodatkowe pomieszczenia.
Do każdego lokalu przynależą:
- 2 miejsca postojowe na terenie osiedla,
- prywatny ogródek – doskonały na relaks i odpoczynek na świeżym powietrzu.
Standard i wyposażenie:
- Lokale dolne (parterowe) wyposażone są w ogrzewanie podłogowe w całym mieszkaniu,
- Lokale górne (piętro + poddasze) posiadają ogrzewanie podłogowe na piętrze oraz ogrzewanie grzejnikowe na poddaszu,
- Każdy lokal ma oddzielny piec kondensacyjny gazowy – zapewniający niezależność cieplną i oszczędność.
Atuty osiedla:
- Nowoczesna architektura w zabudowie bliźniaczej,
- Kameralne osiedle – tylko 6 budynków i 20 lokali,
- Prywatne wejścia do każdego lokalu,
- Doskonała lokalizacja – blisko szkoły, sklepy, stadion miejski, przystanki komunikacji miejskiej i tereny zielone.
Zakończenie budowy:
sierpień 2025 r.
Forma sprzedaży:
Zakup na podstawie umowy deweloperskiej z pełnym zabezpieczeniem środków nabywcy poprzez rachunek powierniczy w banku ING.
Idealna propozycja zarówno dla osób szukających nowoczesnego miejsca do życia, jak i dla inwestorów poszukujących atrakcyjnych nieruchomości z potencjałem.
Zapraszamy do kontaktu i rezerwacji!