Działka na sprzedaż







Szczegóły ogłoszenia
- Symbol oferty REH-GS-34
- Typ oferty działka na sprzedaż
- Cena 799 000 zł
- Charakterystyka mieszkania 2500 m2
- Media Woda: jest; Kanalizacja: w pobliżu; Prąd: jest; Gaz: jest
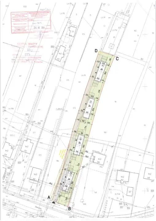
- Działka prostokąt
Lokalizacja
- Adres podkarpackie, Rzeszów
Opis nieruchomości
Oferujemy do sprzedaży działkę dla dewelopera z prawomocnymi warunkami zabudowy na 8 nowoczesnych domów jednorodzinnych w zabudowie bliźniaczej. Działka znajduje się na ulicy Beskidzkiej bezpośrednio przy drodze asfaltowej. Na działce znajduje się prąd, woda, gaz, kanalizacja sanitarna na działce sąsiedniej, kanalizacja deszczowa w pasie drogowym. Działka od ulicy Beskidzkiej wznosi się delikatnie w stronę północną przez co z budynków będzie rozpościerać się wyjątkowy widok na pobliską okolicę.
Z tej lokalizacji szybko dostaniemy się do ul. Podkarpackiej i na drogę ekspresową S19, jak i na drogę 19 wyjeżdżając w kierunku Bieszczad.
Otoczenie:
1. przystanek autobusowy - 30 sek
2. sklep spożywczy Delikatesy Centrum - 2 min
3. szkoła i przedszkole - 3 min
4. stacja kolejowa Rzeszów Zwięczyca - 3,5 min
5. kościół - 4 min
Architektura:
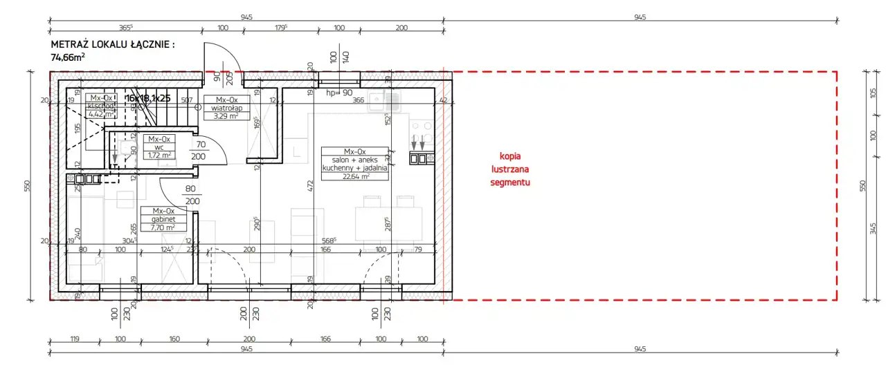
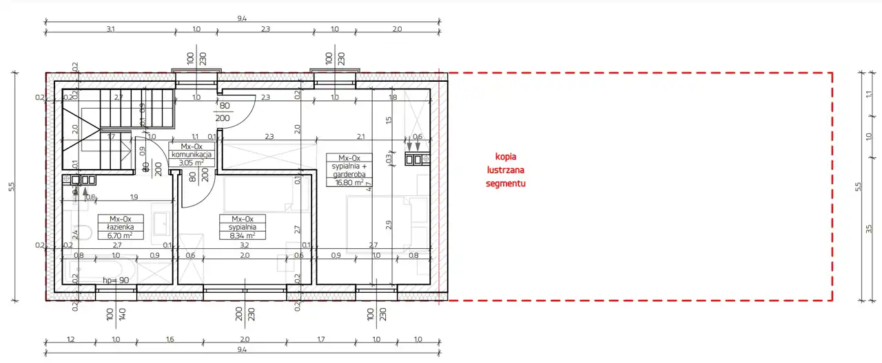
Koncepcja obejmuje 8 nowoczesnych domów z płaskim dachem w zabudowie bliźniaczej po 74,66 m2 każdy.
W budynkach przewidziano pomieszczenia:
Parter:
1. wiatrołap - 3,29 m2
2. salon z aneksem kuchennym i jadalnią - 22,64 m2
3. gabinet - 7,70 m2
4. wc z umywalką - 1,72 m2
Piętro:
1. sypialnia + garderoba - 16,80 m2
2. sypialnia - 8,34 m2
3. łazienka - 6,70 m2
4. komunikacja - 3,05 m2
Cena działki - 799 000 płn + vat
Cena zawiera projekt budowlany i prawomocną decyzję o pozwoleniu na budowę
Zapraszamy do zapoznania się z ofertą sprzedaży tej działki u nas w biurze - 725 111 100