Lokal na wynajem





Szczegóły ogłoszenia
- Symbol oferty PARK-LW-244
- Typ oferty lokal na wynajem
- Czynsz wynajmu 15 000 zł / miesiąc
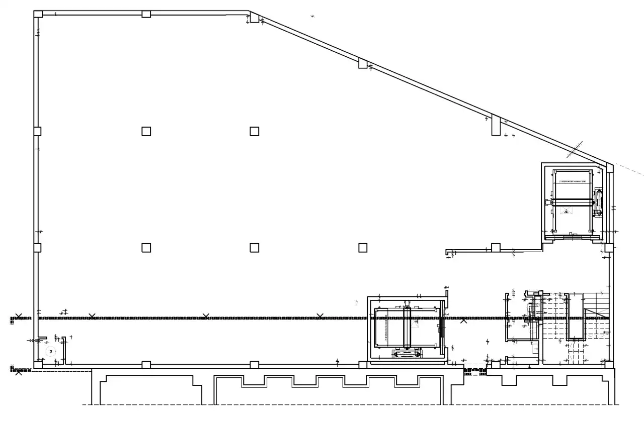
- Charakterystyka mieszkania 600 m2, 3 pokoje
- Budynek magazyn; rok budowy: 2026
- Rozkład mieszkania 1p piętro
- Dojazd asfalt
- Okna PCV
- Otoczenie zakład produkcyjny
- Stan lokalu do adaptacji
- Winda Tak
Lokalizacja
- Adres podkarpackie, Rzeszów
Opis nieruchomości
! BEZ PROWIZJI BIURA NIERUCHOMOŚCI !
Park Nieruchomości prezentuje nowy budynek magazynowo - usługowy do wynajęcia w Rzeszowie znajdujący się w dzielnicy Staromieście przy ulicy Stanisława Trembeckiego. Nieruchomość o powierzchni 600 m2 znajduje się na I piętrze z możliwością wynajęcia od kwietnia 2026 roku.
Dla zainteresowanych większą powierzchnią, istnieje możliwość wynajęcia kolejnych kondygnacji dla wielokrotności powierzchni 600 m2: 1200 m2, 1800 m2, 2400 m2, 3000 m2, 3600 m2.
Dodatkowe informacje:
- dostęp do windy z poziomu rampy
- możliwość ogrzewania magazynu ze wspólnej kotłowni, oddzielne opomiarowanie (ciepłomierze)
- wysokości od 2,61 do 3,01 m.
- winda towarowa o udźwigu 5 t
- wymiary windy: 2,31 m x 2,13 m
- moc przyłączeniowa 130 kWh,
- siatka słupów 6m,
- możliwość korzystania z budynku przez 7 dni w tygodniu
- parking ogólnodostępny
- plac manewrowy dla samochodów typu TIR
- dostępne miejsca parkingowe dla samochodów osobowych.
Nieruchomość dostępna od kwietnia 2026 r. Minimalny okres najmu - 12 miesięcy.
Cena wynajmu: 15 000 zł netto + energia elektryczna + woda + ogrzewanie (opcjonalnie),
Wymagana kaucja zabezpieczająca
Zapraszam do kontaktu.
Agent: Mariusz Pięciak
e-mail: mariusz.pieciak@park-rze.pl
tel. +48 789 336 998
Nota prawna:
Opis oferty zawarty na stronie internetowej sporządzany jest na podstawie oględzin nieruchomości oraz informacji uzyskanych od właściciela, może podlegać aktualizacji i nie stanowi oferty określonej w art. 66 i następnych K.C.