Lokal na wynajem






Szczegóły ogłoszenia
- Symbol oferty GDL-LW-1627
- Typ oferty lokal na wynajem
- Czynsz wynajmu 1 555 zł / miesiąc
- Charakterystyka mieszkania 37 m2, 2 pokoje
- Rozkład mieszkania parter piętro
- Stan lokalu dobry
Lokalizacja
- Adres podkarpackie, Rzeszów
Opis nieruchomości
Good Life Nieruchomości prezentuje Państwu do wynajęcia lokal biurowy o pow. 37m2 przy ul. Boya Żeleńskiego w Rzeszowie. Nieruchomość znajduje się na pierwszym piętrze budynku .
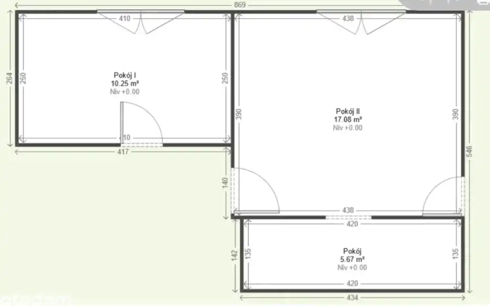
Układ pomieszczeń:
- pokój biurowy 10,25m2
- pokój biurowy 17,08m2
- pokój biurowy 5,67m2
Dodatkowe informacje:
Lokal jest gotowy do wejścia od 01.03.2026r aby rozpocząć działalność.
Lokalizacja: W najbliższym otoczeniu znajdują się inne obiekty usługowe i biurowe, sklepy oraz punkty handlowo-usługowe. W pobliżu dostępne są przystanki komunikacji miejskiej, co ułatwia dojazd z różnych części Rzeszowa.
Cena wynajmu : 1555zł netto + opłaty eksploatacyjne + prąd wg zużycia
Kaucja : wymagana
W przypadku realizacji transakcji pobieramy wynagrodzenie za usługę pośrednictwa.
Agent odpowiedzialny: Izabela Beściak
Tel.: +48 790 829 726
e-mail.: izabela.besciak@gdlf.pl