Mieszkanie na sprzedaż
574 480 zł
52 m2










1 / 10
Szczegóły ogłoszenia
- Symbol oferty ALFM-MS-4028
- Typ oferty mieszkanie na sprzedaż
- Cena 574 480 zł
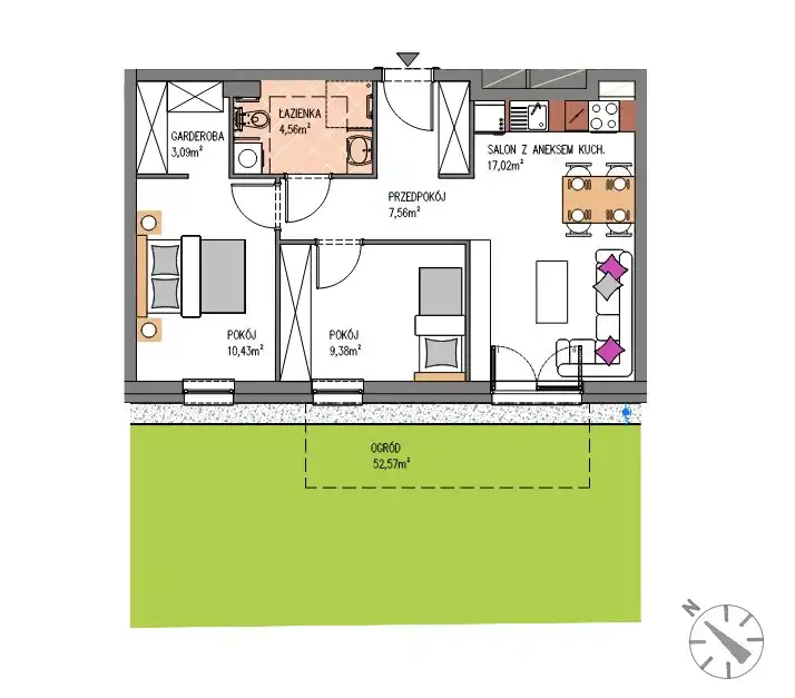
- Charakterystyka mieszkania 52.13 m2, 3 pokoje
- Budynek apartamentowiec; rok budowy: 2026
- Rozkład mieszkania parter piętro
- Media Ogrzewanie: C.O. miejskie; Woda: tak - miejska
- Dojazd droga utwardzona
- Ilość sypialni 2
- Okna PCV
- Otoczenie zabudowa jednorodzinna
- Stan lokalu deweloperski
Lokalizacja
- Adres dolnośląskie, Siechnice
Opis nieruchomości
- 3-pokojowe mieszkanie położone na parterze 2 piętrowego budynku
- nowe osiedle o zabdowie willowej w Siechnicach
- funkcjonalny, ustawny, nowy lokal o powierzchni 52,13 m kw.
- salon z aneksem kuchennym, 2 sypialnie,łazienka z wc , holl,garderoba
- ogródek o pow. 52m2
- miejsce postojowe + pomieszczenie gospodarcze w cenie
- inwestycja dla wymagających osób, które cenią nowoczesne rozwiązania
- ogrzewanie miejskie
- rolety
* W pieszej odległości niezbędne do codziennego życia punkty usługowe:Biedronka – 500 m, apteka – 750 m, poczta i restauracja z tradycyjnym polskim jedzeniem – 800 m.Do publicznej szkoły dotrzemy pieszo w 15 min (1,4 km) wzdłuż spokojnej, publicznej drogi, z szerokim chodnikiem. Rowerem to tylko 4 minuty. Z kolei nowe przedszkole oddalone jest tylko o 300 m.
*Dworzec PKP 10 min spacerem
*Węzeł wschodniej obwodnicy Wrocławia jest zlokalizowany 1,5 km od osiedla.Planowana przez Gminy Siechnice i Iwiny trasa rowerowa, doprowadzi nas do centrum Wrocławia w 45 minut.
* Możliwość skorzystania z opcji wykończenia pod klucz ( na zdjęciach przedstawiono wizualizacje)
CENA: 574.480 PLN
Miejsce postojowe i komórka lokatorska w cenie.
Zakup zwolniony z podatku PCC.
Kupujący nie płaci prowizji.
TERMIN ODDANIA:LUTY 2026 r
Polecam i zapraszam na prezentację.
Alfama Nieruchomości
Danuta Chajec
tel. 516 250 875
Powyższa oferta ma charakter informacyjny i nie stanowi oferty handlowej w rozumieniu art. 66 §1 Kodeksu Cywilnego.
Nota prawna
Opis oferty zawarty na stronie internetowej sporządzany jest na podstawie oględzin nieruchomości oraz informacji uzyskanych od właściciela, może podlegać aktualizacji i nie stanowi oferty określonej w art. 66 i następnych K.C.
Kalkulator kredytowy
Formularz kontaktowy