Działka na sprzedaż
1 000 000 zł
22 400 m2





1 / 5
Szczegóły ogłoszenia
- Symbol oferty DRN-GS-4932
- Typ oferty działka na sprzedaż
- Cena 1 000 000 zł
- Charakterystyka mieszkania 22400 m2
- Media Woda: tak - miejska; Kanalizacja: szambo
- Bezpieczeństwo ogrodzenie działki: brak
- Dojazd droga gruntowa
- Działka Niezagospodarowana, płaska, prostokąt
- Otoczenie las
Lokalizacja
- Adres wielkopolskie, międzychodzki, Sieraków (gw)
Opis nieruchomości
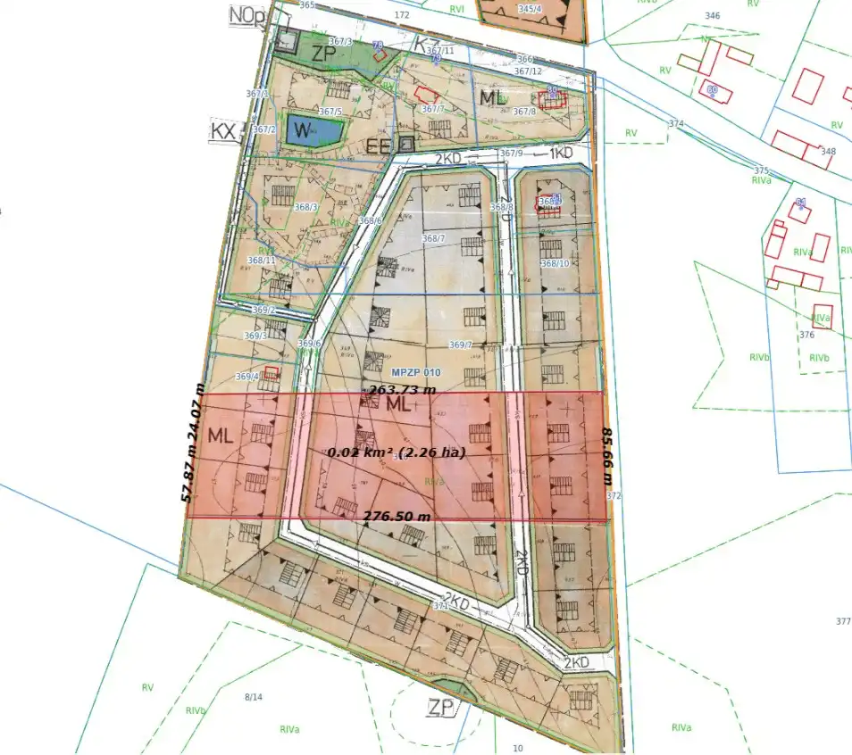
Polecam na sprzedaż atrakcyjny teren inwestycyjny o pow. 22.400 m² w miejscowości Kaczlin, 6 minut od Sierakowa.
Teren objęty MPZP oznaczony symbolem ML przeznaczony pod zabudowę letniskową.
Uchwała XXV/201/2001 Rady Miejskiej w Sierakowie z 26.06.2001r.
Parametry dotyczące zabudowy:
- wysokość zabudowy, dwie kondygnacje w tym poddasze użytkowe,
- dachy strome od 35° do 45°,
- powierzchnia zabudowy do 10%,
- podział zgodny z zapisami MPZP.
Media:
Prąd, woda z istniejącego wodociągu, zbiornik bezodpływowy do czasu wybudowania sieci kanalizacyjnej.
Najbliższe otoczenie działki stanowią lasy i powstająca nowa zabudowa.
Dojazd drogą utwardzoną.
Cena: 1.000.000 zł
lub inna atrakcyjna dla obu stron.
Polecam i zapraszam do kontaktu.
Rafał Zdunek licencja 27445
tel. 501 448 449
Teren objęty MPZP oznaczony symbolem ML przeznaczony pod zabudowę letniskową.
Uchwała XXV/201/2001 Rady Miejskiej w Sierakowie z 26.06.2001r.
Parametry dotyczące zabudowy:
- wysokość zabudowy, dwie kondygnacje w tym poddasze użytkowe,
- dachy strome od 35° do 45°,
- powierzchnia zabudowy do 10%,
- podział zgodny z zapisami MPZP.
Media:
Prąd, woda z istniejącego wodociągu, zbiornik bezodpływowy do czasu wybudowania sieci kanalizacyjnej.
Najbliższe otoczenie działki stanowią lasy i powstająca nowa zabudowa.
Dojazd drogą utwardzoną.
Cena: 1.000.000 zł
lub inna atrakcyjna dla obu stron.
Polecam i zapraszam do kontaktu.
Rafał Zdunek licencja 27445
tel. 501 448 449
Nota prawna
Opis oferty zawarty na stronie internetowej sporządzany jest na podstawie oględzin nieruchomości oraz informacji uzyskanych od właściciela, może podlegać aktualizacji i nie stanowi oferty określonej w art. 66 i następnych K.C.
Kalkulator kredytowy
Formularz kontaktowy