Lokal na sprzedaż






















Szczegóły ogłoszenia
- Symbol oferty PRP-LS-74762
- Typ oferty lokal na sprzedaż
- Cena 4 182 000 zł
- Charakterystyka mieszkania 1113.7 m2
- Budynek biurowo-usługowy; rok budowy: 2012
- Rozkład mieszkania parter piętro
- Media Ogrzewanie: C.O. GAZOWE
- Miejsce parkingowe Tak
- Dojazd ASFALTOWA
- Instalacje dobre
- Okna PCV
- Stan lokalu do wprowadzenia
Lokalizacja
- Adres świętokrzyskie, kielecki, Sitkówka-Nowiny
Opis nieruchomości
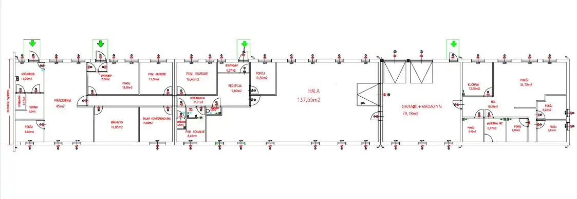
W skład zabudowań wchodzą:
Budynek usługowo -produkcyjno – magazynowy z częścią administracyjno – biurową - o pow. ok. 538 m2.
Wybudowany w 2012r. Materiał konstrukcyjny, YTONG, dach pokryty blachą ocieplony wełną 20cm. Budynek posiada ogrzewanie podłogowe, ogrzewany jest gazem ziemnym. W budynku rozprowadzona jest instalacja powietrzna oraz gniazda 230V/400V. Budynek posiada 4 wejścia oraz dwie bramy wjazdowe. w skład pomieszczeń budynku wchodzą:
- 11 pomieszczeń biurowych,
- recepcja,
- po. socjalne,
- szatnia,
- kotłownia,
- 4 łazienki/WC,
- hala,
- garaż/magazyn,
- kuchnia.
Hala o powierzchni ok. 478m2, która jest połączona z wiatą magazynową o powierzchni ok. 97,7m2. Wymiary hali to ok. 17 x 28m, wys. użytkowa hali 5,1m. Wymiary wiaty magazynowej ok. 3,5x28m. Hala stalowa, ocieplona płytą warstwową o grubości 15cm, dach 16cm. W dachu zamontowany jest świetlik z klapą uchylną do wentylacji. Hala ogrzewana nagrzewnicą olejową. W budynku rozprowadzona jest instalacja 230V/400V.
Łączna powierzchnia użytkowa budynków to ok. 1113,7 m2,
Na działce obowiązuje Miejscowy Plan Zagospodarowania Przestrzennego - D.2P - Obiekty produkcyjne, składowania i magazynowania.
Nieruchomość w doskonałej lokalizacji, teren przemysłowy, z bardzo dobrym dojazdem do trasy Kielce – Kraków oraz obwodnicy Kielc. Nieruchomość ogrodzona, oświetlona oraz wyposażona w system monitoringu. Plac wyłożony kostką brukową.
Działka o przybliżonych wymiarach ok. 66 x 66 x 23 x 19 x 43 x 40.
Media: gaz, prąd, woda, kanalizacja na działce.
Cena: 3 400 000 zł netto (4 182 000 zł brutto)
Dla nieruchomości nie sporządzono świadectwa charakterystyki energetycznej.
Dane kontaktowe do agenta: Magdalena Prokopoudi Tel: 888-889-594 E-mail: magdalena.prokopoudi@properco.pl
--------
For sale: a developed plot of land with an area of 3,341 m², located in Nowiny.
The property includes:
A service, production, and warehouse building with an administrative and office section – approx. 538 m².
- Built in 2012.
- Construction material: YTONG, roof covered with sheet metal and insulated with 20 cm wool.
- The building has underfloor heating and is heated by natural gas.
- Equipped with an air installation and 230V/400V sockets.
- Four entrances and two drive-in gates.
The building consists of:
- 11 office rooms,
- reception,
- social room,
- locker room,
- boiler room,
- 4 bathrooms/WC,
- hall,
- garage/warehouse,
- kitchen.
A hall with an area of approx. 478 m², connected to a warehouse shed of approx. 97.7 m².
- Hall dimensions: approx. 17 x 28 m, usable height 5.1 m.
- Shed dimensions: approx. 3.5 x 28 m.
- Steel hall, insulated with 15 cm sandwich panels, roof insulated with 16 cm panels.
- The roof has a skylight with a ventilation flap.
- Heated by an oil heater.
- Electrical installation 230V/400V distributed in the building.
Total usable area of the buildings: approx. 1,113.7 m².
The plot is covered by a Local Development Plan - D.2P - designated for production, storage, and warehousing facilities.
Excellent location in an industrial area with very good access to the Kielce – Kraków route and the Kielce bypass. The property is fenced, illuminated, and equipped with a monitoring system. The yard is paved with concrete blocks.
Plot dimensions (approx.): 66 x 66 x 23 x 19 x 43 x 40 m.
Utilities: gas, electricity, water, sewage on the plot.
Price: 3,400,000 PLN net (4 182 000 PLN gross).
An energy performance certificate has not been issued for the property.
Contact details for the agent: Magdalena Prokopoudi, Tel: +48 888-889-594, E-mail: magdalena.prokopoudi@properco.pl