Mieszkanie na sprzedaż
















Szczegóły ogłoszenia
- Symbol oferty PRP-MS-73773
- Typ oferty mieszkanie na sprzedaż
- Cena 500 000 zł
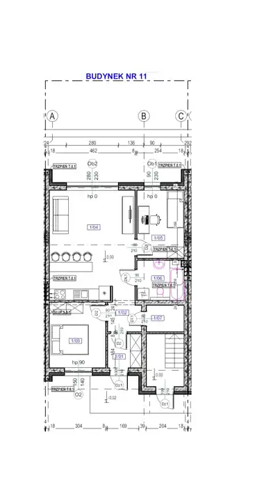
- Charakterystyka mieszkania 59.35 m2, 3 pokoje
- Budynek szeregowiec; rok budowy: 2024
- Rozkład mieszkania parter piętro
- Media Ogrzewanie: C.O. GAZOWE; Woda: jest; Gaz: jest
- Dojazd asfalt
- Garaż miejsce postojowe przed budynkiem
- Ilość sypialni 2
- Instalacje nowe
- Okna PCV 3 komorowe
- Otoczenie tereny rekreacyjne
- Stan lokalu deweloperski
Lokalizacja
- Adres świętokrzyskie, Sitkówka-Nowiny, Trzcianki
Opis nieruchomości
a) salon + aneks kuchenny 25,85 m2,
b) 2 pokoje 10,47 m2, 9,05 m2,
c) łazienka 5,24 m2,
d) komunikacja 3,82 m2,
e) wiatrołap 3,38 m2,
f) schowek 1,54 m2 (4,7 m2 po podłodze).
Do każdego mieszkania zaprojektowano miejsce postojowe przed budynkiem 1 lub 2 sztuki.
Do mieszkania przynależy ogród o powierzchni do 40 m2.
Budynki są wykonane w technologii żelbetowo-murowanej z zastosowaniem pustaków ceramicznych, docieplone najwyższej klasy styropianem grafitowym 15 cm Lambda 0,032.
Ogrzewanie gazowe (gaz ziemny) za pomocą piecyków dwufunkcyjnych. W mieszkaniu rozłożone zostało ogrzewanie podłogowe. Dach pokryty blachą, okna 3 szybowe.
Ta nowoczesna inwestycja składa się z 12 budynków w zabudowie szeregowej, w których znajduje się 24 bezczynszowych mieszkań, zlokalizowanych na parterze i I piętrze. Wszystkie lokale na parterze wyposażone zostały we własny ogród odgrodzony płotem z paneli 2d. Każdy lokal ma niezależne wejście i swój licznik prądu, gazu i wody. Możliwość zakupu całego segmentu o powierzchni 190 m2 (parter z ogródkiem i góra z tarasami).
Adres strony internetowej, o którym mowa w art. 19a ust. 3 ustawy z dnia 20 maja 2021 r. o ochronie praw nabywcy lokalu mieszkalnego lub domu jednorodzinnego oraz Deweloperskim Funduszu Gwarancyjnym to robexbudownictwo(kropka)pl. Adres strony został ujęty fonetycznie.
Termin zakończenia inwestycji: IV kwartał 2024 r.
For service in English call Magdalena Prokopoudi at +48 888-889-594.
____
A modern apartment with an area of 59.35 m² located on the ground floor of a new, intimate, two-apartment building situated in Trzcianki near Nowiny. The building has a modern design and is constructed from high-quality materials. The estate is located in a green, wooded area.
The apartment consists of:
a) Living room + kitchenette 25.85 m²,
b) 2 rooms 10.47 m², 9.05 m²,
c) Bathroom 5.24 m²,
d) Hallway 3.82 m²,
e) Vestibule 3.38 m²,
f) Storage 1.54 m² (4.7 m² floor area).
Each apartment has 1 or 2 parking spaces designed in front of the building.
The apartment includes a garden with an area of up to 40 m².
The buildings are constructed using reinforced concrete-masonry technology with ceramic blocks, insulated with top-quality 15 cm graphite styrofoam, Lambda 0.032.
Heating is provided by gas (natural gas) through dual-function boilers. The apartment has underfloor heating installed. The roof is covered with metal sheeting, and the windows are triple-glazed.
This modern development consists of 12 row houses, containing 24 maintenance-free apartments, located on the ground floor and first floor. All ground-floor units are equipped with their own garden, separated by a 2D panel fence. Each unit has an independent entrance and its own electricity, gas, and water meter. There is an option to purchase an entire segment with a total area of 190 m² (ground floor with a garden and upper floor with terraces).
The website address referred to in Article 19a, paragraph 3 of the Act of 20 May 2021 on the protection of the rights of purchasers of residential premises or single-family houses and on the Developer Guarantee Fund is robexbudownictwo(dot)pl. The website address has been written phonetically.
Expected completion date of the investment: Q4 2024.
The buyer is exempt from agency fees and PCC tax.
For service in English call Magdalena Prokopoudi at +48 888-889-594.