Mieszkanie na sprzedaż
















Szczegóły ogłoszenia
- Symbol oferty PRP-MS-73771
- Typ oferty mieszkanie na sprzedaż
- Cena 650 000 zł
- Charakterystyka mieszkania 131.67 m2, 3 pokoje
- Budynek szeregowiec; rok budowy: 2024
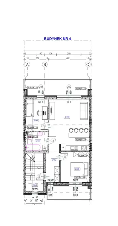
- Rozkład mieszkania 1p piętro
- Media Ogrzewanie: C.O. GAZOWE; Woda: jest; Gaz: jest
- Balkon jest
- Dojazd asfalt
- Garaż miejsce postojowe przed budynkiem
- Ilość sypialni 2
- Instalacje nowe
- Okna PCV 3 komorowe
- Otoczenie tereny rekreacyjne
- Stan lokalu deweloperski
Lokalizacja
- Adres świętokrzyskie, Sitkówka-Nowiny, Trzcianki
Opis nieruchomości
a) salon + aneks kuchenny 25,85 m2,
b) 2 pokoje 11,38 m2, 9,05 m2,
c) łazienka 5,24 m2,
d) komunikacja 6,49 m2,
e) klatka schodowa 8,66,
f) poddasze do adaptacji 65m2 ( 50 m2 po podłodze nieużytkowe).
Do każdego mieszkania zaprojektowano miejsce postojowe przed budynkiem 1 lub 2 sztuki.
Do mieszkania przynależą 2 balkony o łącznej powierzchni 19,10 m2.
Budynki są wykonane w technologii żelbetowo-murowanej z zastosowaniem pustaków ceramicznych, docieplone najwyższej klasy styropianem grafitowym 15 cm Lambda 0,032.
Ogrzewanie gazowe (gaz ziemny) za pomocą piecyków dwufunkcyjnych. W mieszkaniu rozłożone zostało ogrzewanie podłogowe. Dach pokryty blachą, okna 3 szybowe.
Ta nowoczesna inwestycja składa się z 12 budynków w zabudowie szeregowej, w których znajduje się 24 bezczynszowych mieszkań, zlokalizowanych na parterze i I piętrze. Wszystkie lokale na parterze wyposażone zostały we własny ogród odgrodzony płotem z paneli 2d. Każdy lokal ma niezależne wejście i swój licznik prądu, gazu i wody. Możliwość zakupu całego segmentu o powierzchni 190 m2 (parter z ogródkiem i góra z tarasami).
Adres strony internetowej, o którym mowa w art. 19a ust. 3 ustawy z dnia 20 maja 2021 r. o ochronie praw nabywcy lokalu mieszkalnego lub domu jednorodzinnego oraz Deweloperskim Funduszu Gwarancyjnym to robexbudownictwo(kropka)pl. Adres strony został ujęty fonetycznie.
Termin zakończenia inwestycji: IV kwartał 2025 r.
For service in English call Magdalena Prokopoudi at +48 888-889-594.
____
A modern apartment with an area of 66.67 m² located on the floor of a new, intimate, two-apartment building situated in Trzcianki near Nowiny. The building has a modern shape and is constructed from high-quality materials. The estate is located in a green, wooded area.
The apartment consists of:
a) Living room + kitchenette 25.85 m², b) 2 rooms 11.38 m², 9.05 m², c) Bathroom 5.24 m², d) Hallway 6.49 m², e) Staircase 8.66 m², f) Attic for adaptation 65 m² (the usable area of the attic is approximately 50 m²).
Each apartment has 1 or 2 parking spaces designed in front of the building. The apartment includes 2 balconies with a total area of 19.10 m².
The buildings are constructed using reinforced concrete-masonry technology with ceramic blocks, insulated with top-quality 15 cm graphite styrofoam, Lambda 0.032.
Heating is provided by gas (natural gas) through dual-function boilers. The apartment has underfloor heating installed. The roof is covered with metal sheeting, and the windows are triple-glazed.
This modern development consists of 12 row houses, containing 24 maintenance-free apartments, located on the ground floor and first floor. All ground-floor units are equipped with their own garden, separated by a 2D panel fence. Each unit has an independent entrance and its own electricity, gas, and water meter. There is an option to purchase an entire segment with a total area of 190 m² (ground floor with a garden and upper floor with terraces).
The website address referred to in Article 19a, paragraph 3 of the Act of 20 May 2021 on the protection of the rights of purchasers of residential premises or single-family houses and on the Developer Guarantee Fund is robexbudownictwo(dot)pl. The website address has been written phonetically.
Expected completion date of the investment: Q4 2025.
The buyer is exempt from agency fees and PCC tax.