Lokal na wynajem
















































Szczegóły ogłoszenia
- Symbol oferty BS2-LW-313307
- Typ oferty lokal na wynajem
- Czynsz wynajmu 10 000 zł / miesiąc
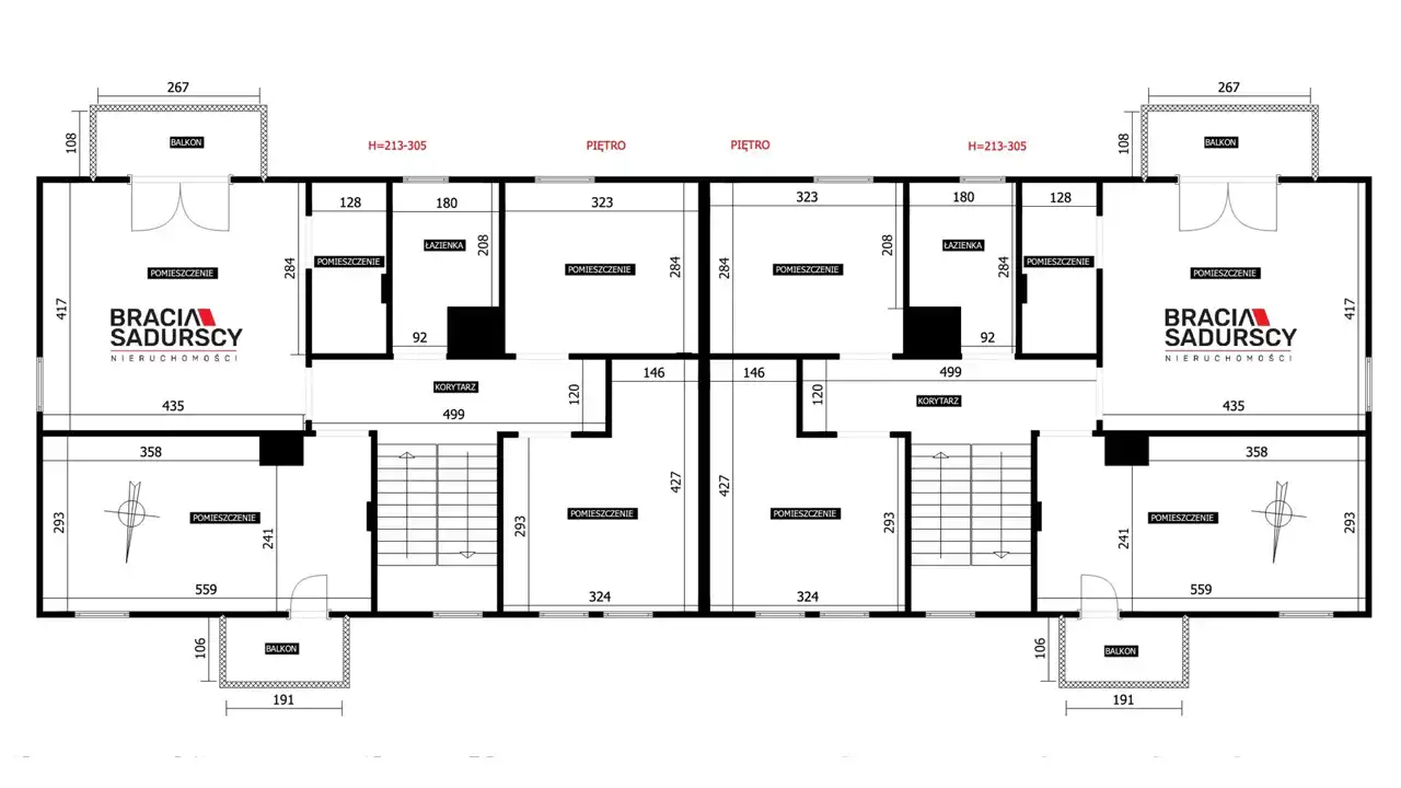
- Charakterystyka mieszkania 144 m2, 6 pokoi
- Budynek obiekt handlowy; rok budowy: 2025
- Rozkład mieszkania parter piętro
- Media Ogrzewanie: C.O. GAZOWE; Woda: ciepła - piecyk; Gaz: jest
- Miejsce parkingowe Tak
- Dojazd ASFALTOWA
- Instalacje ELEKTRYCZNA, GAZOWA, TELEFONICZNA, INTERNETOWA
- Kaucja do uzgodnienia
- Okna PCV
- Otoczenie centrum miasta
- Stan lokalu do adaptacji
Lokalizacja
- Adres małopolskie, Skała
Opis nieruchomości
Lokal handlowo-usługowy / biurowy do wynajęcia – Skała, woj. małopolskie
Do wynajęcia atrakcyjny lokal handlowo-usługowy lub biurowy zlokalizowany w Skale (woj. małopolskie), w bardzo dobrej, frontowej lokalizacji, w otoczeniu licznych punktów usługowych i handlowych, takich jak apteki, przychodnia zdrowia oraz inne lokale komercyjne.
Nieruchomość stanowi segment budynku w zabudowie bliźniaczej, jedno-piętrowy, z dużym potencjałem aranżacyjnym i możliwością dostosowania do różnorodnych form działalności usługowej, handlowej lub biurowej.
Dane techniczne jednego segmentu:
-
powierzchnia zabudowy: 93,60 m²
-
powierzchnia użytkowa: 133,55 m²
-
powierzchnia całkowita: 144,28 m²
-
kubatura budynku: 698,50 m³
-
liczba pomieszczeń: 6
-
wysokość budynku do kalenicy: 9 m
Lokal jest frontowy, z możliwością wykonania dużej witryny handlowej, co zapewnia doskonałą ekspozycję i widoczność dla klientów. Układ pomieszczeń pozwala na elastyczne zagospodarowanie przestrzeni pod działalność usługową, medyczną, handlową, biurową, edukacyjną czy kosmetyczną.
Budynek wyposażony jest w piec gazowy, a łazienki oraz klatka schodowa są wykończone. Istnieje możliwość doprowadzenia lokalu do pożądanego standardu we współpracy z właścicielem, zgodnie z potrzebami przyszłego najemcy.
Dużym atutem nieruchomości jest przestronny parking na kilka samochodów, zlokalizowany za prywatnym szlabanem, co zapewnia bezpieczeństwo oraz gwarancję dostępności miejsc parkingowych wyłącznie dla użytkowników obiektu.
Atuty nieruchomości:
-
doskonała lokalizacja w centrum usług
-
frontowy lokal z możliwością witryny
-
duży, prywatny parking
-
szerokie przeznaczenie usługowe i biurowe
-
możliwość aranżacji pod potrzeby najemcy
-
bezpieczny teren z kontrolowanym wjazdem
Lokal idealny dla firm poszukujących funkcjonalnej i reprezentacyjnej siedziby w rozwijającej się lokalizacji.
Zapraszamy do kontaktu w celu uzyskania szczegółowych informacji oraz umówienia prezentacji.
Patrycja Rubinkiewicz
505 236 943
patrycja@sdurscy.pl