Mieszkanie na sprzedaż













Szczegóły ogłoszenia
- Symbol oferty PRP-MS-74645
- Typ oferty mieszkanie na sprzedaż
- Cena 212 000 zł
- Charakterystyka mieszkania 48.06 m2, 2 pokoje
- Budynek blok
- Rozkład mieszkania 4p piętro
- Media Ogrzewanie: C.O. Z SIECI MIEJSKIEJ; Woda: ciepła - miejska; Gaz: jest
- Balkon jest
- Czynsz Czynsz letni: 578.9 zł
- Dojazd asfalt
- Ilość sypialni 1
- Instalacje ELEKTRYCZNA, GAZOWA, TELEFONICZNA, INTERNETOWA
- Okna PCV
- Otoczenie bloki
- Stan lokalu do remontu
- Technologia budowlana beton, cegła
Lokalizacja
- Adres świętokrzyskie, skarżyski, Skarżysko-Kamienna
Opis nieruchomości
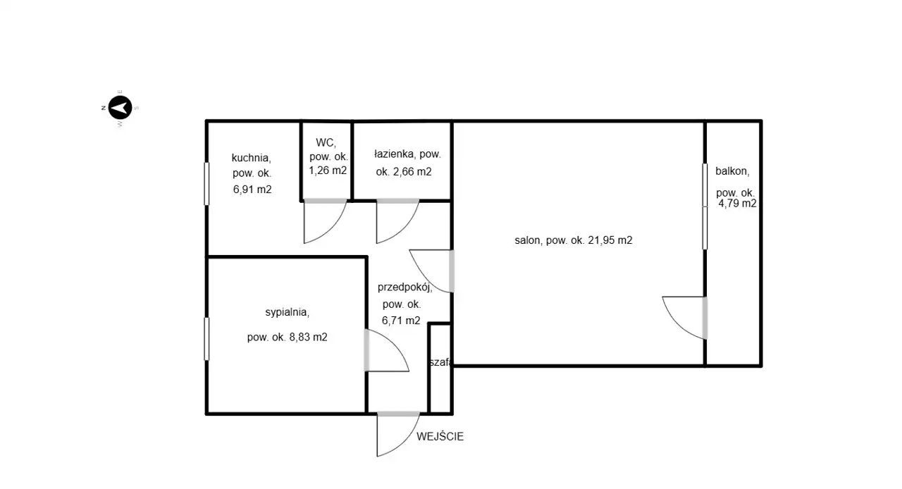
W skład nieruchomości wchodzi:
- salon (pow. ok. 21,95 m2) z wyjściem na balkon (pow. ok. 4,79 m2),
- sypialnia (pow. ok. 8,83 m2),
- kuchnia (pow. ok. 6,91 m2),
- łazienka (pow. ok. 2,66 m2),
- WC (pow. ok. 1,26m2),
- przedpokój (pow. ok. 6,71 m2).
Powierzchnie pomieszczeń podane w przybliżeniu na podstawie wskazań dalmierza.
Do mieszkania przynależy piwnica o powierzchni 4 m2.
Stolarka okienna PCV, na podłogach w całym mieszkaniu linoleum.
Mieszkanie dwustronne, z ekspozycją północ - południe, ciche, ciepłe, widne.
Ogrzewanie i ciepła woda z sieci miejskiej (brak piecyka gazowego w mieszkaniu).
Nieruchomość zlokalizowana w cichej i spokojnej okolicy. W pobliżu liczne punkty handlowe, usługowe.
Przed blokiem duży parking dla mieszkańców.
Dla nieruchomości nie sporządzono świadectwa charakterystyki energetycznej.
Czynsz administracyjny ok. 579 PLN/ 1 os. (zawiera zaliczkę na fundusz remontowy, ogrzewanie, zimną i ciepłą wodę, części wspólne, śmieci, monitoring) + prąd, gaz wg wskazań licznika.
Dla nieruchomości nie sporządzono świadectwa charakterystyki eneregtycznej.
Dane kontaktowe do agenta: Jacek Kotlarz, tel: 888 889 441, e-mail: jacek.kotlarz@properco.pl
For more information in English please call: 888 889 441, e-mail: jacek.kotlarz@properco.pl
-------
For sale: 2-room apartment with an area of 48.06 m², located on the 4th floor of a four-story building in Skarżysko-Kamienna, on Konopnicka Street. The apartment requires renovation.
Property layout:
- Living room (approx. 21.95 m²) with access to a balcony (approx. 4.79 m²),
- Bedroom (approx. 8.83 m²),
- Kitchen (approx. 6.91 m²),
- Bathroom (approx. 2.66 m²),
- WC (approx. 1.26 m²),
- Hallway (approx. 6.71 m²).
Room sizes are approximate, based on laser measurements.
A basement storage unit of 4 m² is included.
The apartment has PVC windows and linoleum flooring throughout. It is dual-aspect (north-south), quiet, warm, and bright.
Heating and hot water are supplied from the municipal network (no gas heater in the apartment).
Located in a peaceful area with various shops and services nearby. A large residents' parking lot is available in front of the building.
No energy performance certificate has been issued for the property.
Administrative rent: Approx. 579 PLN/month for one person (includes a renovation fund, heating, cold and hot water, common areas, waste disposal, and monitoring) + electricity and gas according to meter readings.
Contact details: Jacek Kotlarz, tel: 888 889 441, e-mail: jacek.kotlarz@properco.pl