Mieszkanie na sprzedaż
























Szczegóły ogłoszenia
- Symbol oferty TWJ-MS-2564
- Typ oferty mieszkanie na sprzedaż
- Cena 840 000 zł
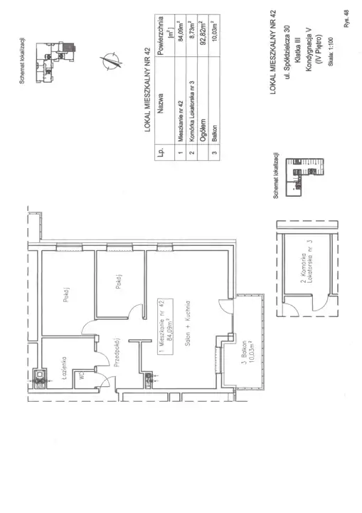
- Charakterystyka mieszkania 84.09 m2, 3 pokoje
- Budynek apartamentowiec; rok budowy: 2017
- Rozkład mieszkania 4p piętro
- Media Ogrzewanie: C.O. GAZOWE; Woda: ciepła - piecyk; Gaz: jest
- Balkon jest
- Czynsz 280 zł
- Dojazd ASFALTOWA
- Garaż miejsce garażowe
- Ilość sypialni 2
- Instalacje ELEKTRYCZNA, GAZOWA
- Okna PCV 3 szyby, ciepły montaż
- Otoczenie centrum miasta
- Plac zabaw Tak
- Stan lokalu bardzo dobry
- Technologia budowlana żelbeton
- Umeblowanie pełne
- Winda Tak
Lokalizacja
- Adres świętokrzyskie, Skarżysko-Kamienna
Opis nieruchomości
Biuro Nieruchomości
TWOJE M
Prezentuje na sprzedaż
Przestronne, nowoczesne mieszkanie z tarasem – Skarżysko-Kamienna, ul. Spółdzielcza
Na sprzedaż wyjątkowe mieszkanie o powierzchni 84,09 m², położone na czwartym, ostatnim piętrze nowoczesnego bloku z windą z 2017 roku. To idealna propozycja dla osób szukających komfortowej, funkcjonalnej przestrzeni w wysokim standardzie.
Mieszkanie zachwyca przestronnym salonem z aneksem kuchennym, który stanowi serce domu i naturalnie łączy strefę wypoczynkową z jadalnianą. Z salonu prowadzi wyjście na duży, słoneczny taras – idealne miejsce na poranną kawę lub relaks po pracy.
Układ pomieszczeń:
-
przestronny salon z aneksem kuchennym i wyjściem na taras
-
dwie ustawne sypialnie
-
duży przedpokój
-
osobna pralnia
-
komfortowa łazienka z wanną i dwiema umywalkami
Dwustronna ekspozycja okien (południe i wschód) sprawia, że mieszkanie jest jasne i doskonale doświetlone przez cały dzień.
Standard wykończenia:
Wnętrze zostało wykończone z dbałością o jakość i detale:
-
na podłogach elegancka deska drewniana
-
w kuchni i łazience wysokiej klasy gres
-
nowoczesna zabudowa i spójna stylistyka
Mieszkanie nie wymaga dodatkowych nakładów finansowych – jest gotowe do wprowadzenia.
Dodatkowe atuty
miejsce postojowe w garażu podziemnym dodatkowo płatne 50,000 złotych
-
duża komórka lokatorska – 8,73 m²
-
budynek z windą
ostatnie piętro – większa prywatność i brak sąsiadów nad mieszkaniem
- niski czynsz 280 złotych
Lokalizacja
Nieruchomość znajduje się w dobrze skomunikowanej części miasta. W pobliżu dostępne są:
sklepy, szkoła, przedszkole, basen oraz inne punkty usługowe, co czyni to miejsce wygodnym do życia zarówno dla rodzin, jak i osób pracujących.
To mieszkanie łączy przestrzeń, światło i wysoki standard wykończenia z funkcjonalną lokalizacją. Idealne dla osób, które chcą zamieszkać komfortowo – bez kompromisów.