Lokal na sprzedaż







Szczegóły ogłoszenia
- Symbol oferty BS2-LS-308669
- Typ oferty lokal na sprzedaż
- Cena 1 667 400 zł
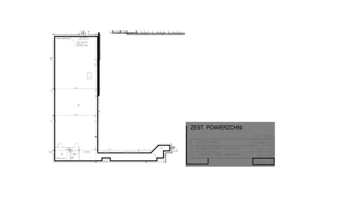
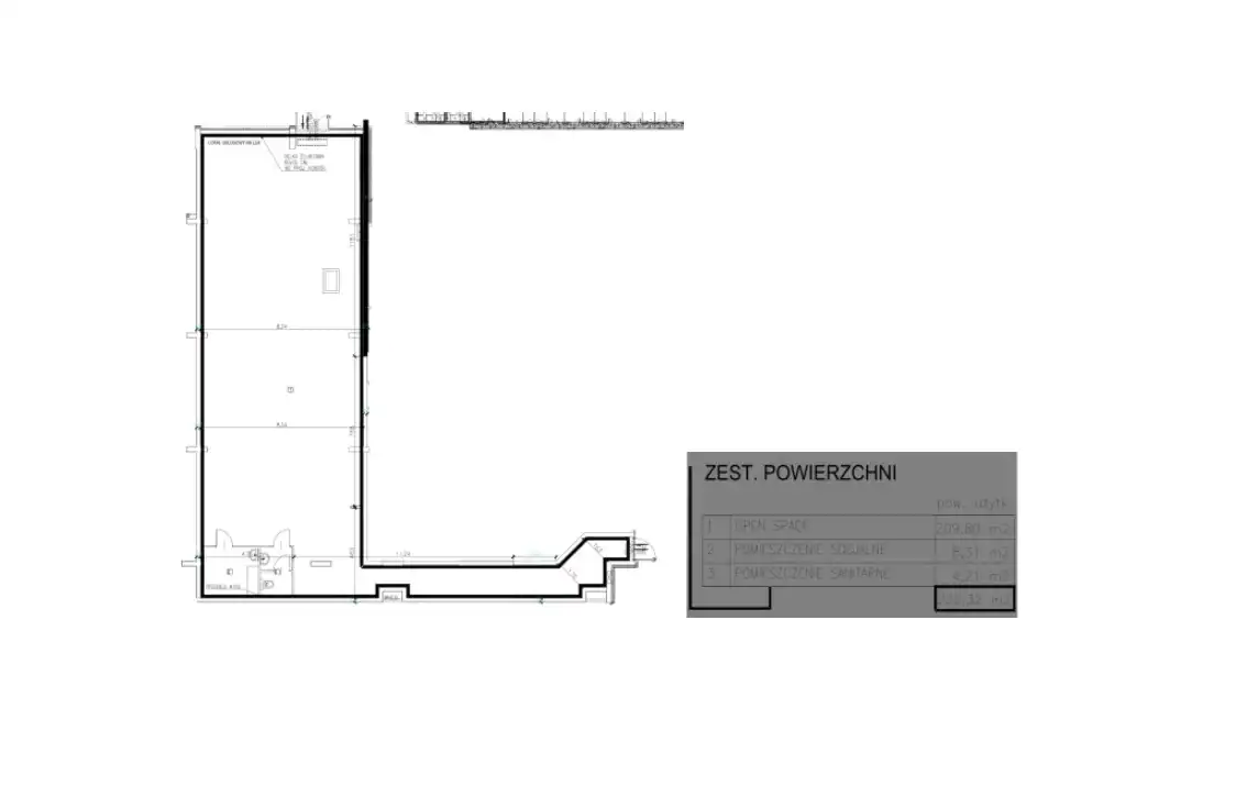
- Charakterystyka mieszkania 222.32 m2, 2 pokoje
- Budynek budynek wielorodzinny; rok budowy: 2023
- Rozkład mieszkania parter piętro
- Media Ogrzewanie: centralne; Woda: zimna; Gaz: brak
- Dojazd asfalt
- Instalacje ELEKTRYCZNA
- Okna PCV 3 komorowe
- Otoczenie działki zabudowane
- Stan lokalu wykończony
- Winda Tak
Lokalizacja
- Adres małopolskie, krakowski, Skawina
Opis nieruchomości
Na sprzedaż – lokale usługowe w nowoczesnym apartamentowcu na granicy Krakowa i Skawiny
Biuro Nieruchomości Bracia Sadurscy prezentuje ofertę sprzedaży trzech atrakcyjnych lokali usługowych o powierzchniach: 293 m², 223 m² oraz 150 m², zlokalizowanych w nowo powstałym apartamentowcu przy granicy Krakowa i Skawiny.
Lokalizacja
Inwestycja znajduje się w doskonałym punkcie komunikacyjnym – zaledwie 1,8 km od dwóch przystanków nowej linii Szybkiej Kolei Aglomeracyjnej, a także w pobliżu 3 linii autobusowych. W bezpośrednim sąsiedztwie znajdują się:
-
rozległe osiedle domków jednorodzinnych,
-
gęsto zaludniona okolica – ok. 1300 osób/km² w promieniu 1–1,3 km,
-
65 apartamentów mieszkalnych w tym samym budynku.
O budynku i lokalach
-
Lokale usługowe znajdują się na parterze budynku mieszkalnego, zapewniając świetną widoczność i dostępność.
-
Przystosowane do potrzeb osób niepełnosprawnych.
-
39 ogólnodostępnych miejsc postojowych dla klientów.
-
Nowoczesne rozwiązania technologiczne: pompy ciepła oraz instalacja fotowoltaiczna.
-
Każdy lokal będzie posiadał możliwość oznakowania oraz montażu kasetonów reklamowych.
Idealne miejsce dla: sklepów, gabinetów, salonów urody, biur lub innych działalności usługowych.
Zapraszam do kontaktu i na prezentację:
Arkadiusz Zemła
Doradca ds. Nieruchomości
518 706 552
arek@sadurscy.pl
For Sale – Commercial Units in a Modern Residential Building on the Border of Kraków and Skawina
Bracia Sadurscy Real Estate Agency presents an exclusive offer for the sale of three attractive commercial units with the following floor areas: 293 m², 223 m², and 150 m², located in a newly constructed apartment building right on the border of Kraków and Skawina.
Location
This investment enjoys an excellent location with great transport accessibility:
-
Only 1.8 km from two stations of the newly launched Agglomeration Fast Rail line,
-
Close to three bus lines,
-
In the immediate vicinity of:
-
A large residential estate of single-family houses,
-
A densely populated area – approx. 1300 residents/km² within a 1–1.3 km radius,
-
65 residential apartments within the same building.
-
About the Building and Units
-
The commercial units are located on the ground floor of the residential building, ensuring excellent visibility and accessibility.
-
Fully adapted to the needs of people with disabilities.
-
39 public parking spaces available for customers.
-
Equipped with modern technologies: heat pumps and photovoltaic installation.
-
Each unit includes the possibility of external signage and advertising light boxes.
An ideal location for: shops, clinics, beauty salons, offices, or other service-oriented businesses.
Feel free to contact me for more details and to arrange a viewing:
Arkadiusz Zemła
Real Estate Advisor
+48 518 706 552
arek@sadurscy.pl