Działka na sprzedaż
93 500 zł
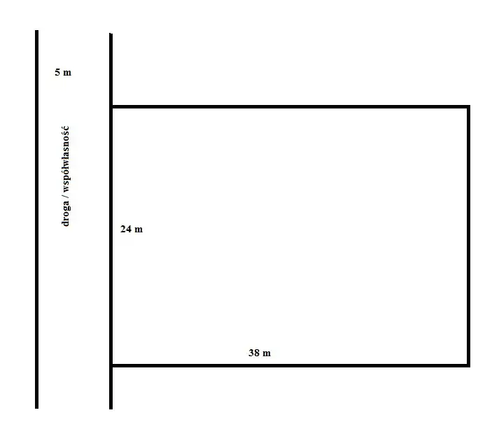
1 100 m2


1 / 2
Szczegóły ogłoszenia
- Symbol oferty AKS-GS-53510
- Typ oferty działka na sprzedaż
- Cena 93 500 zł
- Charakterystyka mieszkania 1100 m2
- Media Woda: w drodze; Prąd: w ulicy
- Dojazd asfalt
- Działka Niezagospodarowana, płaska, prostokąt
- Otoczenie działki niezabudowane
Lokalizacja
- Adres łódzkie, skierniewicki, Skierniewice
Opis nieruchomości
Do sprzedania trzy działki budowlane o powierzchni 1100 m2 każda. Teren w MPZP oznaczony MN (zabudowy mieszkaniowej jednorodzinnej). Prąd i woda w drodze gminnej. Działki usytuowane w południowej części gminy Skierniewice, około 6 km od centrum miasta. Cena sprzedaży wynosi 85 PLN/m2.
Nieruchomość położona cichej i spokojnej okolicy
Miejscowy plan zagospodarowania przestrzennego na tym terenie przewiduje zabudowę zagrodową z dopuszczeniem zabudowy mieszkaniowej jednorodzinnej i usług nieuciążliwych (oznaczone symbolem "MRj") . Dopuszcza się możliwość przekształcania istniejącej zabudowy zagrodowej w zabudowę mieszkaniową poprzez likwidację funkcji produkcji rolnej oraz lokalizację zabudowy mieszkaniowej w enklawach pomiędzy siedliskami rolniczymi (tzw. zabudowa plombowa).na podstawie powyższego zapisu dla nieruchomości przygotowano podział gruntu na działki budowlane.
Nieruchomość położona cichej i spokojnej okolicy
Miejscowy plan zagospodarowania przestrzennego na tym terenie przewiduje zabudowę zagrodową z dopuszczeniem zabudowy mieszkaniowej jednorodzinnej i usług nieuciążliwych (oznaczone symbolem "MRj") . Dopuszcza się możliwość przekształcania istniejącej zabudowy zagrodowej w zabudowę mieszkaniową poprzez likwidację funkcji produkcji rolnej oraz lokalizację zabudowy mieszkaniowej w enklawach pomiędzy siedliskami rolniczymi (tzw. zabudowa plombowa).na podstawie powyższego zapisu dla nieruchomości przygotowano podział gruntu na działki budowlane.
Nota prawna
Opis oferty zawarty na stronie internetowej sporządzany jest na podstawie oględzin nieruchomości oraz informacji uzyskanych od właściciela, może podlegać aktualizacji i nie stanowi oferty określonej w art. 66 i następnych K.C.
Kalkulator kredytowy
Formularz kontaktowy